109 Wohnungen zum Kauf in Innsbruck

- Provisionsfrei
- Balkon
- Terrasse

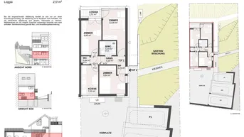
V1 Parkvillen Kranebitten Top 05
Kranebitter Allee 203, 6020 Innsbruck
2-Zimmer-Anlegerwohnung in Zentrumslage
6020 Innsbruck
Kürzlich sanierte 2-Zimmer-Wohnung in Zentrumslage
6020 Innsbruck
Gepflegte 3-Zimmer-Wohnung mit viel Potenzial!
6020 Innsbruck- Balkon
- Video Live-Besichtigung
- Parkplatz

VERKAUF - Ruhig gelegene 2-Zimmer-Wohnung mit Blick auf die Berge, 2 Balkone und TG-Abstellplatz
Hallerstraße, 6020 Innsbruck- Provisionsfrei
- Balkon
- Terrasse

V4 Parkvillen Kranebitten Top 07
Kranebitter Allee 203, 6020 Innsbruck- Provisionsfrei
- Garten
- Balkon
- Terrasse

V1 Parkvillen Kranebitten Top 03
Kranebitter Allee 203, 6020 Innsbruck- Provisionsfrei
- Garten
- Balkon
- Terrasse

V3 Parkvillen Kranebitten Top 03
Kranebitter Allee 203, 6020 Innsbruck- Garten
- Balkon
- Video Live-Besichtigung

IBK-Amras-Anlegerobjekt: 3 Zi.Whg. mit ca. 70m² + 2 Balkone + Keller-/u. Dachbodenabteil in ruhiger Lage!
Gerhart-Hauptmann-Str., 6020 Innsbruck
Gemütliche 3-Zimmer-Wohnung in Igls zu verkaufen!
Hilberstraße, 6080 Innsbruck
Ausblick in Pradler Vorteilslage
6020 Innsbruck
Nachhaltig investieren: 2-Zimmer-Anlegerwohnung im Neubau
6020 Innsbruck
Innsbruck-West: Sonnige 4-Zi-Whg, WG-geeignet, ab sofort!
6020 Innsbruck
Hötting - Kleine 2 Zimmerwohnung WG-geeignet zum Superpreis von VB 220 000,-€
6020 Innsbruck
Generalsanierte Anlegerwohnung in Toplage
6020 Innsbruck