{"obj_regio1":"009","obj_regio2":"009001","obj_regio3":"009001022","obj_ityp":"2","obj_zipCode":"1220","obj_title":"4 Zimmer Dachgeschoss-Maisonette – mit Klimaanlage","obj_picture":"https://pictures.immobilienscout24.de/prod.www.immobilienscout24.at/pictureserver/loadPicture?q=70&id=012.0012000001E83hZ-1761657406-cedbc048c45b4ba49a0db9d0dbc187f2","obj_exclusiveExpose":"true","obj_cwId":"ADS0017893508","obj_purchasePrice":435000,"obj_purchasePriceRange":"8","obj_baseRentRange":null}
  • Provisionsfrei
  • Terrasse

4 Zimmer Dachgeschoss-Maisonette – mit Klimaanlage

435.000
 
114 m²4 ZimmerTerrasse 33 m²
Preis / m²3.806,77 €
Etage2
Baujahr2009
FAMILIENWOHNBAU gemeinnützige Bau- und Siedlungsges.m.b.H.Frau Andrea Kiefmann
Leskygasse 4, 1220 Wien

Einmalige Kosten

Kaufpreis435.000 €
Kaufpreis pro m²3.806,77 €
Preisinformation: BK inkl. Reparaturrücklage, Verwaltung; Heizung und Warmwasser Akonto
Provision zzgl. 20% USt.: provisionsfrei

Laufende Kosten

Monatliche Kosten732,45 €
USt. nicht enthalten

Hallo neues Zuhause!

Kenne deine Chance mit Plus

Online seit120Gesehen80Kontaktiert40Gemerkt63
Plus locked

Merkmale

Verfügbar ab Kurzfristig
Wohnung
Baujahr 2009, Neubau, 2. Etage, Insgesamt 2 Etagen
Wohnfläche 114,27 m²
Gesamtfläche 114,27 m²
1 Terrasse 32,87 m²
4 Zimmer
Kellerfläche 3,26 m², 3 Schlafzimmer, 2 Badezimmer, 2 Toiletten

Heizung

Gas
Heizwärmebedarf (HWB)
49.5 kWh/(m²a)
B
Gesamtenergieeffizienzfaktor (fGEE)
0.87
B

Beschreibung

PROVISIONSFREI


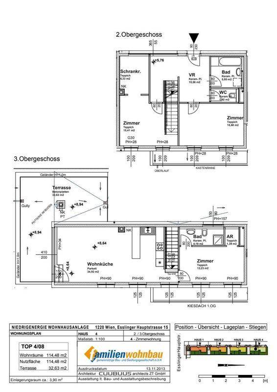
Zum Verkauf gelangt eine freifinanzierte 4 ZIMMER Maisonette Eigentums-WOHNUNG mit ca. 114 m² und ca. 33 m² sonniger Dachterrasse im 2. Obergeschoss und Dachgeschoss


HIGHLIGHTS:



  • Klimaanlage

  • Geräteschuppen auf der Terrasse

  • Küche komplett ausgestattet


RAUMAUFTEILUNG:


Eingangsebene ( 2. Obergeschoss):



  • Vorraum

  • Zimmer mit Schrankraum

  • Zimmer

  • Bad mit Wanne, Waschbecken und Waschmaschinenanschluss

  • WC


Dachgeschoss:



  • Wohnküche mit Ausgang auf die sonnige Dachterrasse

  • Zimmer mit eigenem Bad mit Dusche, Waschbecken, WC;

  • Schrankraum


Ein Garagenstellplatz kann ab € 22.000,00 dazu erworben werden.


Nebenkosten:

• 3,5% Grunderwerbsteuer

• 1,1% Grundbucheintragung

• 2 % pauschal Vertragserrichtung

• € 600,-- pauschal für die Abfuhr der Grunderwerbsteuer und die Selbstberechnung an das Finanzamt sowie die Unterschriften der Verkäuferin am Kaufvertrag

- sowie div. Barauslagen



Das Projekt

Die Familienwohnbau hat im Jahr 2009 am Stadtrand von Wien, nahe den Marchfeldgemeinden, eine sympathische Wohnhausanlage mit 42 Wohnungen samt Tiefgarage errichtet. Die Lage – urban und dennoch nahe an der Natur – verspricht Wohlfühlqualität in Wiens größtem Bezirk!



Für alle, die das Besondere suchen, ist diese großzügige Maisonette-Wohnung mit 114 m² Wohnfläche und einer traumhaften 33 m² Dachterrasse genau das Richtige. Große Fensterfronten fluten die Räume mit Licht, während die durchdachte Raumaufteilung eine harmonische Verbindung zwischen Wohnen und Entspannen schafft. Auf Ihrer privaten Terrasse hoch über den Dächern Wiens genießen Sie entspannte Stunden unter freiem Himmel – perfekt für gesellige Abende oder einen erholsamen Start in den Tag.



Die Wohnhausanlage überzeugt nicht nur durch ihr modernes Design, sondern auch durch ihre erstklassige Lage. Hier vereinen sich urbanes Leben und natürliche Erholung in perfekter Balance:


Die Details

Die Wohnanlage besteht aus vier Stiegen mit jeweils zehn Wohnungen, verteilt auf Erdgeschoss, 1. und 2. Obergeschoss sowie ein Dachgeschoss. Jede Wohnung verfügt über ein eigenes Kellerabteil.

Im Erdgeschoss befindet sich ein Kinderwagen- und Fahrradabstellraum. Zusätzlich steht allen Bewohner:innen im Keller ein großzügiger Gemeinschaftsraum zur Verfügung, der mit Fitnessgeräten ausgestattet ist und sich auch ideal für Feiern, z. B. Geburtstage, eignet.

Beheizt wird die Anlage über eine effiziente Gas-Zentralheizung, die für angenehme Wärme in allen Wohnungen sorgt.

Die gesamte Anlage ist barrierefrei konzipiert. Alle Stiegen sind mit einem Lift ausgestattet, der sowohl die Wohnebenen als auch direkt den Keller mit der Tiefgarage verbindet – für maximalen Komfort und uneingeschränkte Mobilität.


Die Infrastruktur

Mit der Autobuslinie 26 A erreicht man bequem das Donau Zentrum in Kagran, von dort gelangt man mit der U1 direkt in die City. Mit den Buslinien 88 A+B kommt man in die Seestadt Aspern mit direktem Anschluss an die U2.


Ein Lebensmittelsupermarkt ist fußläufig in wenigen Minuten zu erreichen


Naturfreunde werden die Nähe zum weitläufigen Nationalpark Donau-Auen mit seinen Wanderwegen sehr zu schätzen wissen.


Ein hervorragend ausgebautes Radwegenetz macht die Donaustadt speziell für Radfahrer zum wahren Paradies. Naturoasen wie die Alte Donau, Donauinsel oder die Lobau haben für jeden etwas zu bieten. Ein beachtliches Angebot an Gastronomie und Freizeiteinrichtungen ermöglichen Urlaubsfeeling pur.


Der Zeitplan

Die Wohnung ist kurzfristig beziehbar.




Bei Interesse senden Sie uns bitte eine Anfrage per E-Mail.




Energiedaten:
 Energieausweis: liegt vor
 HWB: 49,50
 HWB Klasse: B

Dokumente

Kann ich mir diese Immobilie leisten?

  • % Nebenkosten
    0 €/ Monat
  • % Zinsen
    0 €/ Monat
  • % Kaufpreis
    0 €/ Monat
*
pro Monat
* errechnete monatliche Kreditrate bei einem angenommenen Effektivzins von 1.6% p.a. Die Berechnung stellt einen unverbindlichen Richtwert dar und ist von der Bonität, Kredithöhe, Laufzeit, Verwendungszweck und Besicherung abhängig.

Kontaktieren

GewerblichFAMILIENWOHNBAU gemeinnützige Bau- und Siedlungsges.m.b.H.Frau Andrea Kiefmann
Nachricht
Anrede
Vorname
Nachname
E-Mail
Telefon
Ich bin Eigentümer:in einer Immobilie
GewerblichFAMILIENWOHNBAU gemeinnützige Bau- und Siedlungsges.m.b.H.Frau Andrea Kiefmann
 Verifiziert von ImmoScout24
Gold Partner