{"obj_regio1":"008","obj_regio2":"008003","obj_regio3":"008003003","obj_ityp":"2","obj_zipCode":"6890","obj_title":"3-Zimmer Wohnung mit toller Raumeinteilung und großer Terrasse (Top A06)","obj_picture":"https://pictures.immobilienscout24.de/prod.www.immobilienscout24.at/pictureserver/loadPicture?q=70&id=012.0010J00001mTBXl-1761639133-2c6f220469b44f2cb0d113acbdaafc5f","obj_exclusiveExpose":"false","obj_cwId":null,"obj_purchasePrice":612000,"obj_purchasePriceRange":"9","obj_baseRentRange":null}
  • Provisionsfrei
  • Parkplatz
  • Terrassenwohnung
  • Terrasse
  • Video Live-Besichtigung

3-Zimmer Wohnung mit toller Raumeinteilung und großer Terrasse (Top A06)

612.000
 
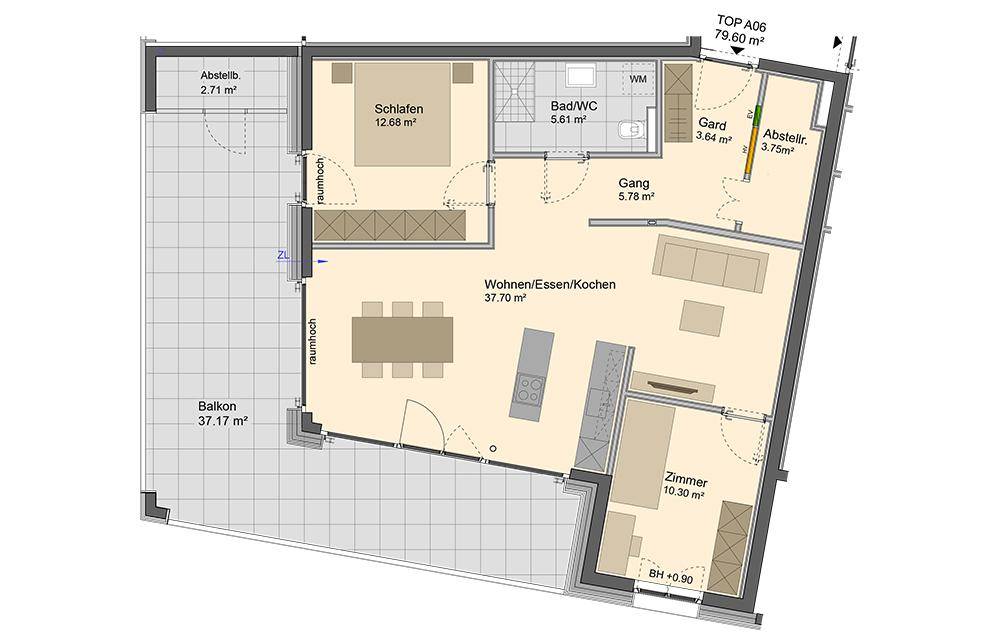
80 m²3 ZimmerTerrasse 37 m²
Preis / m²7.688,44 €
Etage1
Baujahr-
Herr Christian Schenk
Flurstraße 30d, 6890 Lustenau

Einmalige Kosten

Kaufpreis612.000 €
Kaufpreis pro m²7.688,44 €
Kalkuliert von ImmoScout24

Hallo neues Zuhause!

Kenne deine Chance mit Plus

Online seit120Gesehen80Kontaktiert40Gemerkt63
Plus locked

Merkmale

Terrassenwohnung
Neubau, Erstbezug, Unterkellert, 1. Etage
Wohnfläche 79,6 m²
1 Terrasse 37,17 m²
3 Zimmer
Kellerfläche 7,38 m²
1 Tiefgaragenplatz
1 Parkmöglichkeit

Ausstattung

Personenaufzug

Beschreibung

Modern, offen, durchdacht - das Neubauprojekt Flurstraße bietet ein stilvolles Zuhause für jede Lebensphase. Inmitten einer idyllischen, ruhigen Umgebung nahe dem Alten Rhein und mit attraktiver Infrastruktur erleben Sie hier modernes Wohnen auf hohem Niveau.

Stilvoller Wohngenuss mit viel Freiraum:

Inmitten einer ruhigen, grünen Umgebung entsteht mit dem Projekt Flurstraße ein Neubau, der modernes Design mit vollkommenem Wohnkomfort verbindet. Die beiden L-förmigen Baukörper ergeben mit ihrer dunklen Holzfassade und den eleganten, geradlinigen Strukturen ein harmonisches Gesamtbild.

Die großzügigen, überdachten Terrassen erweitern den Wohnraum ins Freie und laden zu entspannten Stunden mit Weitblick ein. Die 2- bis 4-Zimmer Wohnungen bieten durchdachte Grundrisse für unterschiedliche Lebensentwürfe. Eine Tiefgarage, Kellerabteile, ein Fahrradraum und ein eigener Spielplatz sorgen für Komfort.

Dank der durchdachten Architektur und der versetzten Anordnung der Wohnhäuser, bleibt genügend Freiraum zwischen den Gebäuden – für mehr Privatsphäre, viel Tageslicht und unverbaute Ausblicke. Hochwertige Materialien, natürliche Farben und Akzente schaffen eine zeitlose, stilvolle Atmosphäre. Begrünte Dächer und nachhaltige Details, wie die Photovoltaikanlage, runden das Konzept ab.

Hohe Lebensqualität in naturnaher Lage:

In der Flurstraße in Lustenau entsteht ein Wohnprojekt, das Ruhe und Erholung in den Mittelpunkt stellt. Die Lage nahe dem Alten Rhein bietet ideale Voraussetzungen, um die Natur in vollen Zügen zu genießen: naturbelassene Badebuchten, ausgedehnte Wiesen und ein weit verzweigtes Netz an Fahrradwegen laden zu entspannten Stunden im Freien ein. Hier finden Naturliebhaber und Erholungssuchende gleichermaßen einen Ort, um den Alltag hinter sich zu lassen.

Trotz der idyllischen Umgebung überzeugt die Flurstraße durch ihre ausgezeichnete Anbindung. Der Lustenauer Knotenpunkt „Gasthaus Engel“ sowie die Autobahnauffahrten Dornbirn West und Hohenems sind in wenigen Minuten erreichbar. Die nahegelegene Bushaltestelle „Wiesenrain“ verbindet Sie schnell mit zentralen Zielen wie dem Kirchplatz Lustenau, der Messekreuzung Dornbirn oder dem Bahnhof Hohenems. Die Nähe zur Schweizer Grenze macht die Flurstraße besonders attraktiv für Pendler.

Lustenau selbst bietet mit seinen vielfältigen Einkaufsmöglichkeiten, einer guten Infrastruktur und dem „blauen Platz“ alles, was Sie für einen entspannten Alltag benötigen.

Dokumente

Kann ich mir diese Immobilie leisten?

  • % Nebenkosten
    0 €/ Monat
  • % Zinsen
    0 €/ Monat
  • % Kaufpreis
    0 €/ Monat
*
pro Monat
* errechnete monatliche Kreditrate bei einem angenommenen Effektivzins von 1.6% p.a. Die Berechnung stellt einen unverbindlichen Richtwert dar und ist von der Bonität, Kredithöhe, Laufzeit, Verwendungszweck und Besicherung abhängig.

Kontaktieren

GewerblichHerr Christian Schenk
Nachricht
Anrede
Vorname
Nachname
E-Mail
Telefon
Ich bin Eigentümer:in einer Immobilie
GewerblichHerr Christian Schenk
Video Live-Besichtigung
 Verifiziert von ImmoScout24
Bronze PartnerPremium Partner 2023 Award