{"obj_regio1":"006","obj_regio2":"006022","obj_regio3":"006022033","obj_ityp":"0","obj_zipCode":"8243","obj_title":"PROVISIONSFREI - Pinggau - Betreubares Wohnen - Generation 55+ - geförderte Miete - 2 Zimmer ","obj_picture":"https://pictures.immobilienscout24.de/prod.www.immobilienscout24.at/pictureserver/loadPicture?q=70&id=012.0012000001E83jk-e4b66c5f754f4ba8bd27e8cd576c5338","obj_exclusiveExpose":"true","obj_cwId":"ADS0017893584","obj_purchasePrice":null,"obj_purchasePriceRange":null,"obj_baseRentRange":"4"}
  • Provisionsfrei
  • Parkplatz
  • Terrasse

PROVISIONSFREI - Pinggau - Betreubares Wohnen - Generation 55+ - geförderte Miete - 2 Zimmer

587
 
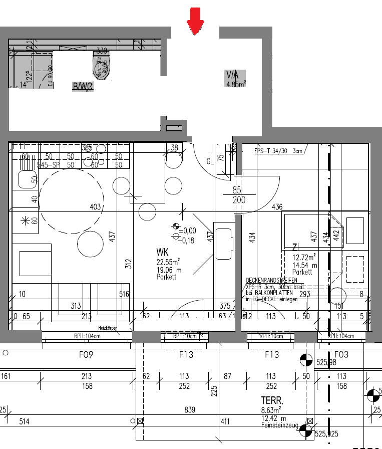
46 m²2 ZimmerTerrasse 9 m²
Etage-
Befristung-
Kaution1100 Eur
ÖWG WohnbauMateo Kasalo
Steinamangerstraße 1/2, 8243 Pinggau

Laufende Kosten

Miete587 €
Preis pro m²12,71 €
Kalkuliert von ImmoScout24

Einmalige Kosten

Kaution: 1100 Eur

Hallo neues Zuhause!

Kenne deine Chance mit Plus

Online seit120Gesehen80Kontaktiert40Gemerkt63
Plus locked

Merkmale

Verfügbar ab sofort
Wohnung
Baujahr 2012, Unterkellert
Wohnfläche 46,2 m²
Terrassenfläche 8,6 m²
Terrasse
2 Zimmer
1 Parkmöglichkeit

Heizung

FernwärmeFernwärme
Heizwärmebedarf (HWB)
49,4 kWh/(m²a)
B

Beschreibung

Betreubares Wohnen - Generation 55+

Diese wunderschöne Wohnung befindet sich im Erdgeschoss und verfügt über einen Wohn-/Ess-/Kochbereich, 1 Schlafzimmer, Bad/WC mit Dusche sowie über einen Vorraum. Die Wohnung ist mit einem Küchenblock inkl. E-Geräte (Geschirrspüler - optional auf eigene Kosten möglich) ausgestattet. Zusätzlich bietet eine Terrasse (8,6 m²) Platz für Ihren individuellen Freiraum und lädt zum Verweilen ein.
Weiters verfügt die Wohnung über ein Kellerabteil, welches zusätzlichen Stauraum bietet, und auch ein PKW-Abstellplatz im Freien ist bereits in der Miete inkludiert.

Es handelt sich um eine geförderte Wohnung. Das bedeutet, dass der Mieter/die Mieterin bestimmte Voraussetzungen erfüllen muss:

1) Österreichische Staatsbürgerschaft, EU-Bürger oder diesen gleichgestellte Personen bzw. Aufenthalt länger als 5 Jahre in Österreich mit aufrechter Arbeitsbewilligung.

2) Einkommensgrenzen: (JahresNETTOeinkommen)
1 Person: EUR 49.600
2 Personen: EUR 74.400
Jede weitere Person: + EUR 6.570

3) Die geförderte Wohnung muss als Hauptwohnsitz bewohnt werden.

Beschreibung der monatlichen Kosten
587,00 Euro
Miete (zinssatzabhängig) inkl. Betriebskosten, aconto Heizung, PKW-Abstellplatz im Freien, exkl. Wohnungsstrom (Zinssatzänderungen sowie Veränderungen der Zuschuss-Leistung des Landes Steiermark beeinflussen den monatlichen Mietzins)
Besichtigung

Eine Besichtigung ist nach Terminvereinbarung mit unserem Verkaufsteam möglich.

Tierhaltung
Wir weisen darauf hin, dass pro Wohnung ein Hund erlaubt ist (keine Listenhunde).

Einfach mehr für Sie - Exklusive Kooperationen
Ganz nach unserem Motto „Einfach mehr vom Leben“ haben wir für Sie exklusive Kooperationen mit IKEA Graz und XXXLutz, die Ihnen den Start in Ihrer Wohnung noch schöner machen: Rabatt-, Liefer- und Restaurant-Gutscheine beider Möbelhäuser zur Einrichtung Ihrer neuen Wohnung.
Die Gutscheine erhalten Sie im Zuge der Wohnungsübergabe von uns.

Unser vollständiges Wohnungsangebot finden Sie unter www.oewg.at/immobiliensuche.

Kontaktieren

GewerblichÖWG WohnbauMateo Kasalo
Nachricht
Anrede
Vorname
Nachname
E-Mail
Telefon
GewerblichÖWG WohnbauMateo Kasalo
 Verifiziert von ImmoScout24
Silber Partner