{"obj_regio1":"002","obj_regio2":"002009","obj_regio3":"002009023","obj_ityp":"2","obj_zipCode":"9400","obj_title":"Ihr WohntraIhr Wohntraum im Lavanttal - das neue Wohnbauprojekt am Rikliwegum im Lavanttal","obj_picture":"https://pictures.immobilienscout24.de/prod.www.immobilienscout24.at/pictureserver/loadPicture?q=70&id=012.0015I00000k6zov-bc40fe4b438645b98a9f44cf2cb513e0","obj_exclusiveExpose":"false","obj_cwId":null,"obj_purchasePrice":485000,"obj_purchasePriceRange":"8","obj_baseRentRange":null}
  • Provisionsfrei
  • Balkon
  • Garten

Ihr WohntraIhr Wohntraum im Lavanttal - das neue Wohnbauprojekt am Rikliwegum im Lavanttal

485.000
 
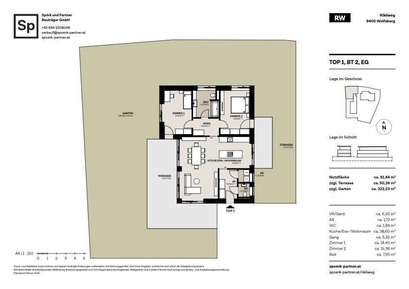
91 m²3 ZimmerBalkonGarten
Preis / m²5.304,02 €
EtageErdgeschoss
Baujahr-
Next-Home Immobilien GmbHFrau Magdalena Lasinski
9400 Wolfsberg
Das Leben in der Nähe der Rikli-Villa bietet eine Fülle an Vorteilen, die Wohnträume wahr werden lassen. Die Lage ist einzigartig: Sie sind nur einen Steinwurf von der Stadt entfernt und können dennoch die Ruhe und Schönheit der umliegenden Natur genießen. In dieser exklusiven Nachbarschaft erwartet Sie eine erstklassige Infrastruktur, die alles Nötige in unmittelbarer Nähe bereithält - von Geschäften über Restaurants bis hin zu Freizeiteinrich-tungen. Darüber hinaus laden die umliegenden Parks und Seen zu entspannenden Ausflügen ein und fördern ein aktives Leben im Freien.

Einmalige Kosten

Kaufpreis485.000 €
Kaufpreis pro m²5.304,02 €
Kalkuliert von ImmoScout24

Hallo neues Zuhause!

Kenne deine Chance mit Plus

Online seit120Gesehen80Kontaktiert40Gemerkt63
Plus locked

Merkmale

Wohnung
Unterkellert, Parkett, Fliesen, Erdgeschoss, Insgesamt 2 Etagen
Wohnfläche 91,44 m²
Gartenfläche 322,23 m²
1 Balkon
Garten
3 Zimmer
Abstellraum

Ausstattung

Badewanne, Fenster, Gartennutzung
Barrierefrei, Personenaufzug
Alle Wohnungen sind großzügig mit hochwertigem und langlebigem Interieur ausgestattet:
Naturholzböden aus gebürsteter Eiche, elegante Bäder aus bestem Feinsteinzeug und Markenarmaturen, elektrischer Sonnenschutz oder eine eigene Liftruftaste in jeder Wohnung für den barrierefreien Aufzug im Haus - alles entspricht dem hohen Anspruch von Spörk und Partner an Qualität und Design.

Spörk und Partner legt besonderen Wert auf eine professionelle Verarbeitung, selbst der kleinsten Details. Alle Wohnungen sind optimal auf die Erfordernisse des modernen Medien-alltags vorbereitet. Medienverteiler für Internet-und TV-Anschlüsse, Türöffner und intelligente Leerverrohrungen zum späteren Nachrüsten sind selbstverständlich.
Komfort und Lebensqualität bestimmen die Zufriedenheit der künftigen Wohnungseigen-tümer*innen. Große Balkontüren mit 3-fach-Verglasung sorgen für helle, ruhige Räume, die mittels außen angebrachter, fernbedienbarer Raffstores völlig abgedunkelt werden können.

Heizung

Heizwärmebedarf (HWB)
44 kWh/(m²a)
B
Gesamtenergieeffizienzfaktor (fGEE)
0.62
A+

Beschreibung

Gelegenheit Das neue Wohnbauprojekt am Rikliweg von Spörk und Partner bietet eine einzigartige, das Leben inmitten der Natur mit urbanen Annehmlichkeiten zu verbinden.
Direkt an die malerische Rikli-Villa angrenzend, entsteht ein Ort, der Eleganz und Funktionalität vereint und perfekt den Respekt vor der Umgebung und den Anspruch an hohe Lebensqualität widerspiegelt.
Die Anlage umfasst drei Gebäude mit insgesamt 16 Wohneinheiten. Die Erdgeschosswohnungen besitzen großzügige, eigene Gartenflächen im Eigentum, während die übrigen Einheiten mit ansprechenden Balkonen oder Terrassen ausgestattet sind.
Die raffinierten und modernen Raumlösungen tragen dazu bei, dass jeder Quadratmeter optimal genutzt wird, während die hochwertigen Materialien für ein behagliches Wohn-ambiente sorgen. Wenn Sie Wert auf Qualität und innovative Exklusivität legen, ist dies Ihre Chance, ein Teil dieses außergewöhnlichen Projekts von Spörk und Partner zu werden.
Lassen Sie sich von den Möglichkeiten inspirieren und finden Sie Ihren Wohntraum im Lavanttal - dem Paradies Kärntens.
MOBIL AUF ALLEN RÄDERN

In der hauseigenen Garage im Untergeschoss mit 29 Stellplätzen findet Ihr PKW ein komfortables Zuhause. Natürlich gibt es auch ausreichend Platz für umweltfreundliche Fahrräder und Scooter - ein weiteres Beispiel für die Flexibilität des Projekts.

UMWELTFREUNDLICHES RAUMKLIMA

Weil Spörk und Partner den Umweltschutz und nachhaltige Bauweise in den Mittelpunkt stellen, setzen sie auf umweltschonende Luft-Wärmepumpen, die für angenehme Raumtemperaturen im Sommer und wohlige Wärme im Winter sorgen.

WERTSTEIGERUNGSPOTENZIAL

Die freifinanzierten Eigentumswohnungen am Rikliweg von Spörk und Partner können auch als Vorsorgewohnungen genutzt werden und sind damit ein hervorragendes Investment mit optimaler Wertentwicklung.
Vorsorgewohnungen gelten als wertbeständig, zukunftssicher und inflationssicher. Als Liegenschaft mit Wertsteigerungspotenzial ist das Objekt am Rikliweg ideal dazu geeignet, sich einen greifbaren Sachwert zu schaffen.
In Planung und Errichtung kooperiert Spörk und Partner mit bewährten Firmen. Das garantiert eine qualitativ hochwertige, gesamtheitliche Abwicklung des Bauvorhabens ohne Unterbrechnungen.

ERHOLUNG
Gartenliebhaber können in einer Erdgeschosswohnung mit Terrasse ihren Blumen, Kräutern und Sträuchern beim Wachsen und Blühen zuschauen. Wer mehr auf Lounge-Feeling steht, genießt auf den Balkonen und Terrassen der Wohnungen im Ober- und Dachgeschoss den Sonnenuntergang - ein emotionales Erlebnis.

Kann ich mir diese Immobilie leisten?

  • % Nebenkosten
    0 €/ Monat
  • % Zinsen
    0 €/ Monat
  • % Kaufpreis
    0 €/ Monat
*
pro Monat
* errechnete monatliche Kreditrate bei einem angenommenen Effektivzins von 1.6% p.a. Die Berechnung stellt einen unverbindlichen Richtwert dar und ist von der Bonität, Kredithöhe, Laufzeit, Verwendungszweck und Besicherung abhängig.

Kontaktieren

GewerblichNext-Home Immobilien GmbHFrau Magdalena Lasinski
Nachricht
Anrede
Vorname
Nachname
E-Mail
Telefon
Ich bin Eigentümer:in einer Immobilie
GewerblichNext-Home Immobilien GmbHFrau Magdalena Lasinski
 Verifiziert von ImmoScout24
Bronze Partner