{"obj_regio1":"003","obj_regio2":"003021","obj_regio3":"003021040","obj_ityp":"3","obj_zipCode":"3424","obj_title":"NEUBAU-BUNGALOW, 4 Zimmer, 400 m² Garten - 20 Min von Wien!","obj_picture":"https://pictures.immobilienscout24.de/prod.www.immobilienscout24.at/pictureserver/loadPicture?q=70&id=012.0012000001RdDYi-1761333564-d8e0fd00afcb40658d26a432067e48d0","obj_exclusiveExpose":"false","obj_cwId":null,"obj_purchasePrice":473643,"obj_purchasePriceRange":"8","obj_baseRentRange":null}
  • Bungalow

NEUBAU-BUNGALOW, 4 Zimmer, 400 m² Garten - 20 Min von Wien!

473.643
 
83 m²4 Zimmer
Preis / m²5.706,54 €
Grundstücksfläche568 m²
Baujahr2025
Hubert Bartl
3424 Zeiselmauer-Wolfpassing

Einmalige Kosten

Kaufpreis473.643 €
Kaufpreis pro m²5.706,54 €
Kalkuliert von ImmoScout24
Provision: 3% des Kaufpreises zzgl. 20% MwSt.

Hallo neues Zuhause!

Kenne deine Chance mit Plus

Online seit120Gesehen80Kontaktiert40Gemerkt63
Plus locked

Merkmale

Bungalow
Baujahr 2025
Wohnfläche 83 m²
Grundstücksfläche 568 m²
4 Zimmer

Heizung

Heizwärmebedarf (HWB)
41 kWh/(m²a)
B
Gesamtenergieeffizienzfaktor (fGEE)
0.86
B

Beschreibung

ERFÜLLEN SIE SICH DEN TRAUM IHRES EIGENHEIMES UND GESTALTEN SIE ES NACH IHREN PERSÖNLICHEN VORSTELLUNGEN!

Wir bieten Ihnen ein neues Einfamilienhaus auf einem sehr gut bemessenen Grundstück im Ortsverband von Zeiselmauer-Wolfpassing an, das nach Ihren Vorgaben geplant und ausgestattet werden kann.

Das Grundstück ist aktuell noch unbebaut.

Das Haus wird von einem renommierten Fertighaushersteller in Fertigbaubauweise neu gebaut und innerhalb weniger Wochen schlüsselfertig übergeben.

Es stehen mehr als 20 Haustypen mit 70m² bis 182m² Wohnfläche in ein- od. zweigeschossiger Bauart zur Auswahl, die in Planung und Ausführung individuell gestaltet werden können. Keller, Carport, Garage, Wirtschaftsraum und vieles mehr können zugebaut bzw. eingeplant werden.

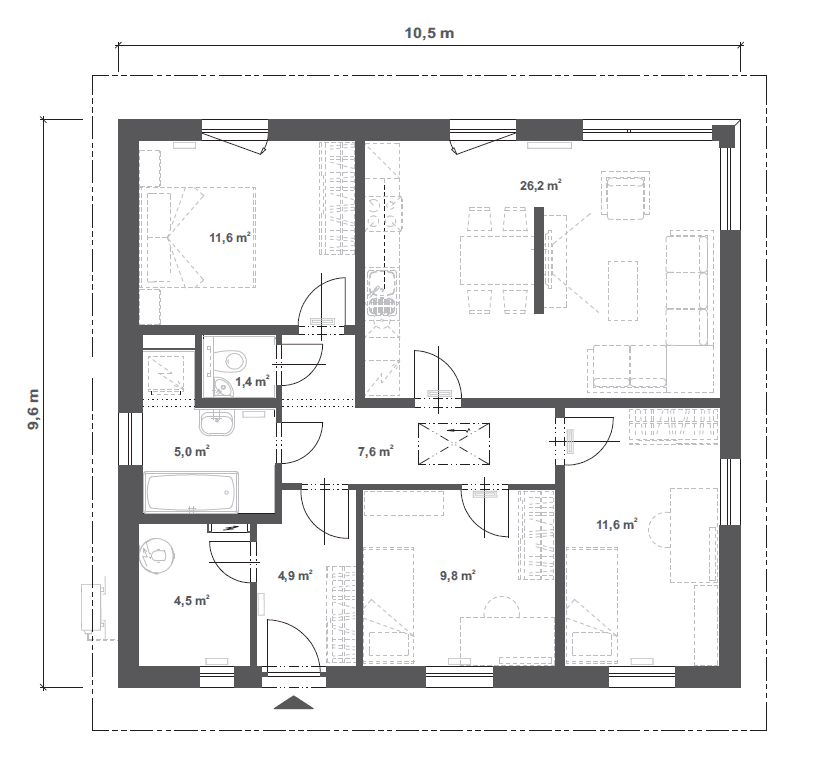
Grundriss und Raumgrößen können unter Berücksichtigung statischer Möglichkeiten nach eigenen Vorstellungen verändert werden.

Planung, Baubewilligung, Vollausbau inkl. Bad, WC, Heizung, Küche, bis zur Benützungsbewilligung wird vom Hersteller durchgeführt und stufenweise abgenommen.

Alle Ausstattungsdetails (Böden, Türen, Fliesen) können individuell gewählt werden.

Nach Bestellung ist das Haus innerhalb von ca. 4 Monaten bezugsfertig.

Der Hersteller hat 50 Jahre Erfahrung im Wohnhausbau und bisher 26.000 Wohnhäuser errichtet.

Auf die Konstruktion des Bauwerks bestehen 30 Jahre Garantie.

Details

• 568 m² vollaufgeschlossenes Grundstück (16 x 36 m) im zentralen Ortsverband von Zeiselmauer-Wolfpassing

• ebenerdiges Einfamilienhaus, Fertighaus, Holzriegelbauweise

• sehr gute Isolationswerte - geringe Heizkosten

• 83 m² Wohnfläche

• 4 Zimmer, Küche, Carport

• individuelle Raumplanung möglich

• Ausstattung nach freier Auswahl

• Fußbodenheizung

• Luft-Wasser-Wärmepumpe

• Es fallen keine Aufschließungskosten an

• Anschlussgebühren und Herstellungskosten für Zu- bzw. Ableitungen (Strom, Wasser, Kanal, Internet) sind nach Gegebenheit zu entichten

• Zu- u. Ableitungen bis zum Bauwerk sowie Fundamentplatte müssen vom Auftraggeber hergestellt werden bzw. kann das auch vom Hersteller organisiert und durchgeführt werden.

Selbstverständlich können Sie das Grundstück auch ohne Haus erwerben!

Kosten:

Kaufpreis des Hauses inkl. Grundstück € 473.643,-

Vermittlungsprovision 3% des Kaufpreises zzgl. 20% MwSt.

Lage:

Das Objekt liegt in einer wenig befahrenen Seitengasse des Ortes Zeiselmauer-Wolfpassing.

Kindergarten und Volksschule befinden sich im Ort. Zahlreiche Schultypen im nahen Tulln, Klosterburg oder Wien.

Die Bahnstation der S 40 Zeiselmauer-Königstetten ist zu Fuß in 17 Min. erreichbar, von wo einerseits die Verbindung nach

Wien-Spittelau bzw. Wien, Franz-Josefs-Bahnhof und andererseits nach

Tulln, Wien-Hütteldorf, Krems od. St.Pölten möglich ist.

Über die naheliegende Buslinie sind Tulln (Zentrum) bzw. Klosterneuburg (Stadtplatz, Gymnasium) in 30 Minuten erreichbar.

Wolfpassing liegt im Wienerwaldgebiet, wo sie wunderbare Wanderungen mit Blick über das Tullnerfeld bis zur Donau durchführen können. Tulbingerkogel, Hagenbachklamm, Lourdesgrotte, Waldschenke oder Dopplerhütte sind beliebte Ausflugsziele für Wanderer oder Naturliebhaber.

Die nahe Donau, die vom Kraftwerk Greifenstein aufgestaut und auf Höhe von Zeiselmauer stehendes Gewässer ist, das Aubad Tulln oder der Donauarm Greifenstein sind wunderbare Badeplätze und begehrte Naherholungsgebiete. Beidseitige Radwege von Passau bis nach Bratislava regen zu ausgedehnten Radtouren an.

Die nahe Bezirkshauptstadt Tulln ist mit ihrer jährlichen Gartenbaumesse über die Grenzen Österreichs bekannt. Sie bietet ein reichhaltiges Kulturprogramm und wöchentliche Bauernmärkte.

Kann ich mir diese Immobilie leisten?

  • % Nebenkosten
    0 €/ Monat
  • % Zinsen
    0 €/ Monat
  • % Kaufpreis
    0 €/ Monat
*
pro Monat
* errechnete monatliche Kreditrate bei einem angenommenen Effektivzins von 1.6% p.a. Die Berechnung stellt einen unverbindlichen Richtwert dar und ist von der Bonität, Kredithöhe, Laufzeit, Verwendungszweck und Besicherung abhängig.

Kontaktieren

GewerblichHubert Bartl
Nachricht
Anrede
Vorname
Nachname
E-Mail
Telefon
Ich bin Eigentümer:in einer Immobilie
GewerblichHubert Bartl
 Verifiziert von ImmoScout24
Bronze Partner