{"obj_regio1":"007","obj_regio2":"007003","obj_regio3":"007003048","obj_ityp":"2","obj_zipCode":"6108","obj_title":"Wunderschönes Neubau-Projekt in bester und zentralster Lage von Scharnitz!","obj_picture":"https://pictures.immobilienscout24.de/prod.www.immobilienscout24.at/pictureserver/loadPicture?q=70&id=012.0012000001E3qo3-1761320988-68c26fa712604a8fa5cf90407f0c2301","obj_exclusiveExpose":"true","obj_cwId":"ADS0017892154","obj_purchasePrice":585000,"obj_purchasePriceRange":"9","obj_baseRentRange":null}
  • Parkplatz
  • Dachgeschosswohnung

Wunderschönes Neubau-Projekt in bester und zentralster Lage von Scharnitz!

585.000
 
88 m²3 ZimmerLoggia 11 m²
Preis / m²6.613,16 €
Etage-
Projektstatus-
Infina ImmobilienHerr Johannes Kurz Infina Partner
6108 Scharnitz
Das Neubauprojekt an der Innsbrucker Straße 26 befindet sich in zentraler und dennoch ruhiger Lage im Herzen von Scharnitz, einer charmanten Tiroler Gemeinde am Tor zum Naturpark Karwendel.

Scharnitz liegt nur wenige Minuten nördlich von Seefeld und direkt an der bayerischen Grenze – eine Region, die für ihre beeindruckende Bergkulisse, ihre vielfältigen Freizeitmöglichkeiten und ihre hohe Lebensqualität bekannt ist. Die Lage bietet somit die perfekte Kombination aus Naturverbundenheit, Erreichbarkeit und Wohnkomfort.

Einkaufsmöglichkeiten, Gastronomie, Schule, Kindergarten sowie der Bahnhof Scharnitz sind bequem zu Fuß erreichbar. Durch die gute Verkehrsanbindung über die B177 (Seefelder Straße) erreicht man Innsbruck in rund 25 Minuten und Garmisch-Partenkirchen in etwa 30 Minuten.

Die unmittelbare Nähe zum Naturpark Karwendel macht den Standort zudem zu einem Paradies für Wanderer, Radfahrer und Wintersportfreunde. Ob Skilanglauf auf der Olympiaregion-Seefeld-Loipe, Mountainbiken durch das Karwendeltal oder einfach Entspannen in der alpinen Natur – hier beginnt Erholung direkt vor der Haustür.

Lagevorteile auf einen Blick

Zentrale und sonnige Lage in Scharnitz

Nur wenige Minuten zur Olympiaregion Seefeld

Ideale Verkehrsanbindung nach Innsbruck und Bayern

Naturpark Karwendel direkt vor der Haustür

Vielfältige Freizeit- und Sportmöglichkeiten ganzjährig

Sehr gute Nahversorgung im Ort

Fazit:
Die Adresse Innsbrucker Straße 26 verbindet alpines Lebensgefühl mit moderner Infrastruktur – ein Standort, der sowohl als Hauptwohnsitz als auch als wertbeständige Anlage überzeugt.

Einmalige Kosten

Kaufpreis585.000 €
Kaufpreis pro m²6.613,16 €
Kalkuliert von ImmoScout24
Provision: 3,60 € inkl. 20% USt.

Hallo neues Zuhause!

Kenne deine Chance mit Plus

Online seit120Gesehen80Kontaktiert40Gemerkt63
Plus locked

Merkmale

Verfügbar ab nach Absprache
Dachgeschosswohnung
Neubau, Erstbezug, Massivbauweise, Flachdach, Grundstück voll erschlossen, Parkett, Fliesen, Insgesamt 3 Etagen
Wohnfläche 88,46 m²
1 Loggia 10,97 m²
3 Zimmer
1 Badezimmer, 1 Toilette, Abstellraum
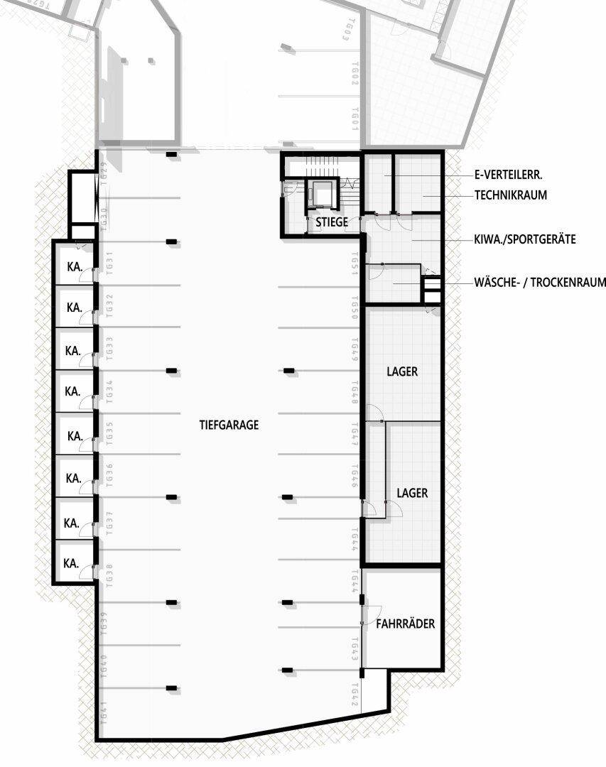
Tiefgarage
Fahrradabstellraum, 1 Parkplatz, 1 Garage, 1 Parkmöglichkeit

Ausstattung

Dusche, Wäschetrockenraum
Seniorengerecht, Rollstuhlgerecht, Personenaufzug

Heizung

ZentralheizungFußbodenheizungLuftwärmepumpe

Beschreibung

Hier einige kurze Informationen zur Immobilie:

Die Wohnanlage bietet Platz für 10 großzügige Wohnungen mit ausreichend Platz für Familien. Im Erdgeschoss sind 2 Geschäftslokale situiert die durch die Laubengangsituation optimal Richtung Dorfplatz geöffnet sind. Der Garten ist parkähnlich angelegt und beinhaltet einen modernen Kinderspielplatz. In der Grundausstattung inbegriffen sind hochwertige Parkettböden, großflächige Fliesen sowie eine Sanitär- und Elektroausstattung von namhaften Herstellern.

Das Gebäude umfasst ein Untergeschoss sowie drei oberirdische Geschosse. Im Untergeschoss befindet sich eine Tiefgarage mit Technik- und Lagerräumen sowie Allgemeinflächen für Sportgeräte, usw. Die 2 im Erdgeschoss situierten Geschäftslokale bieten sich aufgrund des zentralen Standorts ideal für eine Bäckerei oder ein Kaffeehaus mit kleinen Snacks an. Ein Sportgeschäft könnte das Angebot im Ortszentrum abrunden. In den oberen Etagen (1. und 2. OG) liegen die geräumigen Wohnungen mit 2-3 Zimmern. Das Heiz- und Kühlsystem des Gebäudes basiert auf dem effizienten Einsatz moderner Wärmepumpentechnologie welche optional über eine Photovoltaik Anlage auf dem Flachdach unterstütz werden kann.

Die Wohnung 10 (2.OG) hat eine Größe von ca. 89 Quadratmeter und eine Loggia mit ca. 11 Quadratmeter.

Kaufpreis Wohnung: 585.000€

Optional Kaufpreis Autoabstellplatz Garage: 25.000€

Optional Kaufpreis Autoabstellplatz Außen: 15.000€

Infina, Österreichs beliebtester Wohnbau-Finanz-Experte, begleitet Sie ganzheitlich rund um Ihr Immobilienvorhaben.

Unser Team von Immobilienexperten unterstützt Sie beim geplanten Kauf als auch bei einem möglichen Verkauf Ihrer bestehenden Immobilie. Zudem bieten unsere Finanzierungsexperten auf Wunsch maßgeschneiderte Finanzierungslösungen durch den Vergleich der besten Kredite von über 120 Banken in Österreich und Deutschland.

Wir möchten Sie unabhängig, transparent und flexibel als starker Partner in allen Immobilienangelegenheiten unterstützen.

Kontaktieren Sie uns für einen persönlichen Besichtigungstermin oder eine unverbindliche und kostenfreie Finanzierungsberatung.

Kaufpreis EUR 585.000,00
(Sämtliche o.a. m²-Angaben laut Nutzwertgutachten gem. Kauf & Wohnungseigentumsvertrag bzw. Einreichplanung)

Für weitere Informationen fordern Sie bitte unser ausführliches Exposé an.

Johannes Kurz
Anbieter kontaktieren

Was kann Infina noch für Sie tun?

Wenn Sie eine Finanzierung für Ihre Traumimmobilie wünschen, begleiten wir Sie gerne von der strategischen Planung bis zur Realisierung und darüber hinaus. Wir sind Österreichs beliebtester Wohnbau-Finanz-Experte und unsere Mission lautet: Jeder Kunde hat das Recht auf den besten Kredit.

  • Infina kooperiert mit über 120 Banken in Österreich und Deutschland
  • Über 600 Kreditprodukte im Vergleich
  • Über 100-mal vor Ort in ganz Österreich

Ebenso unterstützen wir unsere Kunden beim Verkauf und der Vermietung Ihrer Immobilien sowie bei der Immobiliensuche durch unsere Immobilienexperten.

Kauferwerbsnebenkosten:
Lt. Nebenkostenübersicht
3,5 % Grunderwerbssteuer
1,1 % Grundbuchseintragungsgebühr
Kosten für die Errichtung des Kaufvertrages und Treuhandschaft lt. Anwaltstarif zzgl. Barauslagen


Wir weisen Sie darauf hin, dass die gemachten Angaben und Informationen lediglich unverbindliche Vorabinformationen sind und daher ohne Gewähr erfolgen.


Infrastruktur / Entfernungen

Gesundheit
Arzt <500m
Apotheke <500m

Kinder & Schulen
Schule <500m
Kindergarten <500m
Höhere Schule <6.000m

Nahversorgung
Bäckerei <500m
Supermarkt <1.000m

Sonstige
Bank <500m
Geldautomat <500m
Post <500m
Polizei <6.500m

Verkehr
Bus <500m
Bahnhof <500m

Angaben Entfernung Luftlinie / Quelle: OpenStreetMap

Kann ich mir diese Immobilie leisten?

  • % Nebenkosten
    0 €/ Monat
  • % Zinsen
    0 €/ Monat
  • % Kaufpreis
    0 €/ Monat
*
pro Monat
* errechnete monatliche Kreditrate bei einem angenommenen Effektivzins von 1.6% p.a. Die Berechnung stellt einen unverbindlichen Richtwert dar und ist von der Bonität, Kredithöhe, Laufzeit, Verwendungszweck und Besicherung abhängig.

Kontaktieren

GewerblichInfina ImmobilienHerr Johannes Kurz Infina Partner
Nachricht
Anrede
Vorname
Nachname
E-Mail
Telefon
Ich bin Eigentümer:in einer Immobilie
GewerblichInfina ImmobilienHerr Johannes Kurz Infina Partner
 Verifiziert von ImmoScout24
Silber Partner