{"obj_regio1":"009","obj_regio2":"009001","obj_regio3":"009001018","obj_ityp":"2","obj_zipCode":"1180","obj_title":"TOPERSTBEZUG / Neubau und Sanierung von 86 Eigentumswohnungen","obj_picture":"https://pictures.immobilienscout24.de/prod.www.immobilienscout24.at/pictureserver/loadPicture?q=70&id=012.0012000001E83jW-1681994424-a6d5d6ee0b07454780a0d9b6135c2543","obj_exclusiveExpose":"false","obj_cwId":null,"obj_purchasePrice":683000,"obj_purchasePriceRange":"9","obj_baseRentRange":null}
  • Terrasse

TOPERSTBEZUG / Neubau und Sanierung von 86 Eigentumswohnungen

683.000
 
71 m²3 ZimmerTerrasse 9 m²
Preis / m²9.671,48 €
Etage5
Baujahr2023
Ticon ImmobilienserviceFrau Claudia Sailer
Martinstraße 43, 1180 Wien
Nahe U6 AKH Michelbeuern

Einmalige Kosten

Kaufpreis683.000 €
Kaufpreis pro m²9.671,48 €
Kalkuliert von ImmoScout24
Provision: 3% des Kaufpreises zzgl. 20% USt.

Hallo neues Zuhause!

Kenne deine Chance mit Plus

Online seit120Gesehen80Kontaktiert40Gemerkt63
Plus locked

Merkmale

Verfügbar ab sofort
Wohnung
Baujahr 2023, Neubau, Erstbezug, Massivbauweise, Fertigparkett, Fliesen, 5. Etage
Nutzfläche 70,62 m²
1 Terrasse 8,75 m²
Freiflächen 8,75 m²
3 Zimmer
1 Badezimmer, 1 Toilette
Fahrradabstellraum

Ausstattung

Offene Küche, Dusche
Barrierefrei, Personenaufzug

Heizung

ZentralheizungFußbodenheizungGasLuftwärmepumpe
Heizwärmebedarf (HWB)
25.4 kWh/(m²a)
B
Gesamtenergieeffizienzfaktor (fGEE)
0.72
A

Beschreibung

1180 WIEN - Martinstrasse 41-43
Eigentums-/Vorsorgewohnungen 

Es werden Neubau- und Dachwohnungen errichtet und die Altbauwohnungen generalsaniert. Als Generalunternehmer fungiert die STRABAG AGDer überwiegende Teil der Wohnungen besteht aus modernen 2 bis 3 Zimmerwohnungen. Die Größe der Wohnungen in Verbindung mit erstklassiger Ausstattung und Bauqualität (STRABAG) sowie der sehr guten Lage macht das Projekt aber auch attraktiv für Anleger, die auf der Suche nach einer soliden Vorsorgewohnung sind.

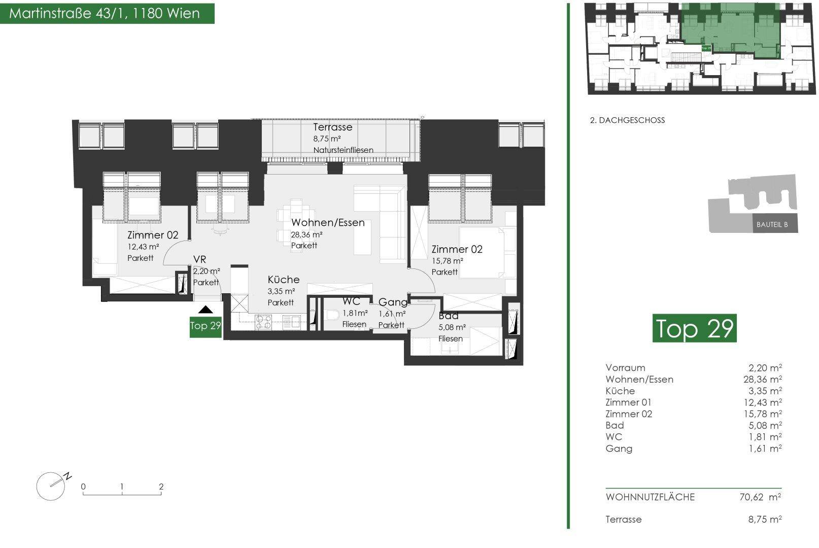
TOP 43.1.29 Neubau (DG2):  Diese gut aufgeteilte 3 Zimmerwohnung hat eine Wohnfläche von ca. 70,62 m² und eine Terrasse mit 8,75 m² und befindet sich im 2.Dachgeschoß (Richtung Innenhof). 

Raumaufteilung:

  • 1 Wohn-Esszimmer mit Zugang zur Terrasse
  • 2 Schlafzimmer 
  • 1 Badezimmer mit Dusche
  • 1 WC
  • 1 Vorzimmer

Die Übergabe erfolgt in schlüsselfertiger Ausstattung - laut Bau- und Ausstattungsbeschreibung.

PROJEKTDATEN

  • 86 Eigentums- bzw. Vorsorgewohnungen
  • 21 Tiefgaragenplätze
  • 2 - 4 Zimmer tlw. mit Balkon oder Terrasse
  • Sehr gute Infrastruktur und Verkehrsanbindung
  • Schlüsselfertige Übergabe

Ausstattung

  • Moderne Hauszentralheizung (Anlagencontracting)
  • Luft-Wasser-Wärmepumpe (Unterstützung durch Gasbrennwertgerät)
  • PHOTOVOLTAIKANLAGE zur Unterstützung der Wärmepumpe
  • Alle Wohnungen mit Kühlfunktion  (Wärmepumpe)
  • Fußbodenheizung
  • Großzügige Sanitärbereiche (Feinsteinzeug 60x30/60x60)
  • 3 fach Isolierverglasung 
  • Eichenparkettböden 
  • Großformatige Fliesen
  • Sicherheitseingangstüren

Gemeinflächen:
Fahrrad- und Kinderwagenabstellraum, Liftanlage

Die Infrastruktur rund um das Projekt ist als sehr gut zu bezeichnen. Es befinden sich in unmittelbarer Nähe alle Nahversorger (Billa, Hofer, Lidl, usw.)

VERKEHRSVERBINDUNGEN:

STRASSENBAHNLINIE
Linie 42, 43

U-BAHN STATIONEN
U 6 - Station Michelbeuern AKH
U 6 - Alser Straße

Alle aktuell verfügbaren Wohnungen finden Sie unter www.martinstrasse1180.at

Vereinbaren Sie noch heute einen Besichtigungstermin und lassen Sie sich von dieser  Wohnung begeistern! Ihr neues Zuhause in Wien wartet auf Sie!

Wir weisen ausdrücklich auf unser wirtschaftliches Naheverhältnis mit dem Abgeber/der Abgeberin hin! Irrtum und Änderungen vorbehalten!

Wir weisen darauf hin, dass zwischen dem Vermittler und dem zu vermittelnden Dritten ein familiäres oder wirtschaftliches Naheverhältnis besteht.

Der Vermittler ist als Doppelmakler tätig.


Infrastruktur / Entfernungen

Gesundheit
Arzt <100m
Apotheke <150m
Klinik <75m
Krankenhaus <450m

Kinder & Schulen
Schule <175m
Kindergarten <225m
Universität <775m
Höhere Schule <650m

Nahversorgung
Supermarkt <125m
Bäckerei <175m
Einkaufszentrum <775m

Sonstige
Geldautomat <200m
Bank <200m
Post <200m
Polizei <100m

Verkehr
Bus <150m
U-Bahn <175m
Straßenbahn <125m
Bahnhof <200m
Autobahnanschluss <2.550m

Angaben Entfernung Luftlinie / Quelle: OpenStreetMap

Dokumente

Kann ich mir diese Immobilie leisten?

  • % Nebenkosten
    0 €/ Monat
  • % Zinsen
    0 €/ Monat
  • % Kaufpreis
    0 €/ Monat
*
pro Monat
* errechnete monatliche Kreditrate bei einem angenommenen Effektivzins von 1.6% p.a. Die Berechnung stellt einen unverbindlichen Richtwert dar und ist von der Bonität, Kredithöhe, Laufzeit, Verwendungszweck und Besicherung abhängig.

Kontaktieren

GewerblichTicon ImmobilienserviceFrau Claudia Sailer
Nachricht
Anrede
Vorname
Nachname
E-Mail
Telefon
Ich bin Eigentümer:in einer Immobilie
GewerblichTicon ImmobilienserviceFrau Claudia Sailer
 Verifiziert von ImmoScout24
Bronze Partner