{"obj_regio1":"009","obj_regio2":"009001","obj_regio3":"009001012","obj_ityp":"2","obj_zipCode":"1120","obj_title":"Rohdiamant in Wien-Meidling – Verwirklichen Sie Ihren Wohntraum!","obj_picture":"https://pictures.immobilienscout24.de/prod.www.immobilienscout24.at/pictureserver/loadPicture?q=70&id=012.0015I00000SMCEc-1760959196-00e4fc3ca2e348e6b302a16b36fbab4f","obj_exclusiveExpose":"true","obj_cwId":"ADS0018341749","obj_purchasePrice":249000,"obj_purchasePriceRange":"5","obj_baseRentRange":null}
  • Altbau

Rohdiamant in Wien-Meidling – Verwirklichen Sie Ihren Wohntraum!

249.000
 
62 m²3 Zimmer
Preis / m²3.987,83 €
Etage2
Projektstatus-
RIMMO Prime Vermittlungs GmbHHerr Nicolas Krenkel
Ehrenfelsgasse 3, 1120 Wien
Die Ehrenfelsgasse liegt im Herzen Meidlings – einer der aufstrebenden Wohngegenden Wiens – und bietet alles für den täglichen Bedarf. Der Meidlinger Markt, zahlreiche Parks sowie Nahversorger und Gastronomie befinden sich in direkter Umgebung. Die Wiener Innenstadt ist in ca. 15 Minuten öffentlich erreichbar.

Einmalige Kosten

Kaufpreis249.000 €
Kaufpreis pro m²3.987,83 €
Kalkuliert von ImmoScout24
Provision: 3% des Kaufpreises zzgl. 20% USt.

Hallo neues Zuhause!

Kenne deine Chance mit Plus

Online seit120Gesehen80Kontaktiert40Gemerkt63
Plus locked

Merkmale

Wohnung
Altbau, Gepflegt, Massivbauweise, Schlüsselfertig mit Keller, Parkett, 2. Etage
Wohnfläche 62,44 m²
Gesamtfläche 62,44 m², Nutzfläche 62,44 m²
3 Zimmer
1 Badezimmer, 1 Toilette, Abstellraum, WG-tauglich

Ausstattung

Einbauküche, Badewanne, Dusche, Fenster
Personenaufzug

Heizung

EtagenheizungZentralheizungGas
Heizwärmebedarf (HWB)
109.13 kWh/(m²a)
D
Gesamtenergieeffizienzfaktor (fGEE)
2.39
D

Beschreibung

Altbaucharme trifft Stadtleben – Eigentumswohnungen in Wien Meidling (Ehrenfelsgasse 3)

In ruhiger, urbaner Lage des 12. Bezirks gelangt ein gepflegtes Altbauhaus in der Ehrenfelsgasse 3 zum Verkauf von 8 attraktiven Eigentumswohnungen. Das charmante Altbauhaus vereint klassische Altbauarchitektur mit dem Potenzial zur individuellen Modernisierung und bietet eine ausgezeichnete Gelegenheit für Eigennutzer wie auch Anleger.

Die Liegenschaft befindet sich in einer ruhigen Seitengasse nahe der Meidlinger Hauptstraße und besticht durch ihre ausgezeichnete Infrastruktur und Verkehrsanbindung – U-Bahn, S-Bahn, Buslinien sowie Einkaufsmöglichkeiten, Schulen und Gastronomie sind fußläufig erreichbar.

Projekthighlights:
  • 8 Wohneinheiten in unterschiedlichen Größen und Grundrissen

  • Klassischer Altbau mit hohen Räumen

  • Saniert bzw. teils sanierungsbedürftig – großes Entwicklungspotenzial

  • Sehr gute öffentliche Anbindung (U4, U6, Bahnhof Meidling)

  • Ruhige Wohnlage mit urbanem Umfeld

Infrastruktur & öffentliche Verkehrsmittel:

Die Lage in der Ehrenfelsgasse punktet mit ausgezeichneter Nahversorgung und einer Vielzahl an Freizeit-, Schul- und Einkaufsmöglichkeiten. Supermärkte, Apotheken, Cafés, Kindergärten und Schulen befinden sich im direkten Umfeld.

Die öffentliche Anbindung ist hervorragend:

  • U4 Margaretengürtel & Meidling Hauptstraße (ca. 5 Gehminuten)

  • U6 Niederhofstraße / Bahnhof Meidling (S-Bahn, Regionalzüge)

  • Diverse Buslinien (7A, 10A, 63A) in unmittelbarer Nähe

Damit ist sowohl das Stadtzentrum als auch der Wiener Stadtrand rasch und bequem erreichbar.

Lage & Umfeld:

Die Ehrenfelsgasse liegt im Herzen Meidlings – einer der aufstrebenden Wohngegenden Wiens – und bietet alles für den täglichen Bedarf. Der Meidlinger Markt, zahlreiche Parks sowie Schulen und Nahversorger befinden sich in unmittelbarer Nähe. Die Wiener Innenstadt ist in ca. 15 Minuten öffentlich erreichbar.

Verkauf & Kontakt:

Die Wohnungen werden einzeln oder im Paket verkauft.

Gerne übermitteln wir Ihnen bei Interesse Grundrisse, Preislisten sowie weitere Detailunterlagen auf Anfrage!

Die verwendeten Fotos weisen teilweise KI-generierte Inhalte auf.

Für Fragen steht Ihnen Herr Nicolas Krenkel gerne unter Anbieter kontaktieren oder via Anbieter kontaktieren gerne zur Verfügung.

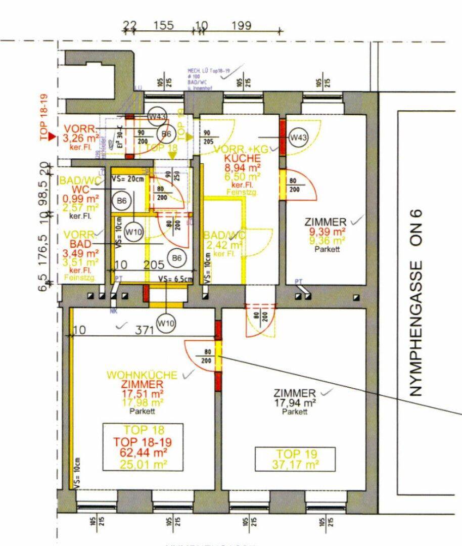
WOHNUNG TOP 18-19

Die Wohnung mit ca.. 53,70 m² Wohnfläche.

• Die verwendeten Fotos weisen teilweise KI-generierte Inhalte auf.

KAUFPREIS:

Der Kaufpreis beläuft sich auf 249000,00 € für den Endnutzer.

BEI WILLENSÜBEREINKUNFT WIRD EINE PROVISION IN HÖHE VON 3% DES KAUFPREISES ZZGL. 20% UST. FÄLLIG.

Leben in begehrter Lage – 1120 Wien

Das Wohnprojekt befindet sich in der Ehrenfelsgasse 3, im beliebten 12. Bezirk (Meidling), einer Gegend, die urbanes Leben mit angenehmer Ruhe verbindet. Die Nähe zur Meidlinger Hauptstraße bietet zahlreiche Einkaufsmöglichkeiten, Cafés, Restaurants sowie Schulen und Freizeiteinrichtungen.

Dank der sehr guten Verkehrsanbindung ist man schnell im Stadtzentrum – gleichzeitig genießt man das charmante, gewachsene Grätzl rund um den Steinbauergasse-Park und den nahegelegenen Haydnpark.

Öffentliche Verkehrsanbindung:

  • U-Bahn: U4 – Meidling Hauptstraße / U6 – Bahnhof Meidling
  • S-Bahn & Regionalzüge: Wien Meidling
  • Straßenbahn: Linie 62
  • Bus: 7A, 8A, 9A, 59A

Egal, ob Sie eine komfortable Singlewohnung, eine geräumige Familienwohnung oder eine exklusive Dachgeschosswohnung mit Terrasse suchen – hier finden Sie die perfekte Immobilie für Ihre Bedürfnisse.

Jetzt unverbindlich informieren!

Energieausweis: Der Heizwärmebedarf beträgt 109,13 kWh und entspricht der Klasse D.

Für weitere Informationen oder einen Besichtigungstermin steht Ihnen Herr Nicolas Krenkel gerne unter Anbieter kontaktieren oder Anbieter kontaktieren zur Verfügung.

Wir weisen darauf hin, dass zwischen dem Vermittler und dem zu vermittelnden Dritten ein familiäres oder wirtschaftliches Naheverhältnis besteht.

Der Vermittler ist als Doppelmakler tätig.


Infrastruktur / Entfernungen

Gesundheit
Arzt <50m
Apotheke <275m
Klinik <175m
Krankenhaus <1.725m

Kinder & Schulen
Schule <50m
Kindergarten <225m
Universität <275m
Höhere Schule <975m

Nahversorgung
Supermarkt <150m
Bäckerei <200m
Einkaufszentrum <150m

Sonstige
Geldautomat <125m
Bank <125m
Post <225m
Polizei <225m

Verkehr
Bus <125m
U-Bahn <225m
Straßenbahn <925m
Bahnhof <200m
Autobahnanschluss <2.750m

Angaben Entfernung Luftlinie / Quelle: OpenStreetMap

Kann ich mir diese Immobilie leisten?

  • % Nebenkosten
    0 €/ Monat
  • % Zinsen
    0 €/ Monat
  • % Kaufpreis
    0 €/ Monat
*
pro Monat
* errechnete monatliche Kreditrate bei einem angenommenen Effektivzins von 1.6% p.a. Die Berechnung stellt einen unverbindlichen Richtwert dar und ist von der Bonität, Kredithöhe, Laufzeit, Verwendungszweck und Besicherung abhängig.

Kontaktieren

GewerblichRIMMO Prime Vermittlungs GmbHHerr Nicolas Krenkel
Nachricht
Anrede
Vorname
Nachname
E-Mail
Telefon
Ich bin Eigentümer:in einer Immobilie
GewerblichRIMMO Prime Vermittlungs GmbHHerr Nicolas Krenkel
 Verifiziert von ImmoScout24
Silber Partner