{"obj_regio1":"009","obj_regio2":"009001","obj_regio3":"009001012","obj_ityp":"2","obj_zipCode":"1120","obj_title":"Meidlinger Markt Nähe - nachhaltig! - Ruhelage, Nähe U4/ U6 - Neubauprojekt","obj_picture":"https://pictures.immobilienscout24.de/prod.www.immobilienscout24.at/pictureserver/loadPicture?q=70&id=012.0015I00000WyTWV-1711706257-6e8f444f3e114c248d70ea7310d1d39a","obj_exclusiveExpose":"false","obj_cwId":null,"obj_purchasePrice":324500,"obj_purchasePriceRange":"7","obj_baseRentRange":null}
  • Balkon

Meidlinger Markt Nähe - nachhaltig! - Ruhelage, Nähe U4/ U6 - Neubauprojekt

324.500
 
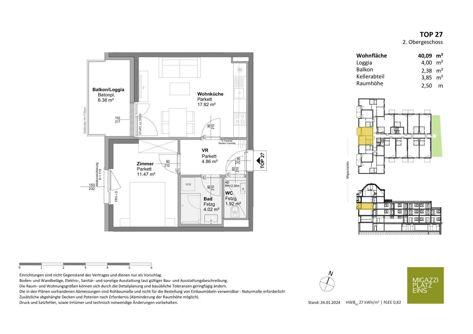
40 m²2 ZimmerBalkon 2 m²Loggia 4 m²
Preis / m²8.094,29 €
Etage2
Projektstatus-
Hand GmbHHerr Michael Steffek
Migazziplatz 1, 1120 Wien
Perfekte Infrastruktur beim Meidlinger Markt - Ruhelage - Nähe U4/ U6
Nachhaltig und wertsicher Leben im Trendviertel!

•Regionale Vielfalt und kulinarische Genüsse am Meidlinger Markt um’s Eck
•Geschäfte des täglichen Bedarfs, Schulen und Kinderbetreuung in unmittelbarer Umgebung
•Die Meidlinger Hauptstraße, eine der größten Einkaufsstraßen Wiens, befindet sich in Gehweite
•Theresienbad und Fitnesscenter sind fußläufig erreichbar
•Erholung und Sport im Schlosspark Schönbrunn oder im Schönbrunner Bad in unmittelbarer Nähe

Einmalige Kosten

Kaufpreis324.500 €
Kaufpreis pro m²8.094,29 €
Kalkuliert von ImmoScout24
Preisinformation: Anlegerpreise auf Anfrage verfügbar!
Provision: Der Verkauf erfolgt PROVISIONSFREI für den Käufer!

Hallo neues Zuhause!

Kenne deine Chance mit Plus

Online seit120Gesehen80Kontaktiert40Gemerkt63
Plus locked

Merkmale

Wohnung
Neubau, Erstbezug, Unterkellert, Parkett, 2. Etage, Insgesamt 5 Etagen
Wohnfläche 40,09 m²
1 Balkon 2,38 m² westseitig
1 Loggia 4 m²
2 Zimmer
Kellerfläche 3,85 m², 1 Badezimmer, 1 Toilette
Fahrradabstellraum

Ausstattung

Barrierefrei, Personenaufzug

Heizung

Erdwärme
Heizwärmebedarf (HWB)
27 kWh/(m²a)
B
Gesamtenergieeffizienzfaktor (fGEE)
0.82
A

Beschreibung

Nachhaltig und wertsicher Leben in Meidling!

Das Neubauprojekt liegt am autofreien Migazziplatz mit schönem Altbaumbestand. Hier trifft urbanes Leben auf die noch immer vorhandene dörfliche Struktur des 12. Bezirks. Geprägt von diesen Eindrücken ist ein Projekt entstanden, das die Vorzüge der Ruhelage mit einer optimalen Nahversorgung und Verkehrsanbindung perfekt vereint.

Gleichzeitig wurde schon in der Planung ein besonderes Augenmerk auf Energieeffizienz, Klimaanpassung und Nachhaltigkeit gelegt:

  • wirklich nachhaltiges - regeneratives - Energiesystem
  • zukunftssichere Energiegewinnung mittels Erd-Tiefensonden (rd. 140 Meter Tiefe)
  • Sole/ Wasser-Wärmepumpe für die Beheizung, Warmwassererzeugung und Kühlung
  • energieeffiziente Bauteilaktivierung in den Wohnungen zum Heizen und Kühlen
  • Fußbodenheizung in den Büros zum Heizen und Kühlen
  • Photovoltaik Anlage
  • Extensive Dachbegrünung des Gartentraktes

Es entstehen 18 Eigentumswohnungen mit durchdachten Grundrissen und hochwertiger Ausstattung, sowie im Erdgeschoss 9 Büros im Eigentum als zusätzliche Infrastruktur für die Wohnumgebung.

Der Verkauf erfolgt PROVISIONSFREI für den Käufer!

Wohnungen:

  • 18 Eigentumswohnungen von 40 m² bis 155 m²
  • Wohneinheiten mit 2 bis 5 Zimmern
  • Exklusive Dachgeschosswohnungen
  • Persönliche Freiräume durch Loggia, Balkon oder Dachterrasse
  • Kostengünstige Kühlung
  • 54 Fahrradabstellplätze und Kinderwagenabstellraum im EG
  • Barrierefrei
  • Tiefgarage

Büros im Erdgeschoß:

  • 9 Büros im Eigentum, größtenteils mit Garten und Terrassen
  • Flexibel nutzbare Büros ab 42 m² (auch zusammenlegbar)
  • Ebenerdiger, barrierefreier Zugang
  • Kostengünstige Kühlung 

Wir weisen darauf hin, dass zwischen dem Vermittler und dem zu vermittelnden Dritten ein familiäres oder wirtschaftliches Naheverhältnis besteht.


Wohlfühlen am Migazziplatz  1

Die Ausstattung:

  • hochwertig und langlebig
  • elegante Parkettböden in den Wohnräumen
  • großformatiges Feinsteinzeug und in den Sanitärbereichen
  • Marken-Armaturen und -Sanitärprodukte
  • Kunststoff-Fenster mit Alu-Deckschale und 3-Scheiben Isolierverglasung
  • außenliegender, elektrisch bedienbarer Sonnenschutz
  • Video-Gegensprechanlage
  • Sicherheits-Wohnungseingangstüren

Anlegerpreise auf Anfrage verfügbar, bzw. besuchen Sie die Projektwebseite unter www.migazziplatz.at!

Der Verkauf erfolgt PROVISIONSFREI für den Käufer!

Tiefgaragenstellplätze separat verfügbar.

Dokumente

Kann ich mir diese Immobilie leisten?

  • % Nebenkosten
    0 €/ Monat
  • % Zinsen
    0 €/ Monat
  • % Kaufpreis
    0 €/ Monat
*
pro Monat
* errechnete monatliche Kreditrate bei einem angenommenen Effektivzins von 1.6% p.a. Die Berechnung stellt einen unverbindlichen Richtwert dar und ist von der Bonität, Kredithöhe, Laufzeit, Verwendungszweck und Besicherung abhängig.

Kontaktieren

GewerblichHand GmbHHerr Michael Steffek
Nachricht
Anrede
Vorname
Nachname
E-Mail
Telefon
Ich bin Eigentümer:in einer Immobilie
GewerblichHand GmbHHerr Michael Steffek
 Verifiziert von ImmoScout24
Bronze Partner