{"obj_regio1":"009","obj_regio2":"009001","obj_regio3":"009001001","obj_ityp":"7","obj_zipCode":"1010","obj_title":"Großzügiges Büro im Gustav-Mahler-Hof | Nähe Oper/Kärtnerstrasse/Ringstrasse","obj_picture":"https://pictures.immobilienscout24.de/prod.www.immobilienscout24.at/pictureserver/loadPicture?q=70&id=012.0012000001Y13ZC-1761257724-3b34b8453de54da2ae4c0db2469f24e5","obj_exclusiveExpose":"false","obj_cwId":null,"obj_purchasePrice":null,"obj_purchasePriceRange":null,"obj_baseRentRange":"9"}
  • Praxis / Ordination
  • Altbau
  • Video Live-Besichtigung

Großzügiges Büro im Gustav-Mahler-Hof | Nähe Oper/Kärtnerstrasse/Ringstrasse

4.455
 
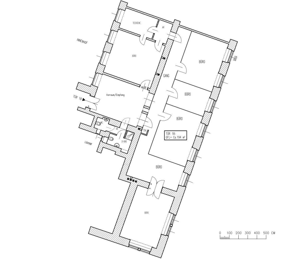
194 m²6 Zimmer
Immobiliaris GmbHFrau Katharina Pavlik
Mahlerstraße, 1010 Wien
• zentrale Lage im Herzen Wiens
• wenige Gehminuten vom Stephansplatz, Karlsplatz, Kärntnerstraße und Ringstrasse entfernt.
• ideale öffentliche Verkehrsanbindung: Straßenbahnlinien 2, 71, D
• Karlsplatz U1, U2, U4
- Stephansplatz U1, U3

Laufende Kosten

Miete4.454,64 €
Preis pro m²23 €
Gesamtbelastung Netto4.882,67 €
USt. Gesamtbelastung976,54 €
USt. Miete890,93 €
Betriebskosten428,03 €
USt. Betriebskosten85,61 €

Einmalige Kosten

Provision: 3 Bruttomonatsmieten zzgl. 20% USt.
Kaution: 6 Bruttomonatsmieten

Hallo neues Zuhause!

Kenne deine Chance mit Plus

Online seit120Gesehen80Kontaktiert40Gemerkt63
Plus locked

Merkmale

Verfügbar ab sofort
befristet auf 10 Jahre
Arztpraxis
Altbau, 1. Etage
Nutzfläche 193,68 m²
6 Zimmer
2 Toiletten, Abstellraum

Ausstattung

Teeküche
Seniorengerecht, Rollstuhlgerecht, Personenaufzug

Heizung

FernwärmeFernwärme
Heizwärmebedarf (HWB)
111.4 kWh/(m²a)
D
Gesamtenergieeffizienzfaktor (fGEE)
1.83
D

Beschreibung

Sehr geehrte Damen und Herren,

das Büro liegt im 1.Stock (mit Lift) eines repräsentativen Stilaltbaus in bester Lage des 1. Bezirkes. Oper, Kärntner Strasse, sowie die Ringstrassen Galerien sind in wenigen Gehminuten erreichbar. Durch die ausgezeichnete Lage und Anbindung des Hauses ist die Fläche für Kunden gut erreichbar und bietet ein angenehmes Arbeitsumfeld für Sie und Ihre Mitarbeiter.

Fast Facts:

  • Vorraum/Empfangsbereich
  • Gang
  • 5 Büroräume
  • Teeküche
  • getrennte Toiletten
  • Abstellraum

Highlights:

  • barrierefrei
  • zentral begehbar
  • perfekte Lage und Anbindung im Herzen Wiens

Kosteninformationen:

  • Hauptmietzins [€/m2]: 23,00
  • Betriebskosten [€/m2]: 2,21
  • Miete+BK (exkl. MWSt):  4.882,67 EUR
  • Gesamtmiete Brutto (inkl. USt.): 5.859,20 EUR

Kontaktieren Sie uns jederzeit für nähere Informationen oder einen Besichtigungstermin (gerne auch spät abends oder am Wochenende)!

Ich freue mich auf Ihre Nachricht!

Wir weisen darauf hin, dass zwischen dem Vermittler und dem zu vermittelnden Dritten ein familiäres oder wirtschaftliches Naheverhältnis besteht.

Der Vermittler ist als Doppelmakler tätig.

Kontaktieren

GewerblichImmobiliaris GmbHFrau Katharina Pavlik
Nachricht
Anrede
Vorname
Nachname
E-Mail
Telefon
GewerblichImmobiliaris GmbHFrau Katharina Pavlik
Video Live-Besichtigung
 Verifiziert von ImmoScout24
Premium Partner 2023 Award