{"obj_regio1":"008","obj_regio2":"008002","obj_regio3":"008002019","obj_ityp":"0","obj_zipCode":"6914","obj_title":"Hohenweiler: Hochwertige 3-Zimmer-Gartenwohnung im Erstbezug!","obj_picture":"https://pictures.immobilienscout24.de/prod.www.immobilienscout24.at/pictureserver/loadPicture?q=70&id=012.0015I00000kvJ7X-1754752823-23274f90f7c845628cad542583e51609","obj_exclusiveExpose":"false","obj_cwId":null,"obj_purchasePrice":null,"obj_purchasePriceRange":null,"obj_baseRentRange":"7"}
  • Provisionsfrei
  • Parkplatz
  • Terrasse
  • Garten

Hohenweiler: Hochwertige 3-Zimmer-Gartenwohnung im Erstbezug!

1.297
 
61 m²3 ZimmerGartenTerrasse 31 m²
EtageErdgeschoss
Befristung-
Kaution-
SIMA Immobilien GmbHHerr Anastasios Maximos
Leutenhofen, 6914 Hohenweiler

Laufende Kosten

Monatliche Kosten1.297,13 €
Preis pro m²21,18 €
Kalkuliert von ImmoScout24
Miete697,13 €
Sonstige Kosten Netto600 €

Einmalige Kosten

Provision: Gemäß Erstauftraggeberprinzip bezahlt der Abgeber die Provision.
ImmoScout24 Tipp: Seit dem 01.07.2023 gilt das Bestellerprinzip. Die Vermittlung von Wohnungen und Häusern zur Miete über Inserate ist seitdem für Suchende provisionsfrei.

Hallo neues Zuhause!

Kenne deine Chance mit Plus

Online seit120Gesehen80Kontaktiert40Gemerkt63
Plus locked

Merkmale

Verfügbar ab 01.11.2025
Wohnung
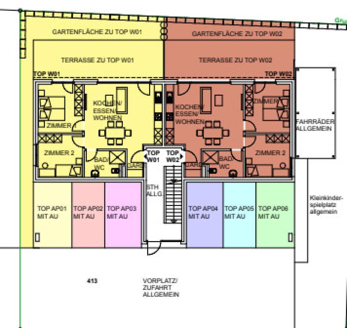
Baujahr 2024, Neubau, Erstbezug, Massivbauweise, Unterkellert, Flachdach, Erdgeschoss, Insgesamt 3 Etagen
Wohnfläche 61,25 m²
Gartenfläche 27,55 m²
1 Terrasse 30,68 m²
Garten
3 Zimmer
Kellerfläche 7,73 m², 1 Badezimmer
Carport
Fahrradabstellraum, 1 Parkplatz, 1 Parkmöglichkeit

Ausstattung

Einbauküche, Offene Küche, Dusche

Heizung

Luftwärmepumpe
Heizwärmebedarf (HWB)
36 kWh/(m²a)
B
Gesamtenergieeffizienzfaktor (fGEE)
0.57
A+

Beschreibung

Willkommen in Ihrem neuen Zuhause zum Erstbezug in Hohenweiler!

Nur etwas mehr als 10 Minuten von der Landeshauptstadt Bregenz und dem Bodensee entfernt, erwartet Sie diese hochwertige Neubauwohnung – ruhig gelegen am Ende einer Sackgasse. Der auf den Bildern ersichtliche Ausblick ins Grüne – eine als Freifläche gewidmete Fläche – in Kombination mit der westseitigen Ausrichtung der Wohnung bietet beste Voraussetzungen für sonnige Abendstunden.

Die Kleinwohnanlage mit nur sechs Einheiten besticht durch moderne Architektur, hohem Qualitätsstandard und wird in hochwertiger Massivbauweise errichtet. Die Anlage befindet sich aktuell in der finalen Bauphase und wird voraussichtlich zum 01.12.2025 fertiggestellt – ab diesem Datum wartet ein Erstbezug im absoluten Neuzustand auf Sie.

Die Gartenwohnung mit über 61 m² Wohnfläche zeichnet sich durch einen durchdachten, offen gestalteten und optimal genutzten Grundriss aus. Große Fensterfronten schaffen eine helle, freundliche Atmosphäre und verbinden den Innenbereich harmonisch mit dem Außenbereich.

Der Wohnung ist ein geräumiger Kellerabteil mit ca. 8 m² zugeordnet – inklusive eines separat auf die Einheit laufenden Stromanschlusses. Ein überdachter Carportplatz ist ebenso der Wohnung zugewiesen. 

Über eine elegante Schiebetür im Wohnbereich gelangt man auf die über 30 m² große Terrasse mit Natursteinbelag. Direkt anschließend befindet sich der rund 28 m² große Eigengarten, der zur Wohnung gehört.

Die Wohnung wird inklusive neuer Küche übergeben – ausgestattet mit allem, was man braucht: Herd, Backofen, Kühlschrank und Spüle sind bereits integriert. Das elegante Badezimmer ist mit einem Waschmaschinenanschluss, einem Waschbecken sowie einer modernen, bodenebenen Dusche ausgestattet, bei der das Wasser über eine geneigte Ablaufrinne sauber abfließt.

Die Anlage wird nachhaltig und hocheffizient über eine Luftwärmepumpe beheizt. Die Wohnung verfügt über eine Fußbodenheizung, die raumweise über smarte Raumcontroller steuerbar ist. Den hochwertigen Bau ergänzen unter anderem Fenster mit Dreifachverglasung, Geschossdecken in Stahlbeton, hochwertige Eichenparkettböden mit Trittschalldämmung und vieles mehr...

Haustiere sind vom Eigentümer nicht erwünscht. 
Lassen Sie sich diese Chance nicht entgehen und vereinbaren Sie noch heute einen Besichtigungstermin. Sichern Sie sich Ihre neue Erstbezugswohnung in Hohenweiler!

Hinweise: Dieses Exposé dient zur Vorabinformation. Alle Angaben nach bestem Wissen und Gewissen, jedoch ohne Gewähr. Tippfehler, Irrtum und Zwischenvermietung vorbehalten. Die Grundrisse dienen lediglich zur Darstellung der Raumaufteilung.

Wir weisen darauf hin, dass zwischen dem Vermittler und dem zu vermittelnden Dritten ein familiäres oder wirtschaftliches Naheverhältnis besteht.

Der Immobilienmakler erklärt, dass er – entgegen dem in der Immobilienwirtschaft üblichen Geschäftsgebrauch des Doppelmaklers – einseitig nur für den Vermieter tätig ist.


Infrastruktur / Entfernungen

Gesundheit
Arzt <2.750m
Apotheke <2.750m
Krankenhaus <5.500m
Klinik <4.750m

Kinder & Schulen
Schule <2.750m
Kindergarten <2.750m
Höhere Schule <5.000m
Universität <8.750m

Nahversorgung
Supermarkt <3.500m
Bäckerei <2.250m
Einkaufszentrum <8.750m

Sonstige
Bank <250m
Geldautomat <2.500m
Post <3.250m
Polizei <3.250m

Verkehr
Bus <250m
Autobahnanschluss <3.250m
Bahnhof <6.250m

Angaben Entfernung Luftlinie / Quelle: OpenStreetMap

Kontaktieren

GewerblichSIMA Immobilien GmbHHerr Anastasios Maximos
Nachricht
Anrede
Vorname
Nachname
E-Mail
Telefon
GewerblichSIMA Immobilien GmbHHerr Anastasios Maximos
 Verifiziert von ImmoScout24
Bronze Partner