{"obj_regio1":"003","obj_regio2":"003006","obj_regio3":"003006023","obj_ityp":"0","obj_zipCode":"2522","obj_title":"OBERWALTERSDORF I, freifinanzierte Mietwohnung mit Kaufoption, 1. OG Top 1/3, 1100/00035681/00001103","obj_picture":"https://pictures.immobilienscout24.de/prod.www.immobilienscout24.at/pictureserver/loadPicture?q=70&id=012.0012000001E83uE-1761190757-b6f2c77f0dba4ac29918b713f47fd1ee","obj_exclusiveExpose":"true","obj_cwId":"ADS0017893904","obj_purchasePrice":null,"obj_purchasePriceRange":null,"obj_baseRentRange":"7"}
  • Provisionsfrei
  • Parkplatz
  • Video Live-Besichtigung

OBERWALTERSDORF I, freifinanzierte Mietwohnung mit Kaufoption, 1. OG Top 1/3, 1100/00035681/00001103

1.255
 
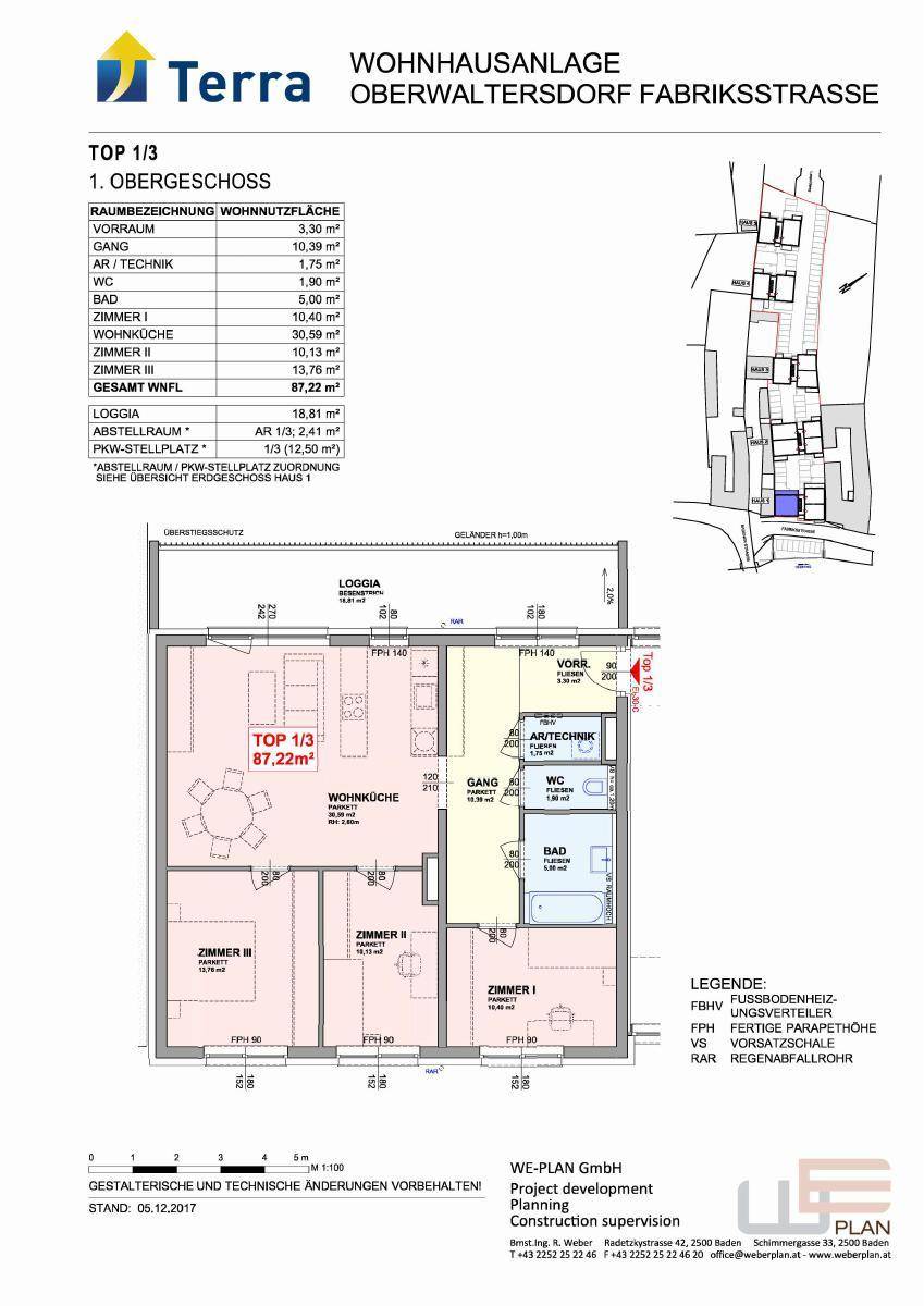
87 m²4 Zimmer
Etage-
Befristung-
Kaution-
HOFMANN Anna
Fabriksstraße 3-7/Leopoldweg 10, 2522 Oberwaltersdorf

Laufende Kosten

Monatliche Kosten1.255,06 €
Preis pro m²14,39 €
Kalkuliert von ImmoScout24

Einmalige Kosten

Preisinformation:
Finanzierungsbeitrag: 32433,33 €

Hallo neues Zuhause!

Kenne deine Chance mit Plus

Online seit120Gesehen80Kontaktiert40Gemerkt63
Plus locked

Merkmale

Verfügbar ab 2025-12-31
Wohnung
Baujahr 2018, Neuwertig
Wohnfläche 87,22 m²
4 Zimmer
1 Badezimmer, 1 Toilette
1 Parkmöglichkeit

Heizung

Heizwärmebedarf (HWB)
35,00 kWh/(m²a)
B
Gesamtenergieeffizienzfaktor (fGEE)
0,790
A++

Beschreibung

Die Aufteilung der 34 Wohnungen auf 5 Häuser garantiert Ihnen ein familiäres Wohngefühl. Für großzügigen privaten Freiraum sorgen Eigengärten und Terrassen in den Erdgeschoßen sowie Loggien oder Terrassen in den Obergeschoßen. Ihre Kinder werden sich auf einen der 4 Spielflächen im Freien wohlfühlen. Jede Einheit verfügt über einen externen Abstellraum sowie einen PKW-Stellplatz. Gemeinschaftlich genutzt werden der Fahrrad- sowie Kinderwagenabstellraum. Umweltschonendes und kostengünstiges Wohnen wird durch die Ausführung in Niedrigenergiebauweise mit Vollwärmeschutzfassade erreicht. Beheizt wird die Anlage mittels Bio-Gasheizung, ausgeführt in den Räumen als Fußbodenheizung. Die Lage in unmittelbarer Nähe des Gemeindezentrums wird Sie begeistern. Schulen, Supermarkt, Bäckerei, Post, usw. sind in weniger als 10 Minuten zu Fuß erreichbar. Alle Einheiten sind freifinanziert, ohne Mittel der Wohnbauförderung, errichtet.
Angabe Gesamtmiete excl. Heizkosten, inkl. Betriebskosten-Akonto, inkl. Stellplatz. Vereinbaren Sie Ihren persönlichen Besichtigungstermin bei unseren Verkaufsberatern. Alle Wohnangebote finden Sie auf unserer Homepage: www.alpenland.ag

Kontaktieren

GewerblichHOFMANN Anna
Nachricht
Anrede
Vorname
Nachname
E-Mail
Telefon
GewerblichHOFMANN Anna
Video Live-Besichtigung
 Verifiziert von ImmoScout24
Silber PartnerImmo Expert *** Award