{"obj_regio1":"003","obj_regio2":"003002","obj_regio3":"003002009","obj_ityp":"7","obj_zipCode":"3100","obj_title":"Ordination/Büro/Kanzlei mitten in St. Pölten - barrierefrei","obj_picture":"https://pictures.immobilienscout24.de/prod.www.immobilienscout24.at/pictureserver/loadPicture?q=70&id=012.0015I000009DXKt-1761218988-b05de8a7bbad416182deedb396084edf","obj_exclusiveExpose":"false","obj_cwId":null,"obj_purchasePrice":null,"obj_purchasePriceRange":null,"obj_baseRentRange":null}
  • Altbau

Ordination/Büro/Kanzlei mitten in St. Pölten - barrierefrei

Preis auf Anfrage
 
209 m²10 Zimmer
Wohnglück Immobilien e.U.Herr Nikolaus Glück
Wiener Straße, 3100 St. Pölten
Fußgängerzone, Herrenplatz, Domplatz

Hallo neues Zuhause!

Kenne deine Chance mit Plus

Online seit120Gesehen80Kontaktiert40Gemerkt63
Plus locked

Merkmale

Verfügbar ab 01.01.2025
unbefristet
Büro
Altbau, 2. Etage
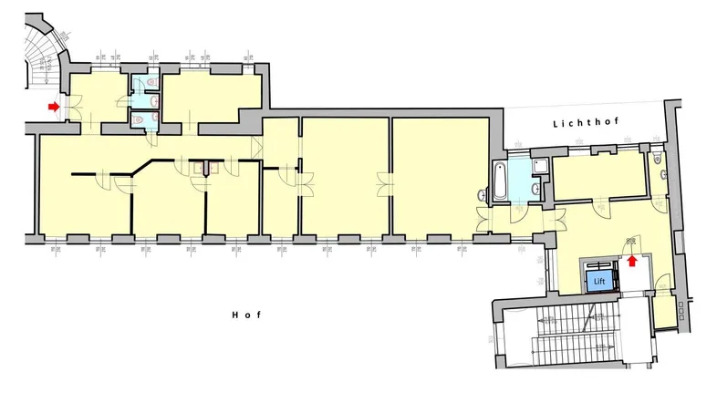
Nutzfläche 209 m²
10 Zimmer
1 Badezimmer, 2 Toiletten

Ausstattung

Personenaufzug

Heizung

Fernwärme

Beschreibung

Ideal für Arztpraxis oder Kanzlei durch 2 getrennte Eingänge (1 Stiegenhaus mit Lift, 1 Stiegenhaus ohne Lift). Barrierefreier Zugang!
Diese bisher als Arztpraxis verwendeten Räumlichkeiten bieten vielfältige Gestaltungsmöglichkeiten für bis zu 10 Räume.

Lage & Infrastruktur:
Die Bahnhofsnähe bietet eine hervorragende überregionale Anbindung. Der Hauptbahnhof ist nur ein paar Gehminuten entfernt.
Auch lokal ist man bestens angebunden: Vom Bahnhofsvorplatz erreicht man alle Teile St. Pöltens bequem mit dem Bus und kann so auf das eigene Auto verzichten. Rettungsfahrzeuge können über die Fußgängerzone zufahren. Für die Stellplätze im Hof ist eine Einfahrtsberechtigung erforderlich.

Der schöne Altbau bietet fast 4 m hohe Räume und durch viele vorwiegend nach Osten orientierte Fenster viel Licht.
Trotz der zentralen Lage mitten in St. Pölten gibt es selbst bei geöffneten Fenstern keinen Verkehrslärm.

Austattung:
Die Räumlichkeiten wurden bisher als Ordination genutzt. Die Installationen sind verwendbar, eine vollständige Neugestaltung ist aber möglich.
Einige Wände sind in Elementbauweise errichtet und können mit geringem Aufwand verändert werden.
Die Heizung erfolgt über Fernwärme.

Pkw-Stellplätze im Hof sind verfügbar.
Ein Teil des großen Gartens kann exklusiv dazugemietet werden.

Befristung: unbefristet
Beziehbar: nach Vereinbarung

Hinweis gemäß Energieausweisvorlagegesetz: Ein Energieausweis wurde vom Eigentümer bzw. Verkäufer, nach unserer Aufklärung über die generell geltende Vorlagepflicht, sowie Aufforderung zu seiner Erstellung noch nicht vorgelegt. Daher gilt zumindest eine dem Alter und der Art des Gebäudes entsprechende Gesamtenergieeffizienz als vereinbart. Wir übernehmen keinerlei Gewähr oder Haftung für die tatsächliche Energieeffizienz der angebotenen Immobilie.

Der Vermittler ist als Doppelmakler tätig.


Infrastruktur / Entfernungen

Gesundheit
Arzt <250m
Apotheke <250m
Klinik <1.000m
Krankenhaus <1.250m

Kinder & Schulen
Schule <250m
Kindergarten <250m
Höhere Schule <250m
Universität <1.250m

Nahversorgung
Supermarkt <250m
Bäckerei <250m
Einkaufszentrum <250m

Sonstige
Bank <250m
Geldautomat <250m
Polizei <250m
Post <250m

Verkehr
Bus <500m
Bahnhof <500m
Autobahnanschluss <2.750m
Flughafen <5.750m

Angaben Entfernung Luftlinie / Quelle: OpenStreetMap


Bitte beachten Sie weiters, dass aufgrund unserer Nachweispflicht nur vollständig ausgefüllte Anfragen mit Namen,
Telefonnummer und E-Mail-Adresse von uns beantwortet werden können.

Kontaktieren

GewerblichWohnglück Immobilien e.U.Herr Nikolaus Glück
Nachricht
Anrede
Vorname
Nachname
E-Mail
Telefon
GewerblichWohnglück Immobilien e.U.Herr Nikolaus Glück
 Verifiziert von ImmoScout24
Bronze Partner