{"obj_regio1":"003","obj_regio2":"003006","obj_regio3":"003006001","obj_ityp":"3","obj_zipCode":"2534","obj_title":"BAUBEGINN IN KÜRZE - WBF möglich!","obj_picture":"https://pictures.immobilienscout24.de/prod.www.immobilienscout24.at/pictureserver/loadPicture?q=70&id=012.0012000001OuIuu-1737053409-7844aa42f2a248faa5938418e2c167be","obj_exclusiveExpose":"false","obj_cwId":null,"obj_purchasePrice":469000,"obj_purchasePriceRange":"8","obj_baseRentRange":null}
  • Parkplatz
  • Terrasse
  • Garten

BAUBEGINN IN KÜRZE - WBF möglich!

469.000
 
108 m²5 ZimmerGartenTerrasse 16 m²
Preis / m²4.340,18 €
Grundstücksfläche-
Baujahr2025
MY-MAKLER GS Immobilien GmbHFrau Brigitte Handler
2534 Alland

Einmalige Kosten

Kaufpreis469.000 €
Kaufpreis pro m²4.340,18 €
Kalkuliert von ImmoScout24
Provision: 3% des Kaufpreises

Hallo neues Zuhause!

Kenne deine Chance mit Plus

Online seit120Gesehen80Kontaktiert40Gemerkt63
Plus locked

Merkmale

Verfügbar ab 12 Monate ab Kauf
Einfamilienhaus
Baujahr 2025, Neubau, Erstbezug, Fertigteilbauweise, Ausbauhaus, Flachdach, Estrich, Insgesamt 2 Etagen
Wohnfläche 108,06 m²
Gartenfläche 43,99 m²
1 Terrasse 15,73 m² südseitig
südseitig, Garten
5 Zimmer
2 Badezimmer, 2 Toiletten, Gäste WC
Parkplatz
2 Parkplätze, 2 Parkmöglichkeiten

Ausstattung

Badewanne, Dusche, Fenster, Rolläden

Heizung

FußbodenheizungLuftwärmepumpe
Heizwärmebedarf (HWB)
38 kWh/(m²a)
B
Gesamtenergieeffizienzfaktor (fGEE)
0.66
A+

Beschreibung

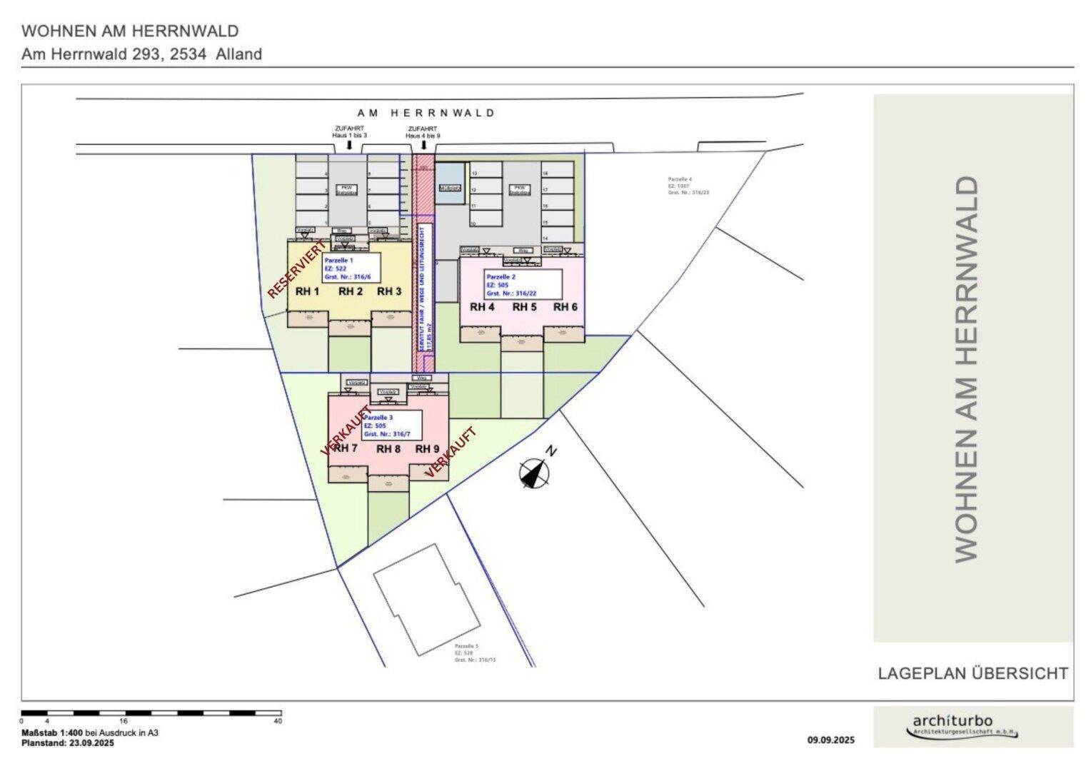
Auf einer reizenden Anhöhe, umgeben von Feldern und Wäldern und gleich gegenüber der bekannten Tropfsteinhöhe entsteht in einer ruhigen Gasse eine kleine Wohnhausanlage mit 9 Wohneinheiten.

3 Wohnblöcke mit jeweils 3 Reihenhäusern bieten mit großzügigen und durchdachten Grundrissen, vor allem Jungfamilien mit großem Platzbedarf, eine ideale Wohnbasis. Die Reihenhäuser haben jeweils 5 Zimmer und eine Wohnnutzfläche zwischen 104 m2 – 108 m2

Die Häuser werden dem aktuellen Nachhaltigkeitstrend in modernster Niedrigenergie-Holzriegelbauweise errichtet. Die ökologische Bauweise und die hohe Wärmedämmung halten im Winter ihr Haus warm und im Sommer schön kühl. Durch das Integrieren von Holzelementen an der Vollwärmeschutzfassade wird, neben der Energieeinsparung, auch ein warmes und einladendes Erscheinungsbild geschaffen, wodurch der Baustoff Holz auch sichtbar und fühlbar wird.

Eine PV Anlage kann optional gegen Aufpreis installiert werden und ist Voraussetzung für die Inanspruchnahme einer Wohnbauförderung.

Pro Wohneinheit können bis zu zwei Stellplätze um € 6.000/STPL käuflich erworben werden.

Reihenhaus 3
5 Zimmer
108 m2 Wohnnutzfläche
16 m2 Terrasse
11 m2 Vorplatz
44 m2 Gartenfläche
2 Bäder
2 WC
N / S Ausrichtung

Im Erdgeschoß sind jeweils Vorraum, WC, Technik- und Abstellraum, ein Zimmer sowie eine große Wohnküche mit Ausgang auf die Terrasse und den Garten angeordnet. Im Obergeschoß finden Sie 3 Schlafzimmer sowie zwei Badezimmer mit Dusche bzw. Badewanne und jeweils mit 1 WC.

BAUWEISE
Holzriegelbauweise auf wärmegedämmter Stahlbetonplatte
Niedrigenergiebauweise mit ökologisch nachhaltigen Baustoffen
Kunststoff-Alufenster, 3-fach verglast, Uw Glas 0,5 W/m2
Vaillant Luftwasser Wärmepumpe / Fußbodenheizung und -kühlung
Riesige Terrassen sowie Eigengärten in unterschiedlichen Größen

ECKDATEN
Belagsfertige Ausführung – Schlüsselfertigstellung gegen Aufpreis möglich
Alle Fenster laut OIB mit elektrischen Rollläden
PV Anlage möglich (Voraussetzung für Wohnbauförderung)
Stellplatz / E-Auto Ladestation möglich
Bezugsbereit innerhalb von 12 Monaten
Wasseranschlüsse im Außenbereich vorbereitet

LAGE / INFRASTRUKTUR / VERKEHR
Umgeben von den bekannten Orten Heiligenkreuz und Mayerling, eingebettet in der malerischen Landschaft des Wienerwalds sowie kurz vor den Toren Wiens finden Sie hier eine geniale Infrastruktur, der es an nichts fehlt.

Sämtliche Geschäfte des täglichen Bedarfs befinden sich im Ort. Es sind nur kurze Distanzen zu Apotheke, Ärzte, Banken, Gasthäuser sowie zu den Supermärkten BILLA und SPAR.

Öffentliche Anbindung:
Bus 108 – Alland – St. Pölten
Bus 169 – Alland - Wien Hauptbahnhof
Bus 265 – Alland – Gaaden – Hinterbrühl - Mödling
Mit dem Auto gelangen Sie über die Auffahrten Alland bzw. Mayerling auf der A21 nach St. Pölten bzw. Wien .

BILDUNGSEINRICHTUNGEN
Im Ort befinden sich Kindergarten, Volksschule, Neue Mittelschule und Musikschule.
Weiterführende Schulen befinden sich in Baden (Krankenpflegeschule, HBLA, HASCH, HAK) und Sankt Pölten (HASCH, HAK, HTL, HBLA, HTS, Gesundheits- und Krankenpflegeschule, etc.), welche durch Busverbindungen gut erreichbar sind.

FREIZEIT
In dieser naturnahen Umgebung haben Sie viele Möglichkeiten der Freizeitgestaltung, wie zB Wandern, Laufen, Radfahren, Reiten, etc. Ebenso finden Sie hier zahlreiche lohnende Ausflugsziele, um sich am Wochenende vom Arbeitsalltag zu entschleunigen.

SERVICE
Finanzierungsberatung
Einrichtungsberatung

Nebenkosten:
3,5 % Grunderwerbsteuer, temporäre Gebührenbefreiung* bei dringendem Wohnbedürfnis gemäß § 25a, ansonsten1,1 % Eintragungsgebühr, 1,5 % + 20 % Ust. treuhändische Abwicklung durch die Rechtsanwältin (bei Finanzierung plus 0,5 %) sowie Barauslagen, bei Finanzierung 1,2 % Pfandrechtseintragungsgebühr, 3 % + 20 % Ust. Vermittlungsprovision. WOHNBAUFÖRDERUNG MÖGLICH!

*Wegfall von Grundbuch- und Pfandrechtseintragungsgebühr mit Konjunkturpaket 2024:
Befristete Abschaffung der Grundbuchseintragungs- und Pfandrechtseintragungsgebühr für den Erwerb von Wohnraum. Diese Maßnahme, gültig für zwei Jahre, betrifft die Anschaffung von Eigentum (nur bei Neubauten oder Neuschaffung zur Selbstnutzung) bis zu einem Betrag von jeweils € 500.000. Übersteigt der Betrag diese Grenze, werden die Gebühren bis zu diesem Betrag erlassen. Weitere Voraussetzung für diese Gebührenbefreiung ist die Befriedigung eines dringenden Wohnbedürfnisses.

Wir weisen darauf hin, dass zwischen dem Vermittler und dem zu vermittelnden Dritten ein familiäres oder wirtschaftliches Naheverhältnis besteht.

Der Vermittler ist als Doppelmakler tätig.


Infrastruktur / Entfernungen

Gesundheit
Arzt <1.000m
Apotheke <1.000m

Kinder & Schulen
Schule <1.000m
Kindergarten <1.500m
Höhere Schule <5.000m
Universität <5.000m

Nahversorgung
Supermarkt <1.500m
Bäckerei <6.000m

Sonstige
Geldautomat <1.000m
Bank <1.000m
Post <1.000m
Polizei <1.000m

Verkehr
Bus <500m
Autobahnanschluss <2.000m
Bahnhof <8.000m

Angaben Entfernung Luftlinie / Quelle: OpenStreetMap

Kann ich mir diese Immobilie leisten?

  • % Nebenkosten
    0 €/ Monat
  • % Zinsen
    0 €/ Monat
  • % Kaufpreis
    0 €/ Monat
*
pro Monat
* errechnete monatliche Kreditrate bei einem angenommenen Effektivzins von 1.6% p.a. Die Berechnung stellt einen unverbindlichen Richtwert dar und ist von der Bonität, Kredithöhe, Laufzeit, Verwendungszweck und Besicherung abhängig.

Kontaktieren

GewerblichMY-MAKLER GS Immobilien GmbHFrau Brigitte Handler
Nachricht
Anrede
Vorname
Nachname
E-Mail
Telefon
Ich bin Eigentümer:in einer Immobilie
GewerblichMY-MAKLER GS Immobilien GmbHFrau Brigitte Handler
 Verifiziert von ImmoScout24
Bronze Partner