{"obj_regio1":"009","obj_regio2":"009001","obj_regio3":"009001001","obj_ityp":"7","obj_zipCode":"1010","obj_title":"Großzügige Büroflächen insgesamt 828,75 m² in repräsentativem Stilaltbau in Toplage des 1.Bezirks!","obj_picture":"https://pictures.immobilienscout24.de/prod.www.immobilienscout24.at/pictureserver/loadPicture?q=70&id=012.0012000001E83jW-1683733401-a468ed7ab3ea47e6b715994a409e6d8c","obj_exclusiveExpose":"false","obj_cwId":null,"obj_purchasePrice":null,"obj_purchasePriceRange":null,"obj_baseRentRange":"9"}
  • Altbau

Großzügige Büroflächen insgesamt 828,75 m² in repräsentativem Stilaltbau in Toplage des 1.Bezirks!

16.575
 
828 m²23 Zimmer
Ticon ImmobilienserviceFrau Grazia Belmar
Tegetthoffstraße, 1010 Wien

Laufende Kosten

Miete16.575 €
Preis pro m²20,02 €
Kalkuliert von ImmoScout24
Gesamtbelastung Netto19.453,75 €
USt. Gesamtbelastung3.890,75 €
Gesamtmiete Netto18.625 €
USt. Gesamtmiete3.725 €
USt. Miete3.315 €
Betriebskosten2.050 €
USt. Betriebskosten410 €
Heizkosten Netto828,75 €
USt. Heizkosten165,75 €

Einmalige Kosten

Provision: 3 Bruttomonatsmieten zzgl. 20% USt.
Kaution: 3 Bruttomonatsmieten

Hallo neues Zuhause!

Kenne deine Chance mit Plus

Online seit120Gesehen80Kontaktiert40Gemerkt63
Plus locked

Merkmale

befristet auf 15 Jahre
Büro
Altbau, Parkett
Bürofläche 828 m²
23 Zimmer

Ausstattung

Klimatisiert
Personenaufzug

Heizung

EtagenheizungGas

Beschreibung

Großzügige Büroflächen insgesamt 828,75 m² in repräsentativem Stilaltbau in Toplage des 1.Bezirks! (auch teilbar)

Zur langfristigen Vermietung gelangen insgesamt 828 m² Büroflächen in unmittelbarer Nähe des Neuen Markt. Die Büroflächen erstrecken sich über 4 Stockwerke und können auch einzeln angemietet werden. Die Objekte sind derzeit noch adaptierungsbedürftig und werden nach Absprache mit dem neuen Mieter individuell renoviert. Nach Absprache mit dem Eigentümer kann  bei Renovierung durch den Mieter ein Baukostenzusschuss gewährt werden.

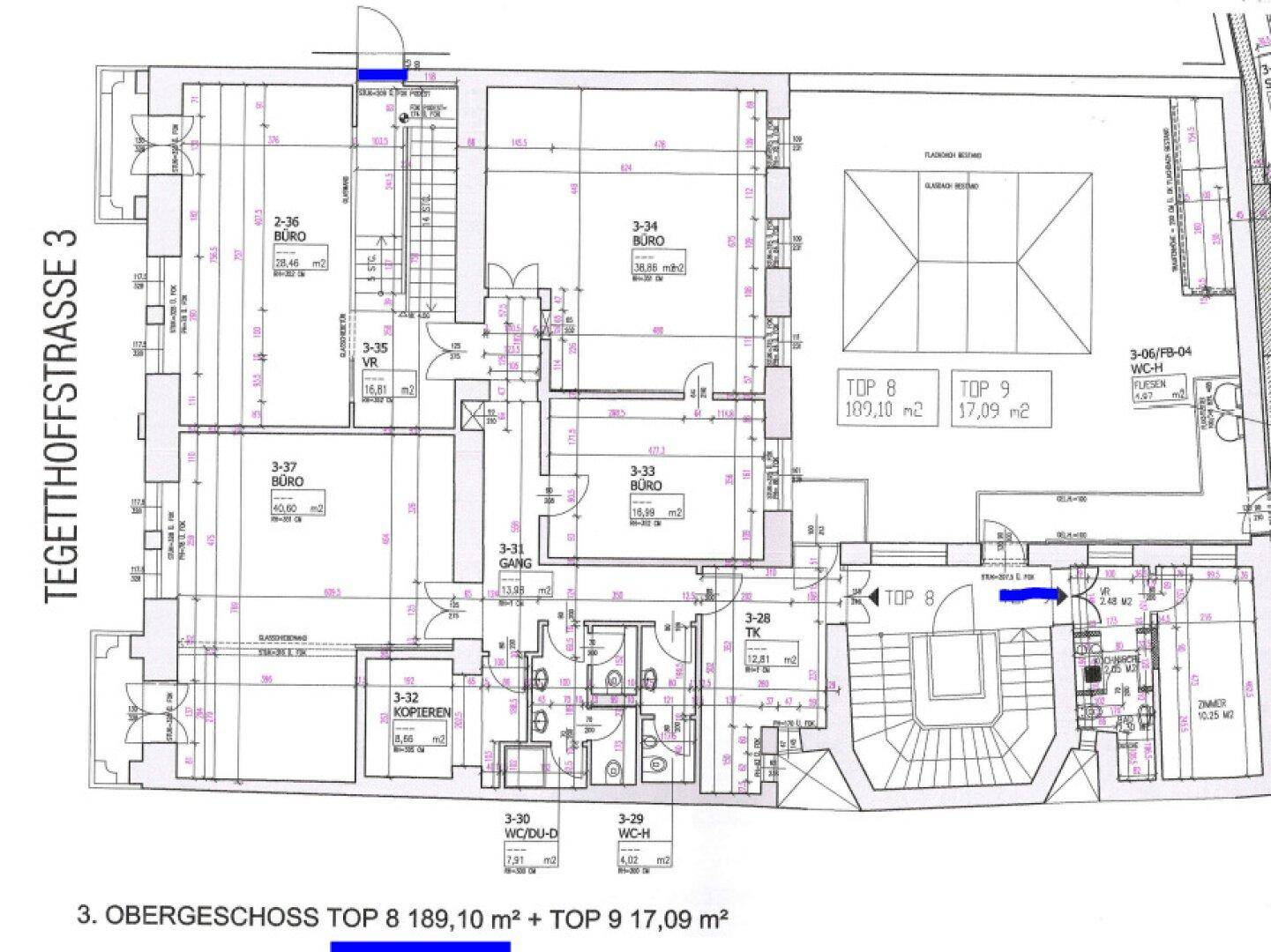
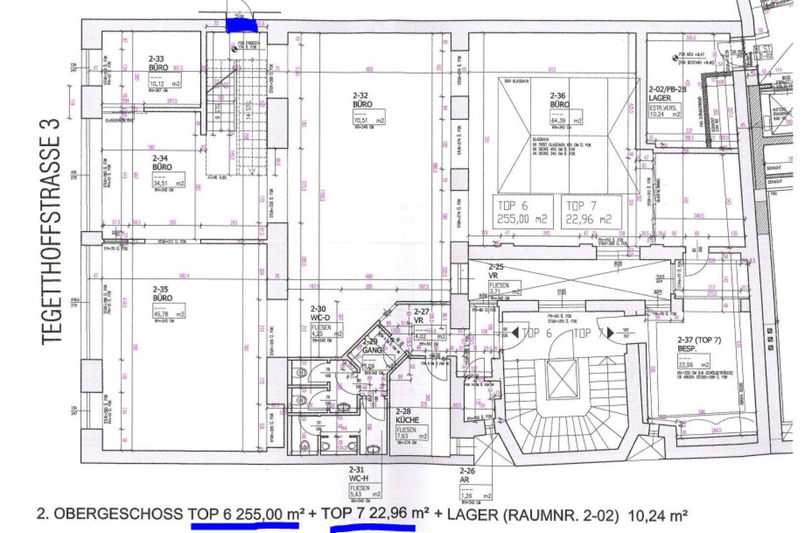
1.Stock:    168,11 m², Vorraum, 5 Zimmer, Küche, 2 WC`s, Abstellraum
2.+3.Stock:  467,06 m², Vorraum, 4 Großraumbüroräume, 3 weitere Räume, einer davon mit Glaskuppel, Küche,  Abstellraum, WC Anlage, 2 Balkone,  die 2 Stokcwerke sind durch eine Innentreppe verbunden
4.Stock:  193,58 m², Vorraum 6 Zimmer, Küche, Abstellraum, 2 separate WC`s
Austattung:
Hauszentralheizung
Eichenparkettböden
Klimatisierung möglich

Für Fragen und Terminvereinbarungen kontaktieren Sie bitte Frau Belmar Anbieter kontaktieren, Anbieter kontaktieren
Wir möchten darauf hinweisen, dass Belmar Immobilien als Doppelmakler tätig ist. Sämtliche angegebenen Informationen basieren auf Daten, die uns von der Abgeberseite zur Verfügung gestellt wurden. Die Firma Belmar Immobilien kann die Richtigkeit dieser Angaben nicht gewährleisten und daher keinerlei Haftung dafür übernehmen.

Hinweis gemäß Energieausweisvorlagegesetz: Ein Energieausweis wurde vom Eigentümer bzw. Verkäufer, nach unserer Aufklärung über die generell geltende Vorlagepflicht, sowie Aufforderung zu seiner Erstellung noch nicht vorgelegt. Daher gilt zumindest eine dem Alter und der Art des Gebäudes entsprechende Gesamtenergieeffizienz als vereinbart. Wir übernehmen keinerlei Gewähr oder Haftung für die tatsächliche Energieeffizienz der angebotenen Immobilie.


Infrastruktur / Entfernungen

Gesundheit
Arzt <250m
Apotheke <250m
Klinik <1.000m
Krankenhaus <1.250m

Kinder & Schulen
Schule <500m
Kindergarten <750m
Universität <250m
Höhere Schule <1.000m

Nahversorgung
Supermarkt <250m
Bäckerei <250m
Einkaufszentrum <500m

Sonstige
Geldautomat <250m
Bank <250m
Post <250m
Polizei <250m

Verkehr
Bus <250m
U-Bahn <250m
Straßenbahn <500m
Bahnhof <500m
Autobahnanschluss <3.500m

Angaben Entfernung Luftlinie / Quelle: OpenStreetMap

Kontaktieren

GewerblichTicon ImmobilienserviceFrau Grazia Belmar
Nachricht
Anrede
Vorname
Nachname
E-Mail
Telefon
GewerblichTicon ImmobilienserviceFrau Grazia Belmar
 Verifiziert von ImmoScout24
Bronze Partner