{"obj_regio1":"007","obj_regio2":"007006","obj_regio3":"007006014","obj_ityp":"0","obj_zipCode":"6500","obj_title":"Ideale Neubauwohnung in Landeck inkl. Tiefgaragenstellplatz","obj_picture":"https://pictures.immobilienscout24.de/prod.www.immobilienscout24.at/pictureserver/loadPicture?q=70&id=012.0015I00000gJaf4-4147866d9e4b4bdca84a09faaed97c8d","obj_exclusiveExpose":"false","obj_cwId":null,"obj_purchasePrice":null,"obj_purchasePriceRange":null,"obj_baseRentRange":"6"}
  • Exklusiv für Plus
  • Provisionsfrei
  • Parkplatz
  • Erdgeschosswohnung
  • Balkon
  • Terrasse
  • Garten

Ideale Neubauwohnung in Landeck inkl. Tiefgaragenstellplatz

989
 
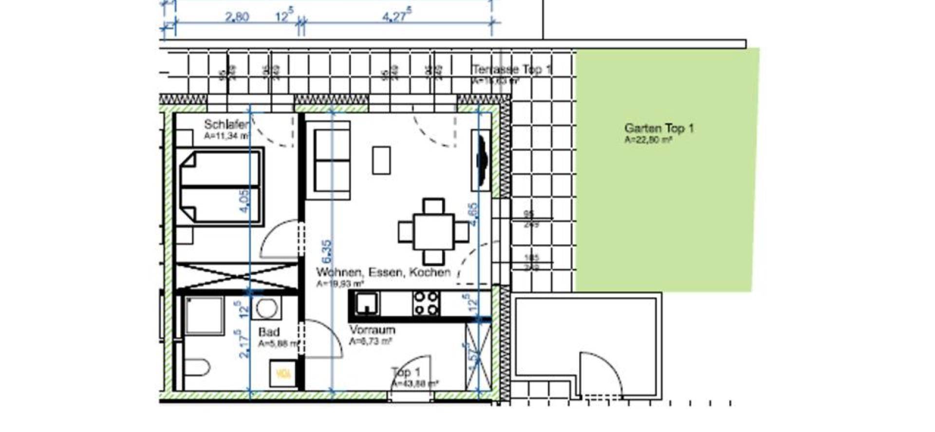
44 m²2 ZimmerBalkonGartenTerrasse
EtageErdgeschoss
Befristung-
Kaution3000
PrivatJohannes Wechner
Ödweg 21, 6500 Landeck

Laufende Kosten

Monatliche Kosten989 €
Preis pro m²22,48 €
Kalkuliert von ImmoScout24
Betriebskosten220 €

Einmalige Kosten

Kaution: 3000

Hallo neues Zuhause!

Kenne deine Chance mit Plus

Online seit120Gesehen80Kontaktiert40Gemerkt63
Plus locked

Merkmale

Verfügbar ab Februar
Erdgeschosswohnung
Neubau, Unterkellert, Parkett, Erdgeschoss
Gesamtfläche 44 m²
1 Terrasse
1 Balkon, Garten, Terrasse
2 Zimmer
1 Badezimmer
Garage
1 Parkmöglichkeit

Ausstattung

Einbauküche, Gartennutzung
Rollstuhlgerecht, Personenaufzug

Heizung

ZentralheizungLuftwärmepumpe

Beschreibung

• Neue (3 Jahreund perfekt eingteilte 2 Zimmerwohnung
• geräumiger Vorraum, Wohnküche, Schlafzimmer und Bad
• hochwertige EWE Einbauküche
• Garagenstellplatz inklusive
• feine Terasse und Garten

Achtung vor Betrug!

  • Überweise kein Geld ins Ausland oder über einen Treuhandservice!
  • Übermittle niemals deinen Ausweis vor einer Besichtigung!
  • Bezahle nie vor einer Besichtigung, auch keine Provision!

Du wirst dennoch aufgefordert eines dieser Dinge zu tun oder hast Zweifel?

Kontaktieren

PrivatJohannes Wechner
Nachricht
PrivatJohannes Wechner