{"obj_regio1":"008","obj_regio2":"008002","obj_regio3":"008002024","obj_ityp":"25","obj_zipCode":"6923","obj_title":"Top-Gewerbeobjekt in bester Lage zu Mieten","obj_picture":"https://pictures.immobilienscout24.de/prod.www.immobilienscout24.at/pictureserver/loadPicture?q=70&id=012.0012000001E83yI-1760945347-87b5b83582c941279347419ca6f83eb6","obj_exclusiveExpose":"true","obj_cwId":"ADS0017894094","obj_purchasePrice":null,"obj_purchasePriceRange":null,"obj_baseRentRange":null}

    Top-Gewerbeobjekt in bester Lage zu Mieten

    Preis auf Anfrage
     
    4148 m²
    RE/MAX Immowest - R. Götze GmbHHerr Reinhard Götze
    Dammstraße 14, 6923 Lauterach

    Einmalige Kosten

    Preisinformation: Auf Anfrage
    Provision: 3BMM

    Hallo neues Zuhause!

    Kenne deine Chance mit Plus

    Online seit120Gesehen80Kontaktiert40Gemerkt63
    Plus locked

    Merkmale

    Sonstige
    Baujahr 1992
    Gesamtfläche 4.148 m²
    Bürofläche 681 m², Nutzfläche 4.148 m², Lagerfläche 2.954 m²

    Ausstattung

    Klimatisiert

    Heizung

    Gas
    Heizwärmebedarf (HWB)
    46.00 kWh/(m²a)
    B
    Gesamtenergieeffizienzfaktor (fGEE)
    1.11
    C

    Beschreibung

    + Nutzfläche ca. 4.148 m²
    + Halle ist beheizt mit einer Luftheizung
    + Beleuchtung komplett auf LED umgestellt vor ca. 10 Jahren
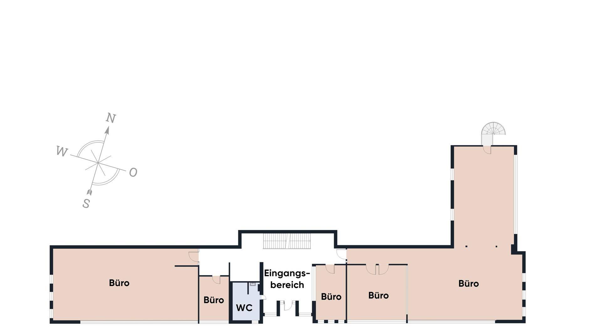
    + Wendeltreppe vom Büro in die Halle
    + 2 Anpassrampen
    + Raumhöhe Lagerhalle ca. 6 m
    + Anbindung Autobahn A14
    + Ausreichend Parkmöglichkeiten

    Halle und Büro in bester Lage

    Diese moderne Gewerbeliegenschaft aus dem Jahr 1992 vereint funktionale Hallenflächen mit großzügigen Büroeinheiten und bietet ideale Voraussetzungen für unterschiedlichste Branchen. Dank der Widmung BB-I-Pa,b,c eröffnen sich vielfältige Nutzungsmöglichkeiten für Produktion, Lager, Handel oder Dienstleistung.
    Die ca. 6 Meter hohe Halle ist mit einer effizienten Luftheizung ausgestattet und verfügt über zwei Anpassrampen – perfekt für eine reibungslose Anlieferung. Eine interne Wendeltreppe verbindet die Halle direkt mit dem Obergeschoss, wo sich die klimatisierten Büroräume befinden. Diese überzeugen durch ihre großzügige Gestaltung und flexible Aufteilung. Beheizt wird die gesamte Immobilie über eine Gaszentralheizung.
    Ein weiterer Pluspunkt: Die Beleuchtung wurde bereits auf moderne LED-Technik umgestellt – das sorgt für Energieeffizienz und geringe Betriebskosten. 
    Direkt am Gelände stehen ausreichend Parkplätze für Mitarbeitende und Kunden zur Verfügung – ein echter Mehrwert in der täglichen Nutzung.
    Diese Liegenschaft ist die perfekte Basis für effiziente Arbeitsabläufe, wirtschaftliches Wachstum und eine zukunftsorientierte Unternehmensführung. Jetzt mieten und durchstarten!
    Provision 3 Bruttomonatsmieten zzgl. 20% MwSt.
    Kaution: 3 BMM Bankgarantie oder Bar
    Vertragserrichtungskosten
    Mietvertragsgebühren

    Kontaktieren

    GewerblichRE/MAX Immowest - R. Götze GmbHHerr Reinhard Götze
    Nachricht
    Anrede
    Vorname
    Nachname
    E-Mail
    Telefon
    GewerblichRE/MAX Immowest - R. Götze GmbHHerr Reinhard Götze
     Verifiziert von ImmoScout24
    Silber Partner