{"obj_regio1":"003","obj_regio2":"003006","obj_regio3":"003006046","obj_ityp":"3","obj_zipCode":"2602","obj_title":"Heimeliges Doppelhaus in Holzbauweise – Wohnen mit Wohlfühlfaktor in ruhiger Siedlungslage!","obj_picture":"https://pictures.immobilienscout24.de/prod.www.immobilienscout24.at/pictureserver/loadPicture?q=70&id=012.0012000001E83sA-1760702506-ae657469fab44dcab4812903b940fea5","obj_exclusiveExpose":"false","obj_cwId":null,"obj_purchasePrice":309000,"obj_purchasePriceRange":"7","obj_baseRentRange":null}
  • Parkplatz
  • Reihenhaus
  • Terrasse

Heimeliges Doppelhaus in Holzbauweise – Wohnen mit Wohlfühlfaktor in ruhiger Siedlungslage!

309.000
 
93 m²3 ZimmerTerrasse 20 m²
Preis / m²3.322,58 €
Grundstücksfläche200 m²
Baujahr2002
RE/MAX Welcome in BadenHerr Roland Wurth
2602 Blumau

Einmalige Kosten

Kaufpreis309.000 €
Kaufpreis pro m²3.322,58 €
Kalkuliert von ImmoScout24
Preisinformation: Fixpreis
Provision zzgl. 20% USt.: 3.00 % zuzüglich USt.

Laufende Kosten

Steuersatz20 %

Hallo neues Zuhause!

Kenne deine Chance mit Plus

Online seit120Gesehen80Kontaktiert40Gemerkt63
Plus locked

Merkmale

Verfügbar ab sofort
Reihenhaus
Baujahr 2002, Gepflegt, Fertigteilbauweise, Unterkellert
Wohnfläche 93 m²
Grundstücksfläche 200 m²
1 Terrasse 20 m²
3 Zimmer
Kellerfläche 49,18 m², 1 Badezimmer, 2 Toiletten
Parkplatz
1 Parkplatz, 1 Parkmöglichkeit

Heizung

ZentralheizungGas
Heizwärmebedarf (HWB)
100. kWh/(m²a)
D
Gesamtenergieeffizienzfaktor (fGEE)
1.550
C

Beschreibung

Dieses liebevoll gestaltete, teilrenovierte Doppelhaus in hochwertiger Holzbauweise vermittelt vom ersten Moment an ein Gefühl von Geborgenheit und Wärme. In ruhiger Siedlungslage im Ortsteil Blumau gelegen, bietet es den idealen Rückzugsort für Familien oder Paare, die Wert auf ein harmonisches Wohnumfeld legen.

Virtueller 360° Rundgang HIER KLICKEN

Garten:
Der südwestseitig ausgerichtete Garten ist eine kleine Wohlfühloase – mit einem gepflegten Grünbereich, einem erfrischenden Pool und einer teilüberdachten Terrasse mit Markise, die zum Entspannen und Verweilen einlädt.

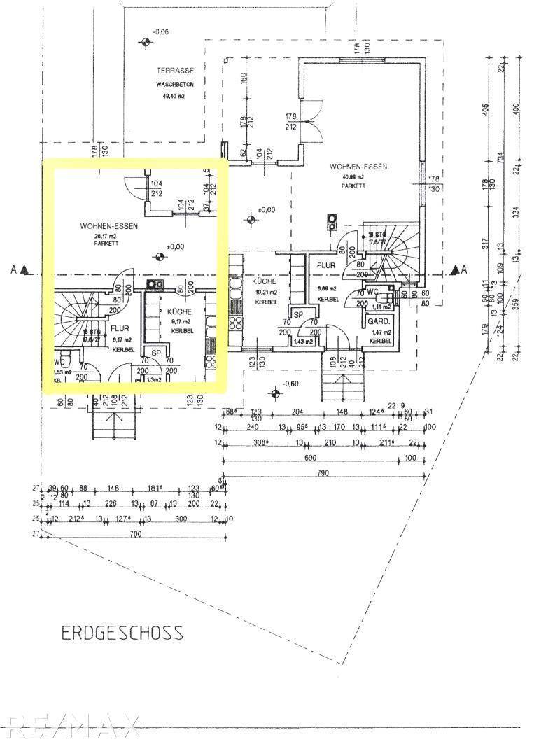
Erdgeschoß:
Das Herzstück des Hauses bildet der großzügige Wohn- und Essbereich mit gemütlichem Kaminofen. Von hier gelangen Sie auf die Terrasse und in den Garten. Die separate Küche bietet viel Platz zum Kochen und eine gemütliche Sitzbank. Eine Toilette mit Fenster sowie ein zentraler Vorraum, von dem alle Räume begehbar sind, ergänzen das Raumangebot im Erdgeschoß.

Obergeschoß:
Im Obergeschoß erwarten Sie zwei Schlafzimmer – eines davon mit begehbarem Schrankraum, beide mit herrlichem Blick in den Garten. Das großzügige Badezimmer bietet Ihnen eine Badewanne inkl. Dusche, eine Toilette und ein Fenster für angenehmes Tageslicht. Ein zusätzlicher Abstellraum bietet praktischen Stauraum. Auch hier sind alle Räume zentral über den Vorraum erreichbar.

Keller:
Die geräumigen 49 m² verteilen sich auf insgesamt 4 Räume. Neben dem Vorraum, einem Heizraum mit Anschlüssen für zwei Waschmaschinen und Trockner stehen Ihnen zwei weitere große Räume zur Verfügung, die sich ideal als Abstellraum, Werkstatt, Hobbyraum oder Lagerfläche eignen.

Ihr Auto parken Sie bequem unter dem eigenen Carport.

Beheizt wird das Haus mit einer bestens gewarteten Gaszentralheizung. Eine Solaranlage unterstützt die Warmwasseraufbereitung.

2024 wurden erneuert bzw. renoviert:

-Küche: neue DAN-Küche inkl. Geräten und Essecke, Boden neu verfließt
-Toilette Erdgeschoß: Bodenfliesen erneuert
-Badezimmer Obergeschoß: Möbel und Armaturen (Grohe) erneuert
-Vorraum Erdgeschoß und Keller inkl. Treppe: Boden neu verfließt
-Elektrik: Sicherungskasten modernisiert, alle Stecker und Schalter getauscht, Stromleitungen und Anschlüsse Vorgarten und Garten
erneuert
-alle Räume inkl. Keller ausgemalt, alle Sockelleisten erneuert


Blumau bietet eine ideale Kombination aus ländlicher Ruhe und ausgezeichneter Verkehrsanbindung. Baden, Wien und Wiener Neustadt sind in kurzer Zeit erreichbar. Einkaufsmöglichkeiten, Schulen und Freizeiteinrichtungen befinden sich in der Nähe.
Das Wohngebiet liegt unweit des Truppenübungsplatzes Blumau, dessen weitläufige Grünflächen das Landschaftsbild prägen und zur offenen, naturnahen Umgebung beitragen. Der Übungsbetrieb ist zeitlich geregelt, wodurch die Wohnqualität in dieser Region weiterhin hoch bleibt. Spaziergänge, Laufrunden und Radtouren in der umliegenden Natur sind hier besonders beliebt.

Richtpreis: EUR 309.000,-- *)
*) Beim angegebenen Preis handelt es sich um einen Richtpreis, welcher vom Interessenten mit einem erstellten Anbot definiert wird. Dieser kann, abhängig von der jeweiligen Nachfrage, auch über diesem Preis zu liegen kommen. Die Zustimmung erfolgt ausschließlich durch den Abgeber in Form von Gegenzeichnung des gestellten Anbotes!

In Entsprechung des FAGG (Fern- und Auswärtsgeschäfte-Gesetz) und des VRUG (Verbraucherrechte-Richtlinie-Umsetzungsgesetz) ist es uns leider nur mehr möglich, Termine nach Erhalt einer schriftlichen Anfrage mit vollständigen Kontaktdaten zu vereinbaren. Dies gilt ebenso für die Nennung relevanter Informationen wie z.B. der Lage. Sehr gerne sind wir auf diesem Wege bereit, die gewünschten Informationen und Unterlagen samt Adresse an Sie zu senden.
Unbedingt erforderlich sind:
+ Vor- und Nachname
+ aktuelle Meldeadresse (Hauptwohnsitz)
+ Telefonnummer
+ E-Mail Adresse

Hinweis zu Widerrufsrecht, Rücktrittsrecht bei Fern- und Auswärtsgeschäften: Gem. §11 FAGG (Fern- und Auswärtsgeschäftegesetz) kann der Interessent innerhalb von 14 Tagen vom Vertrag zurücktreten. Wünscht der Interessent mit der Kontaktaufnahme ein vorzeitiges Tätigwerden (Namhaftmachung und Adresse der Immobilie) des Immobilienbüros RE/MAX Welcome innerhalb der offenen Rücktrittsfrist,verzichtet er damit auf das Rücktrittsrecht vom Maklervertrag gem. §11 FAGG. Wir sind als Doppelmakler tätig.
Angaben gemäß gesetzlichem Erfordernis:

Heizwärmebedarf: 100.0 kWh/(m²a)
Klasse Heizwärmebedarf: D
Faktor Gesamtenergieeffizienz: 1.55
Klasse Faktor Gesamtenergieeffizienz: C

Sie finden alle unsere Objekte 2 Tage früher auf www.remax.at!

Kann ich mir diese Immobilie leisten?

  • % Nebenkosten
    0 €/ Monat
  • % Zinsen
    0 €/ Monat
  • % Kaufpreis
    0 €/ Monat
*
pro Monat
* errechnete monatliche Kreditrate bei einem angenommenen Effektivzins von 1.6% p.a. Die Berechnung stellt einen unverbindlichen Richtwert dar und ist von der Bonität, Kredithöhe, Laufzeit, Verwendungszweck und Besicherung abhängig.

Kontaktieren

GewerblichRE/MAX Welcome in BadenHerr Roland Wurth
Nachricht
Anrede
Vorname
Nachname
E-Mail
Telefon
Ich bin Eigentümer:in einer Immobilie
GewerblichRE/MAX Welcome in BadenHerr Roland Wurth
 Verifiziert von ImmoScout24
Bronze Partner