{"obj_regio1":"009","obj_regio2":"009001","obj_regio3":"009001016","obj_ityp":"2","obj_zipCode":"1160","obj_title":"Sonnige 2-Zimmer Wohnung, mit Loggia!","obj_picture":"https://pictures.immobilienscout24.de/prod.www.immobilienscout24.at/pictureserver/loadPicture?q=70&id=012.0015I00000OgQaI-1760639202-c7fec54ee36945a8b95c0d61cc57fbda","obj_exclusiveExpose":"true","obj_cwId":"ADS0017892045","obj_purchasePrice":355000,"obj_purchasePriceRange":"7","obj_baseRentRange":null}
  • Parkplatz
  • Video Live-Besichtigung

Sonnige 2-Zimmer Wohnung, mit Loggia!

355.000
 
54 m²2 ZimmerLoggia 6 m²
Preis / m²6.576,51 €
Etage2
Baujahr2008
Thurner Realitäten GmbHFrau Petra Gepp
1160 Wien
Die Wohnung befindet sich in 1160 Wien, im 16. Bezirk von Wien. Sie liegt in unmittelbarer Nähe zur Stadthalle und der Lugner City, einem beliebten Einkaufszentrum. In der Umgebung gibt es eine Vielzahl an Einrichtungen wie Arztpraxen, Apotheken, Kliniken, Schulen, Kindergärten, Universitäten und Höheren Schulen. Auch Einkaufsmöglichkeiten sind in der Nähe vorhanden, darunter Supermärkte, Bäckereien.

Einmalige Kosten

Kaufpreis355.000 €
Kaufpreis pro m²6.576,51 €
Kalkuliert von ImmoScout24
Provision: 3% des Kaufpreises zzgl. 20% USt.

Laufende Kosten

Monatliche Kosten210,09 €
Betriebskosten132,91 €
USt. Betriebskosten13,29 €
Monatliche Kosten Netto196,8 €
Sonstige Kosten Netto63,89 €

Hallo neues Zuhause!

Kenne deine Chance mit Plus

Online seit120Gesehen80Kontaktiert40Gemerkt63
Plus locked

Merkmale

Verfügbar ab sofort
Wohnung
Baujahr 2008, Neubau, Modernisiert, Unterkellert, letzte Modernisierung 2022, 2. Etage
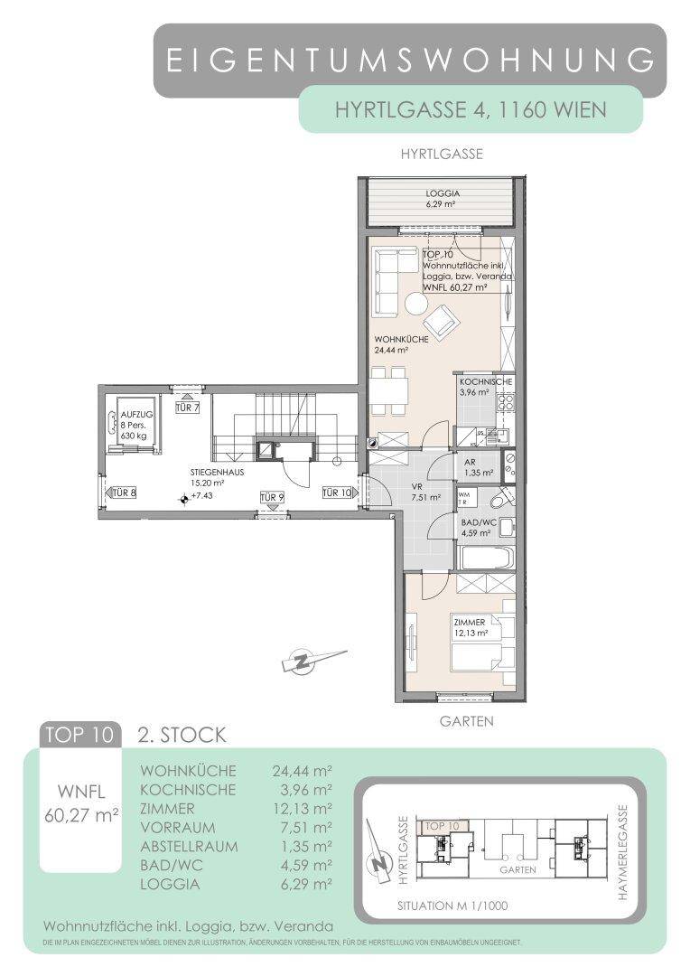
Wohnfläche 53,98 m²
Nutzfläche 60,27 m²
1 Loggia 6,29 m²
2 Zimmer
1 Badezimmer, 1 Toilette
Garage
Fahrradabstellraum, 1 Parkplatz, 1 Garage, 1 Parkmöglichkeit

Ausstattung

Offene Küche, Badewanne
Personenaufzug

Heizung

FernwärmeGas
Heizwärmebedarf (HWB)
53.6 kWh/(m²a)
C
Gesamtenergieeffizienzfaktor (fGEE)
0.88
B

Beschreibung

Lichtdurchflutete 2- Zimmer Wohnung, mit Loggia! 

Diese sonnige Wohnung befindet sich in der begehrten Gegend von 1160 Wien und bietet Ihnen alles, was Sie für ein komfortables und modernes Wohnen benötigen. Die 60,27 m² große Wohnung befindet sich in der 2. Etage eines gepflegten Mehrfamilienhauses und besticht durch eine hochwertige Ausstattung sowie eine perfekte Lage.

Das Highlight dieser Wohnung ist die großzügige Loggia, auf der Sie entspannte Stunden in der Sonne genießen können. Auch ein Stellplatz für Ihr Auto ist vorhanden, sodass Sie sich keine Gedanken über einen Parkplatz machen müssen.

Die Wohnung wurde kürzlich modernisiert und präsentiert sich in einem top Zustand. Beim Betreten werden Sie von einer freundlichen und hellen Atmosphäre empfangen. Die großzügige Wohnküche mit offener Küche bietet ausreichend Platz für gemeinsame Kochabende mit Familie und Freunden. Die hochwertigen Geräte und die moderne Einrichtung lassen dabei keine Wünsche offen.

Eine weitere Besonderheit dieser Immobilie ist die Fernwärme-Etagenheizung, die für wohlige Wärme in den kalten Monaten sorgt. Der Personenaufzug im Haus ermöglicht Ihnen zudem einen barrierefreien Zugang zu Ihrer Wohnung. Das Badezimmer ist mit einer Badewanne ausgestattet, in der Sie nach einem langen Arbeitstag entspannen können. Ein Fahrrad- und Kinderwagenraum sind selbstverständlich vorhanden.

Vom Vorraum aus gelangt man zentral in alle Zimmer. Linker Hand gelangen Sie in das sonnendurchflutete Wohnzimmer mit Küchennische und und Ausgang zur Loggia. Rechts vom Eingangsbereich befindet sich das gartenseitig ausgerichtete Schlafzimmer.  Daneben das Badezimmer mit Badewanne und WC. Für zusätzlichen Stauraum verfügt die Wohnung über einen Abstellraum und ein Kellerabteil.

In der Tiefgarage steht ein PKW-Stellplatz (Stapelparker) pro Wohnung zur Verfügung: Kosten € 7.000

Raumaufteilung:

• Vorzimmer
• Wohnzimmer mit Küchennische
• 1 Schlafzimmer 
• Badezimmer mit Badewanne und WC
• separats WC
• Abstellraum
• Loggia 6,29 m²

Lage:

Das Objekt befindet sich im 16. Wiener Gemeindebezirk zwischen der Gablenzgasse und der Koppstrasse. Zahlreiche Geschäfte des täglichen Bedarfs befinden sich in unmittelbarer Nähe und bieten zusammen mit der öffentlichen Verkehrsanbindung eine hervorragende Infrastruktur. Es gibt mehrere Kindergärten und Schulen in der Umgebung. Die Stadthalle und die Lugner City sind ebenfalls nicht weit entfernt.

Die U-Bahnstation U6 Burggasse-Stadthalle sowie zahlreiche Strassenbahnen und Busse sind ebenso fussläufig zu erreichen.

Überzeugen Sie sich selbst von dieser traumhaften Immobilie und vereinbaren Sie noch heute einen Besichtigungstermin. Diese Wohnung bietet Ihnen nicht nur ein modernes und komfortables Wohnen, sondern auch eine perfekte Lage und eine hochwertige Ausstattung. Zögern Sie nicht und werden Sie Teil dieses attraktiven Wohnviertels in Wien. Wir freuen uns auf Ihre Kontaktaufnahme!

Für eine unverbindliche Besichtigung:

Wir freuen uns Ihnen die Liegenschaft jederzeit persönlich vorzustellen zu dürfen.

Kontaktieren Sie gerne Frau Petra Gepp persönlich unter Anbieter kontaktieren sowie auch unter Anbieter kontaktierenUnser Büro erreichen Sie unter Anbieter kontaktieren.

Auf ein wirtschaftliches Naheverhältnis mit dem Abgeber, bedingt durch regelmäßige Geschäftsbeziehungen, wird hingewiesen.

Nebenkosten: 

Grundbucheintragung: 1,1% d.KP.

Grunderwerbssteuer: 3,5% d.KP.

Maklerprovision: 3% d.KP. + 20% USt.

Kaufvertragshonorar: 1,2% des Kaufpreises zzgl. Barauslagen und USt. | Die Errichtung und Durchführung des Kaufvertrages erfolgt durch die Kanzlei Tiefenthaler Gnesda Rechtsanwälte GmbH.

Maklervereinbarung: Wir ersuchen um Verständnis, dass wir bei Anfragen zur Objektadresse, bzw. Besichtigungstermin  aufgrund neuer gesetzlicher Bestimmungen Unterlagen erst dann zusenden können, wenn Sie vorab bestätigen, dass Sie unser sofortiges Tätigwerden wünschen und über Ihre Rücktrittsrechte aufgeklärt wurden. Sie bekommen nach Ihrer schriftlichen Anfrage mit vollständiger Angabe des Namens, Anschrift und Telefonnummer ein Email, in dem Sie diese Punkte bestätigen müssen.

Haftungsausschluss:  Wir weisen darauf hin, dass sämtliche Daten im vorliegenden Angebot sowie die von unserem Büro an Sie weitergegebenen Auskünfte, vom Eigentümer der Immobilie zur Verfügung gestellt wurden. Ebenso sind Informationen von Dritten (z.B. behördliche Informationen) eingeholt worden, auch für diese können wir unsererseits keinerlei Haftung für deren uneingeschränkte Richtigkeit übernehmen.


Infrastruktur / Entfernungen

Gesundheit
Arzt <500m
Apotheke <500m
Klinik <1.000m
Krankenhaus <2.000m

Kinder & Schulen
Schule <500m
Kindergarten <500m
Universität <1.000m
Höhere Schule <1.000m

Nahversorgung
Supermarkt <500m
Bäckerei <500m
Einkaufszentrum <1.000m

Sonstige
Geldautomat <500m
Bank <1.000m
Post <1.000m
Polizei <1.000m

Verkehr
Bus <500m
U-Bahn <1.000m
Straßenbahn <500m
Bahnhof <1.000m
Autobahnanschluss <5.000m

Angaben Entfernung Luftlinie / Quelle: OpenStreetMap

Kann ich mir diese Immobilie leisten?

  • % Nebenkosten
    0 €/ Monat
  • % Zinsen
    0 €/ Monat
  • % Kaufpreis
    0 €/ Monat
*
pro Monat
* errechnete monatliche Kreditrate bei einem angenommenen Effektivzins von 1.6% p.a. Die Berechnung stellt einen unverbindlichen Richtwert dar und ist von der Bonität, Kredithöhe, Laufzeit, Verwendungszweck und Besicherung abhängig.

Kontaktieren

GewerblichThurner Realitäten GmbHFrau Petra Gepp
Nachricht
Anrede
Vorname
Nachname
E-Mail
Telefon
Ich bin Eigentümer:in einer Immobilie
GewerblichThurner Realitäten GmbHFrau Petra Gepp
Video Live-Besichtigung
 Verifiziert von ImmoScout24
Sales Professional AwardImmo Expert ***** Award