{"obj_regio1":"009","obj_regio2":"009001","obj_regio3":"009001016","obj_ityp":"2","obj_zipCode":"1160","obj_title":"Jetzt einziehen! Moderne Neubauwohnungen an der Gablenzgasse","obj_picture":"https://pictures.immobilienscout24.de/prod.www.immobilienscout24.at/pictureserver/loadPicture?q=70&id=012.0012000001E83tC-1760547388-84f6795fa389435bac0b2a041d52cc28","obj_exclusiveExpose":"true","obj_cwId":"ADS0017893840","obj_purchasePrice":355000,"obj_purchasePriceRange":"7","obj_baseRentRange":null}
  • Video Live-Besichtigung

Jetzt einziehen! Moderne Neubauwohnungen an der Gablenzgasse

355.000
 
54 m²2 ZimmerLoggia 6 m²
Preis / m²6.576,51 €
Etage2
Projektstatus-
EHL Wohnen GmbHFrau Julie Wittrich
Hyrtlgasse, 1160 Wien

Einmalige Kosten

Kaufpreis355.000 €
Kaufpreis pro m²6.576,51 €
Kalkuliert von ImmoScout24
Provision: 3% des Kaufpreises zzgl. 20% USt.

Laufende Kosten

Monatliche Kosten210,09 €
Betriebskosten132,91 €
USt. Betriebskosten13,29 €
Monatliche Kosten Netto196,8 €
Sonstige Kosten Netto63,89 €

Hallo neues Zuhause!

Kenne deine Chance mit Plus

Online seit120Gesehen80Kontaktiert40Gemerkt63
Plus locked

Merkmale

Verfügbar ab sofort
Wohnung
Baujahr 2008, Neubau, Gepflegt, Unterkellert, Parkett, Fliesen, 2. Etage, Insgesamt 6 Etagen
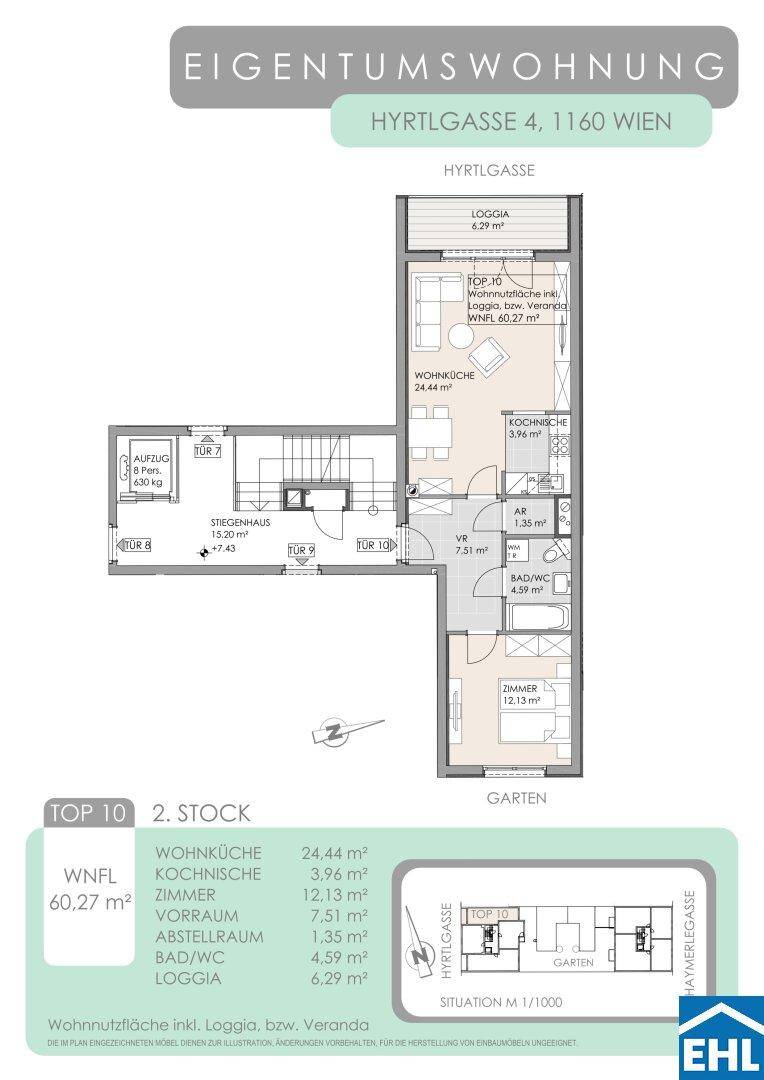
Wohnfläche 53,98 m²
1 Loggia 6,29 m² nordwestseitig
2 Zimmer
1 Badezimmer, 1 Toilette, Abstellraum

Ausstattung

Einbauküche, Offene Küche, Badewanne
Personenaufzug

Heizung

ZentralheizungGas
Heizwärmebedarf (HWB)
50.5 kWh/(m²a)
B
Gesamtenergieeffizienzfaktor (fGEE)
0.88
B

Beschreibung

Eigentumswohnungen in 1160 Wien – Haymerlegasse 5 & Hyrtlgasse 4

In einer Wohnanlage aus den Jahren 2008/2009, in einer ruhigen Seitengasse der Gablenzgasse, erwarten Sie attraktive Neubauwohnungen, die zum sofortigen Bezug verfügbar sind.

Die angebotenen Einheiten verteilen sich auf zwei Stiegen, die durch einen gemeinsamen Innenhof miteinander verbunden sind.

Dank der idealen Lage erreichen Sie sowohl den benachbarten 7. Bezirk als auch die Wiener Innenstadt in kurzer Zeit. Gleichzeitig bieten die nahegelegenen Grünoasen, wie der Wilhelminenberg und die Steinhofgründe, ideale Möglichkeiten zur Erholung im Grünen.

Die Station „Burggasse/Stadthalle“ der U-Bahn-Linie U3 befindet sich nur einen 10-minütigen Spaziergang entfernt und ermöglicht eine direkte Verbindung in viele Teile Wiens.

Die Ausstattung:

  • Voll ausgestattete Küchen
  • Ein Kellerabteil zu jeder Wohnung
  • Tiefgarage mit Hebebühnenstellplätzen 
  • Personenlift im Haus
  • Ein Kinderwagen- und Fahrradabstellraum im Keller jeder Stiege
  • Post-Empfangsboxen im Eingangsbereich

Öffentliche Verkehrsanbindung:

  • U-Bahn: U3 (Ottakring) und U6 (Burggasse-Stadthalle)
  • Straßenbahnlinien: 9, 46
  • Buslinien: 10A, 48A Dank dieser Verkehrsverbindungen gelangen Sie schnell und bequem in alle Teile der Stadt.

Einkaufsmöglichkeiten & Infrastruktur

In der direkten Umgebung befinden sich zahlreiche Einkaufsmöglichkeiten für den täglichen Bedarf:

  • Lugner City: Vielfältige Shopping- und Freizeitmöglichkeiten
  • Supermärkte: Billa, Hofer, Spar – fußläufig erreichbar
  • Brunnenmarkt & Yppenplatz: Wiens längster Straßenmarkt mit internationalem Flair und kulinarischer Vielfalt. Zudem finden Sie in der Umgebung Schulen, Kindergärten, Apotheken und Ärzte, die eine optimale Versorgung sicherstellen.

Kaufpreis je Stellplatz: EUR 7.000,-

Der Verkauf erfolgt mit einer Vermittlungsprovision in Höhe von 3% des Kaufpreises.

Die monatlichen Betriebskosten entnehmen Sie gerne unserer Preisliste.

Eigentumswohnungen in 1160 Wien – Haymerlegasse 5 & Hyrtlgasse 4

In einer Wohnanlage aus den Jahren 2008/2009, in einer ruhigen Seitengasse der Gablenzgasse, erwarten Sie attraktive Neubauwohnungen, die zum sofortigen Bezug verfügbar sind.

Die angebotenen Einheiten verteilen sich auf zwei Stiegen, die durch einen gemeinsamen Innenhof miteinander verbunden sind.

Dank der idealen Lage erreichen Sie sowohl den benachbarten 7. Bezirk als auch die Wiener Innenstadt in kurzer Zeit. Gleichzeitig bieten die nahegelegenen Grünoasen, wie der Wilhelminenberg und die Steinhofgründe, ideale Möglichkeiten zur Erholung im Grünen.

Die Station „Burggasse/Stadthalle“ der U-Bahn-Linie U3 befindet sich nur einen 10-minütigen Spaziergang entfernt und ermöglicht eine direkte Verbindung in viele Teile Wiens.

Bitte beachten Sie, dass es sich bei den Fotos um Musterfotos einer grundrissgleichen Wohnung im Haus handelt.

Die Ausstattung:

  • Voll ausgestattete Küchen
  • Ein Kellerabteil zu jeder Wohnung
  • Tiefgarage mit Hebebühnenstellplätzen 
  • Personenlift im Haus
  • Ein Kinderwagen- und Fahrradabstellraum im Keller jeder Stiege
  • Post-Empfangsboxen im Eingangsbereich

Öffentliche Verkehrsanbindung:

  • U-Bahn: U3 (Ottakring) und U6 (Burggasse-Stadthalle)
  • Straßenbahnlinien: 9, 46
  • Buslinien: 10A, 48A Dank dieser Verkehrsverbindungen gelangen Sie schnell und bequem in alle Teile der Stadt.

Einkaufsmöglichkeiten & Infrastruktur

In der direkten Umgebung befinden sich zahlreiche Einkaufsmöglichkeiten für den täglichen Bedarf:

  • Lugner City: Vielfältige Shopping- und Freizeitmöglichkeiten
  • Supermärkte: Billa, Hofer, Spar – fußläufig erreichbar
  • Brunnenmarkt & Yppenplatz: Wiens längster Straßenmarkt mit internationalem Flair und kulinarischer Vielfalt. Zudem finden Sie in der Umgebung Schulen, Kindergärten, Apotheken und Ärzte, die eine optimale Versorgung sicherstellen.

Kaufpreis je Stellplatz: EUR 7.000,-

Der Verkauf erfolgt mit einer Vermittlungsprovision in Höhe von 3% des Kaufpreises.

Die monatlichen Betriebskosten entnehmen Sie gerne unserer Preisliste.

Wir weisen darauf hin, dass zwischen dem Vermittler und dem zu vermittelnden Dritten ein familiäres oder wirtschaftliches Naheverhältnis besteht.

Der Vermittler ist als Doppelmakler tätig.


Infrastruktur / Entfernungen

Gesundheit
Arzt <250m
Apotheke <250m
Klinik <1.000m
Krankenhaus <1.750m

Kinder & Schulen
Schule <500m
Kindergarten <250m
Universität <750m
Höhere Schule <750m

Nahversorgung
Supermarkt <250m
Bäckerei <500m
Einkaufszentrum <750m

Sonstige
Geldautomat <500m
Bank <750m
Post <750m
Polizei <750m

Verkehr
Bus <250m
U-Bahn <1.000m
Straßenbahn <250m
Bahnhof <1.000m
Autobahnanschluss <4.750m

Angaben Entfernung Luftlinie / Quelle: OpenStreetMap

Dokumente

Kann ich mir diese Immobilie leisten?

  • % Nebenkosten
    0 €/ Monat
  • % Zinsen
    0 €/ Monat
  • % Kaufpreis
    0 €/ Monat
*
pro Monat
* errechnete monatliche Kreditrate bei einem angenommenen Effektivzins von 1.6% p.a. Die Berechnung stellt einen unverbindlichen Richtwert dar und ist von der Bonität, Kredithöhe, Laufzeit, Verwendungszweck und Besicherung abhängig.

Kontaktieren

GewerblichEHL Wohnen GmbHFrau Julie Wittrich
Nachricht
Anrede
Vorname
Nachname
E-Mail
Telefon
Ich bin Eigentümer:in einer Immobilie
GewerblichEHL Wohnen GmbHFrau Julie Wittrich
Video Live-Besichtigung
 Verifiziert von ImmoScout24
Immo Expert *** Award