{"obj_regio1":"009","obj_regio2":"009001","obj_regio3":"009001007","obj_ityp":"0","obj_zipCode":"1070","obj_title":"2 Zimmer Wohnung ca. 70qm ideal für EInzelperson oder Paar","obj_picture":"https://pictures.immobilienscout24.de/prod.www.immobilienscout24.at/pictureserver/loadPicture?q=70&id=012.001P900000axCmr-2c3b32d5e44f437d84f09bed920301aa","obj_exclusiveExpose":"false","obj_cwId":null,"obj_purchasePrice":null,"obj_purchasePriceRange":null,"obj_baseRentRange":"7"}
  • Exklusiv für Plus
  • Provisionsfrei
  • Parkplatz
  • Etagenwohnung
  • Balkon

2 Zimmer Wohnung ca. 70qm ideal für EInzelperson oder Paar

1.050
 
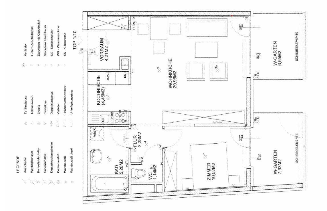
72 m²1 ZimmerBalkonLoggia 14 m²
Etage-
Befristung-
Kaution4200
PrivatClara Boehler
1070 Wien

Laufende Kosten

Monatliche Kosten1.050 €
Preis pro m²14,58 €
Kalkuliert von ImmoScout24

Einmalige Kosten

Kaution: 4200

Hallo neues Zuhause!

Kenne deine Chance mit Plus

Online seit120Gesehen80Kontaktiert40Gemerkt63
Plus locked

Merkmale

Verfügbar ab Oktober 2025
Etagenwohnung
Neubau, Gepflegt, Unterkellert, Parkett, Fliesen, Insgesamt 6 Etagen
Gesamtfläche 72 m²
2 Balkone
1 Loggia 14 m²
1 Zimmer
1 Badezimmer, 1 Toilette, Abstellraum
Garage
1 Parkmöglichkeit

Ausstattung

Einbauküche, Badewanne
Personenaufzug

Heizung

ZentralheizungGas

Beschreibung

Helle 2-Zimmer-Wohnung mit zwei Balkonen und Lift – perfekte Lage nahe U6 Burggasse

Diese wunderschöne, rund 70 m² große Wohnung in der Wimbergergasse 14–16 besticht durch ihre helle, freundliche Atmosphäre und eine durchdachte Raumaufteilung. Sie liegt im 4. Stock eines gepflegten Hauses mit Lift und ist ab Oktober 2025 verfügbar.

Die Wohnung überzeugt mit einem sonnigen Ambiente – dank der Nordausrichtung mit Nachmittagssonne ab ca. 16 Uhr – und zwei großzügigen Balkonen, die Platz für Sitzgelegenheiten oder eine kleine Lounge bieten.

Raumaufteilung:
Großzügiges Wohnzimmer mit Zugang zum Balkon
Separate, möblierte Küche mit Schiebetür
Ruhiges Schlafzimmer mit eigenem Balkon
Badezimmer mit Badewanne und zwei Waschbecken
Separates WC
Eingangsbereich mit Schiebetüre

Die Wohnung ist unmöbliert, verfügt über Parkettböden in den Wohnräumen sowie Fliesen in Küche, Bad und WC. Eine Zentralheizung sorgt für angenehmes Raumklima, die Raumhöhe beträgt ca. 2,5 m.

Ideal geeignet für Einzelpersonen oder Paare, die eine helle, ruhige Wohnung mit perfekter Infrastruktur suchen.

Lage & Umgebung:
Die Lage könnte kaum besser sein: Nur zwei Gebäude entfernt von der U6-Station Burggasse-Stadthalle und rund 5 Gehminuten vom Urban-Loritz-Platz mit mehreren Straßenbahnlinien entfernt.
In unmittelbarer Umgebung finden sich zahlreiche Supermärkte, Restaurants, Cafés, Drogerien sowie die Lugner City mit umfassendem Einkaufs- und Freizeitangebot.

Trotz der zentralen Lage ist die Wimbergergasse angenehm ruhig und bietet ein entspanntes, urbanes Wohngefühl.

Eckdaten
Größe: ca. 70 m²
2 Balkone (Wohnzimmer & Schlafzimmer)
Lift vorhanden
Autostellplatz vorhanden (exkludiert in Miete)
Abstellraum vorhanden
Zentralheizung
Kaution: 4 Monatsmieten
Verfügbarkeit: ab Oktober
Ideal für: Einzelperson oder Paar

Falls du interessiert bist, schreibe mir gerne ein bisschen etwas über dich und wer einziehen wird.

Schöne Grüße, Clara

Achtung vor Betrug!

  • Überweise kein Geld ins Ausland oder über einen Treuhandservice!
  • Übermittle niemals deinen Ausweis vor einer Besichtigung!
  • Bezahle nie vor einer Besichtigung, auch keine Provision!

Du wirst dennoch aufgefordert eines dieser Dinge zu tun oder hast Zweifel?

Kontaktieren

PrivatClara Boehler
Nachricht
PrivatClara Boehler