{"obj_regio1":"009","obj_regio2":"009001","obj_regio3":"009001017","obj_ityp":"3","obj_zipCode":"1170","obj_title":"UNIQUE RESIDENCE - Luxusvilla mit Pool und traumhaften Fernblick","obj_picture":"https://pictures.immobilienscout24.de/prod.www.immobilienscout24.at/pictureserver/loadPicture?q=70&id=012.0015I000002Lhk8-1731358261-28d3849f00e442369de0190bf774d844","obj_exclusiveExpose":"true","obj_cwId":"ADS0018129187","obj_purchasePrice":3500000,"obj_purchasePriceRange":"11","obj_baseRentRange":null}
  • Parkplatz
  • Einfamilienhaus
  • Balkon
  • Terrasse
  • Garten

UNIQUE RESIDENCE - Luxusvilla mit Pool und traumhaften Fernblick

3.500.000
 
435 m²6 ZimmerBalkonGartenTerrasse 56 m²
Preis / m²8.039,14 €
Grundstücksfläche-
Baujahr2021
Kokron Immobilien e.U.Frau Gisela Kokron
1170 Wien
Pötzleinsdorf/ Neustift Am Walde

Einmalige Kosten

Kaufpreis3.500.000 €
Kaufpreis pro m²8.039,14 €
Kalkuliert von ImmoScout24
Provision: 3% des Kaufpreises zzgl. 20% USt.

Hallo neues Zuhause!

Kenne deine Chance mit Plus

Online seit120Gesehen80Kontaktiert40Gemerkt63
Plus locked

Merkmale

Verfügbar ab Nach Vereinbarung
Einfamilienhaus
Baujahr 2021, Neubau, Erstbezug, Unterkellert, Parkett
Wohnfläche 435,37 m²
Nutzfläche 435,37 m², Gartenfläche 402,73 m²
2 Terrassen 56,15 m²
1 Balkon 12,88 m², Garten
6 Zimmer
Kellerfläche 106,97 m², 6 Badezimmer
1 Garage
1 Parkmöglichkeit
Photovoltaik Anlage

Ausstattung

Alarmanlage, Badewanne, Dusche, Fenster, Klimatisiert, Rolläden
Personenaufzug

Heizung

FußbodenheizungErdwärme
Heizwärmebedarf (HWB)
29.7 kWh/(m²a)
B
Gesamtenergieeffizienzfaktor (fGEE)
0.62
A+

Beschreibung

Zum Verkauf gelangt eine Luxusvilla mit einem Pool und traumhaften Fernblick in der Nähe von Neustift am Walde, Pötzleinsdorf und der American International School. Die viergeschossige Villa wird schlüsselfertig übergeben. Alle Ebenen sind mit einem Aufzug verbunden. Die Raumaufteilung und Ausstattung könnte noch mit Absprache individuell verändert werden.

Raumaufteilung

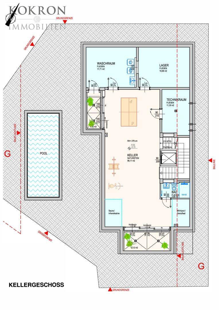
Kellergeschoss: Keller (Fitness/ Aufenthaltsraum), Sauna/ Infrarotkabine, Whirlpool/ Dampfbad, Bad (Dusche/ WC), Technikraum, Lager, Waschraum und Lichtschacht (Aussenbereich 9,12 m² + 4,45 m²)

Erdgeschoss: Wohnküche mit Zugang zum Garten (357,81 m²), Pool (3 x 8m mit Anschlüssen), Vorraum, Bad (Dusche/ WC), Schlafzimmer mit en-suite Bad (Wanne/ Dusche/ WC), Schrankraum und Arbeitszimmer

1. Dachgeschoss: Vorraum, Wohnküche mit Zugang zum Balkon (12,88 m²), Garten (44,92 m²), Zimmer, Abstellraum, Bad (Dusche/ WC) und Garage (37,39 m²)

2. Dachgeschoss: Schlafzimmer mit en-suite Bad (Dusche/ WC), Terrasse (9,19 m²) und Schlafzimmer mit en-suite Bad (Dusche/ WC)

Dachterrasse (33,39 m²)

Ausstattung

Erdwärmepumpe mit Tiefensonden, Fußbodenheizung, Deckenkühlung, Anschlüsse für Klimaanlage Innen- und Außengeräte im 2. DG, Vollwärmeschutzfassade mit 16 cm Baumit OPEN AIR, Sageder Holz/ Alu- Fenster/ Türen (3-fach Verglasung), elektrische Außenrollladen mit Unterputz-Rollkasten, Velux Dachflächenfenster, Sanitärausstattung Villeroy & Boch, Grohe, Innen liegende Zwischenwände aus 10 und 12 cm Ziegel mit beidseitigem Verputz sorgen für angenehmes Raumklima (keine Gipskartonständerwand), Alarmanlage, Bus-System, Weitzer Parkett und Aufzug.

Lage und Infrastruktur

Die Villa befindet sich in einer ruhigen Lage umgeben von Einfamilienhäusern. In unmittelbarer Nähe befindet sich Neustift am Walde mit Schulen, Ärzte, Geschäfte des täglichen Bedarfs, zahlreiche Heurigen und das Naherholungsgebiet Wienerwald.

Besichtigungen:

Hat diese Immobilie Ihr Interesse geweckt? Ich freue mich auf Ihre Anfrage! Für weitere Fragen stehe ich Ihnen gerne jederzeit zur Verfügung! Lediglich Anfragen mit vollständigem Namen, einer Telefonnummer sowie einer E-Mail-Adresse können unsererseits bearbeitet werden. Die von uns bereitgestellten Informationen beruhen auf Angaben des Abgebers. Für die Richtigkeit und Vollständigkeit der Angaben kann keine Gewähr bzw. Haftung übernommen werden. Änderungen vorbehalten!


Infrastruktur / Entfernungen

Gesundheit
Arzt <2.500m
Apotheke <2.500m
Klinik <4.000m
Krankenhaus <3.500m

Kinder & Schulen
Schule <1.000m
Kindergarten <2.000m
Universität <4.000m
Höhere Schule <4.500m

Nahversorgung
Supermarkt <2.500m
Bäckerei <3.000m
Einkaufszentrum <4.500m

Sonstige
Geldautomat <3.500m
Bank <3.500m
Post <2.500m
Polizei <4.000m

Verkehr
Bus <500m
Straßenbahn <2.500m
U-Bahn <4.500m
Bahnhof <4.500m
Autobahnanschluss <6.500m

Angaben Entfernung Luftlinie / Quelle: OpenStreetMap


Konsumenteninformation:

Seit 13. Juni 2014 können wir Ihnen die genaue Adresse, Unterlagen und Informationen aufgrund neuer EU-Verbraucherrechte erst dann zusenden, wenn Sie auf das von uns auf Ihre Anfrage hin versandte Mail vorab durch Setzen der geforderten Haken bestätigen, dass Sie unser sofortiges Tätigwerden wünschen und über Ihre Rücktrittsrechte aufgeklärt wurden, und es wird auf die Verpflichtung der Zahlung unserer Provision NUR BEI ABSCHLUSS DES IMMOBILIENGESCHÄFTS (= Kaufangebot vom Verkäufer angenommen) hingewiesen  Wir bedauern das für manche unverständliche und etwas komplizierte Procedere, dürfen aber nochmals darauf hinweisen, dass selbstverständlich unsere Leistung bis zu einem eventuellen tatsächlichen Kauf für Sie unverbindlich und kostenlos ist. Für Fragen dazu kontaktieren Sie uns  gerne.

Bei Abschluss eines Kaufvertrages fallen zusätzliche Kosten an. Details entnehmen Sie bitte der Nebenkostenübersicht. Im Falle eines Abschlusses mit Ihnen oder einem von Ihnen namhaft gemachten Dritten beträgt unser Honorar (lt. Honorarverordnung für Immobilienmakler, BGBI. 262 und 297/1996) 3 % des Kaufpreises zzgl. der gesetzlichen Umsatzsteuer, insgesamt daher 3,6%.

NEU Gebührenbefreiung beim Immobilienkauf:

Seit 1. April 2024 können Käufer: innen von Immobilien bis zu einer Bemessungsgrundlage von 500.000 Euro (pro Person) von Grundbuchseintragungsgebühren für das Eigentumsrecht und für das Pfandrecht (1,1% des Kaufpreises bzw. 1,2% des Pfandrechtswerts) befreit werden. Übersteigt die Bemessungsgrundlage 500.000 Euro, unterliegt nur der übersteigende Teil der Eintragungsgebühr. Ab einer Bemessungsgrundlage von 2 Millionen Euro entfällt jedoch die Gebührenbefreiung zur Gänze. Anträge für die Eintragung im Grundbuch müssen zwischen dem 1. Juli 2024 und dem 30. Juni 2026 gestellt werden. Die Befreiung erfordert sowohl die Anmeldung des Hauptwohnsitzes in der erworbenen Immobilie als auch die Aufgabe der Wohnrechte an der bisherigen Wohnung. Bei kreditfinanzierten Käufen muss mehr als 90 % des Kredits für den Erwerb oder die Sanierung der Immobilie verwendet werden. Das erworbene Eigenheim muss für fünf Jahre bezogen werden; wird es vorher verkauft oder als Hauptwohnsitz aufgegeben, wird die Gebühr nacherhoben.

 Datenschutzinformation für Interessenten und Kunden:

Die seit 25. Mai 2018 in Kraft getretene Datenschutzgrundverordnung dient zur Wahrung Ihrer Privatsphäre, welche für uns einen besonders hohen Stellenwert einnimmt. Der Schutz von personenbezogenen Daten ist uns wichtig und auch gesetzlich gefordert. Die Verarbeitung Ihrer personenbezogenen Daten erfolgt nach den datenschutzrechtlichen Bestimmungen - siehe auch unsere Webseite www.kokron-immobilien.at.

Kann ich mir diese Immobilie leisten?

  • % Nebenkosten
    0 €/ Monat
  • % Zinsen
    0 €/ Monat
  • % Kaufpreis
    0 €/ Monat
*
pro Monat
* errechnete monatliche Kreditrate bei einem angenommenen Effektivzins von 1.6% p.a. Die Berechnung stellt einen unverbindlichen Richtwert dar und ist von der Bonität, Kredithöhe, Laufzeit, Verwendungszweck und Besicherung abhängig.

Kontaktieren

GewerblichKokron Immobilien e.U.Frau Gisela Kokron
Nachricht
Anrede
Vorname
Nachname
E-Mail
Telefon
Ich bin Eigentümer:in einer Immobilie
GewerblichKokron Immobilien e.U.Frau Gisela Kokron
 Verifiziert von ImmoScout24
Silber Partner