{"obj_regio1":"008","obj_regio2":"008002","obj_regio3":"008002007","obj_ityp":"3","obj_zipCode":"6900","obj_title":"RESERVIERT: Traumhaftes Wohnen in Bregenz mit Seenähe: Eckreihenhaus mit zwei großzügigen Terrassen und Swimspa!","obj_picture":"https://pictures.immobilienscout24.de/prod.www.immobilienscout24.at/pictureserver/loadPicture?q=70&id=012.0015I00000kvJ7X-1760520488-72708695656e43069b123b9de06252ec","obj_exclusiveExpose":"false","obj_cwId":null,"obj_purchasePrice":null,"obj_purchasePriceRange":null,"obj_baseRentRange":null}
  • Parkplatz
  • Reihenhaus
  • Balkon
  • Terrasse

RESERVIERT: Traumhaftes Wohnen in Bregenz mit Seenähe: Eckreihenhaus mit zwei großzügigen Terrassen und Swimspa!

Preis auf Anfrage
 
130 m²BalkonTerrasse 70 m²
Preis / m²-
Grundstücksfläche-
Baujahr1988
SIMA Immobilien GmbHFrau Alisa Klemens
Wuhrbaumweg, 6900 Bregenz
• Ruhige Wohngegend in der Nähe von Grünflächen und Wanderwegen
• Nur wenige Minuten von der Innenstadt Bregenz entfernt
• 10 Gehminuten vom Bodensee entfernt
• Gute Anbindung an das öffentliche Verkehrsnetz und Autobahnen
• Umgeben von einer schönen Nachbarschaft und weitläufigen Gärten
- Perfekt für Familien und Naturliebhaber geeignet

Einmalige Kosten

Provision: 3% des Kaufpreises zzgl. 20% USt.

Hallo neues Zuhause!

Kenne deine Chance mit Plus

Online seit120Gesehen80Kontaktiert40Gemerkt63
Plus locked

Merkmale

Reihenhaus
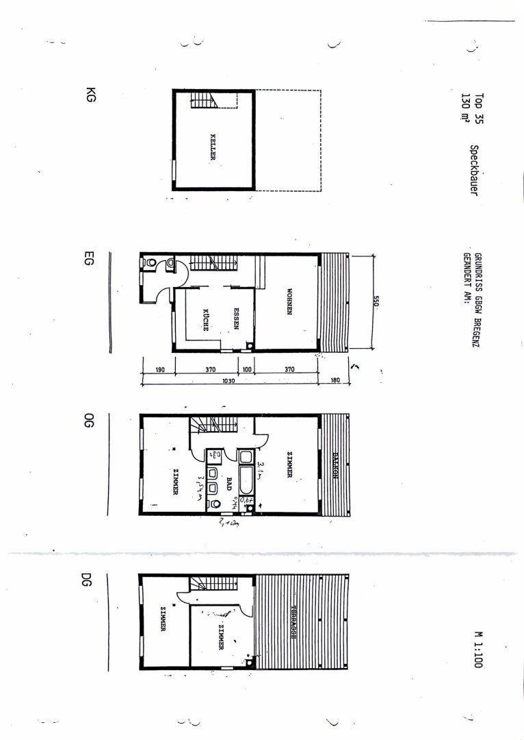
Baujahr 1988, Gepflegt, Massivbauweise, Unterkellert, letzte Modernisierung 2022, Parkett, Fliesen
Wohnfläche 130 m²
2 Terrassen 70 m²
1 Balkon 8 m²
1 Badezimmer
2 Toiletten
Carport
1 Parkplatz, 1 Parkmöglichkeit

Ausstattung

Einbauküche, Badewanne, Dusche, Fenster

Heizung

Gas
Heizwärmebedarf (HWB)
74 kWh/(m²a)
C
Gesamtenergieeffizienzfaktor (fGEE)
1.47
C

Beschreibung

Willkommen in Ihrem neuen Zuhause in Bregenz! Dieses wunderschöne Eckreihenhaus bietet Ihnen alles, was Sie sich von einem modernen und komfortablen Wohnhaus wünschen können. Mit einer Wohnfläche von ca. 130 m² bietet sie genügend Platz für die ganze Familie und ist in einem gepflegten Zustand, sodass Sie sich sofort wohlfühlen werden.

Das Reihenhaus verfügt über geräumige Zimmer, die Ihnen und Ihrer Familie ausreichend Privatsphäre bieten. Zusätzlich verfügt das Haus über ein ausgebautes Dachgeschoss mit nochmals zwei Zimmern. Die großen Fenster sorgen für viel Tageslicht und schaffen eine helle und freundliche Atmosphäre. Der Wohnbereich ist mit hochwertigen Parkettböden ausgestattet, die für ein modernes und stilvolles Ambiente sorgen. Die Einbauküche ist perfekt für Hobbyköche und bietet ausreichend Stauraum für alle Ihre Küchenutensilien.

Ein weiteres Highlight dieser Immobilie sind die großzügigen Terrassen mit 40 m² und 30 m² die zum Entspannen und Verweilen einladen. Eine Terrasse befindet sich im Erdgeschoss und grenzt an das Wohnzimmer. Die zweite Terrasse befindet sich im Dachgeschoss. Ein weiteres Highlight ist der Pool welcher im Sommer wie im Winter genutzt werden kann. Er hat eine Gegenstromanlage, sodass der Pool sogar für sportliche Aktivitäten genutzt werden kann. Sollte die Fläche lieber für ein Blumenbeet genutzt werden, wird der Pool von den Eigentümern entfernt.

Das Badezimmer verfügt über eine Eckbadewanne, eine offene Dusche und ein WC. Das Gäste-WC sorgt für zusätzlichen Komfort. Der großzügige Keller sorgt für zusätzlichen Stauraum und kann als Hobbyraum und Waschküche genutzt werden.

Für Ihre Fahrzeuge kann ein Carportplatz für zusätzlich € 20.000,00 erworben werden, sodass Sie sich keine Gedanken um Parkplatzsuche machen müssen. Das Dach der Immobilie wurde im Jahr 2022 erneuert.

Die Lage dieser Immobilie ist ideal für Familien. Die Verkehrsanbindung ist ausgezeichnet und ermöglicht es Ihnen, schnell und unkompliziert in die umliegenden Städte und Gemeinden zu gelangen. Der Bus und der Bahnhof sind in wenigen Gehminuten erreichbar. In der Nähe befinden sich auch wichtige Einrichtungen wie Ärzte, Apotheken, Schulen, Kindergärten, Supermärkte und eine Bäckerei, die Ihren Alltag erleichtern werden.

Dieses Haus bietet Ihnen nicht nur ein komfortables und modernes Wohnen, sondern auch eine hohe Lebensqualität in einer der schönsten Regionen Österreichs. Bregenz ist bekannt für seine atemberaubende Landschaft, die Nähe zum Bodensee und die zahlreichen Freizeitaktivitäten, die hier geboten werden. Hier können Sie sowohl die ruhige Natur als auch das kulturelle Leben in vollen Zügen genießen.

Lassen Sie sich von dieser Immobilie verzaubern und machen Sie Ihren Traum von einem eigenen Haus in Vorarlberg wahr. Wir freuen uns darauf, Sie bei Ihrem neuen Zuhause begrüßen zu dürfen!

Hinweise: Dieses Exposé dient zur Vorabinformation. Alle Angaben nach bestem Wissen und Gewissen, jedoch ohne Gewähr. Tippfehler, Irrtum und Zwischenverkauf vorbehalten. Die Grundrisse dienen lediglich zur Darstellung der Raumaufteilung.

Der Vermittler ist als Doppelmakler tätig.


Infrastruktur / Entfernungen

Gesundheit
Arzt <500m
Apotheke <500m
Krankenhaus <1.750m
Klinik <1.500m

Kinder & Schulen
Schule <500m
Kindergarten <750m
Höhere Schule <5.000m
Universität <2.250m

Nahversorgung
Supermarkt <500m
Bäckerei <250m
Einkaufszentrum <1.750m

Sonstige
Bank <500m
Geldautomat <500m
Post <250m
Polizei <1.250m

Verkehr
Bus <250m
Autobahnanschluss <2.000m
Bahnhof <750m

Angaben Entfernung Luftlinie / Quelle: OpenStreetMap

Kann ich mir diese Immobilie leisten?

Deine Eigenmittel sind höher als der Kaufpreis.
  • % Nebenkosten
    0 €/ Monat
  • % Zinsen
    0 €/ Monat
  • % Kaufpreis
    0 €/ Monat
*
pro Monat
* errechnete monatliche Kreditrate bei einem angenommenen Effektivzins von 1.6% p.a. Die Berechnung stellt einen unverbindlichen Richtwert dar und ist von der Bonität, Kredithöhe, Laufzeit, Verwendungszweck und Besicherung abhängig.

Kontaktieren

GewerblichSIMA Immobilien GmbHFrau Alisa Klemens
Nachricht
Anrede
Vorname
Nachname
E-Mail
Telefon
Ich bin Eigentümer:in einer Immobilie
GewerblichSIMA Immobilien GmbHFrau Alisa Klemens
 Verifiziert von ImmoScout24
Bronze Partner