{"obj_regio1":"004","obj_regio2":"004001","obj_regio3":"004001004","obj_ityp":"0","obj_zipCode":"4030","obj_title":"Kompakte und preiswerte 1-Raum-Wohnung mit Loggia in ruhiger Lage! Ihre persönliche Wohlfühloase!","obj_picture":"https://pictures.immobilienscout24.de/prod.www.immobilienscout24.at/pictureserver/loadPicture?q=70&id=012.0012000001E83jg-1760518871-6dcaafd4b9054e909ec1b289eafc7b88","obj_exclusiveExpose":"false","obj_cwId":null,"obj_purchasePrice":null,"obj_purchasePriceRange":null,"obj_baseRentRange":"2"}
  • Provisionsfrei
  • Parkplatz

Kompakte und preiswerte 1-Raum-Wohnung mit Loggia in ruhiger Lage! Ihre persönliche Wohlfühloase!

383
 
45 m²Loggia
Etage2
Befristung-
Kaution1.731,36 €
WAG Wohnungsanlagen GmbHFrau Team Vermietung 3
Weißdornweg 24, 4030 Linz

Laufende Kosten

Monatliche Kosten383,03 €
Preis pro m²4,86 €
Gesamtbelastung Netto348,2 €
USt. Gesamtbelastung34,83 €
Miete220,45 €
USt. Miete22,05 €
Betriebskosten127,75 €
USt. Betriebskosten12,78 €

Einmalige Kosten

Kaution: 1.731,36 €

Hallo neues Zuhause!

Kenne deine Chance mit Plus

Online seit120Gesehen80Kontaktiert40Gemerkt63
Plus locked

Merkmale

Verfügbar ab 01. November 2025
Wohnung
Gepflegt, Massivbauweise, Unterkellert, Grundstück voll erschlossen, Fliesen, 2. Etage
Wohnfläche 45,37 m²
Loggia
1 Badezimmer
1 Toilette, Abstellraum
Parkplatz
1 Parkplatz, 1 Parkmöglichkeit

Ausstattung

Badewanne
Personenaufzug

Heizung

ZentralheizungFernwärme
Heizwärmebedarf (HWB)
86.2 kWh/(m²a)
E
Gesamtenergieeffizienzfaktor (fGEE)
2.63
E

Beschreibung

4030 Linz / Neue Heimat / Wegscheid / Weißdornweg 24 :

Kompakte und gemütliche 1-Raum-Wohnung mit Loggia in ruhiger Lage! Ihre persönliche Wohlfühloase im schönen Kleinmünchen!
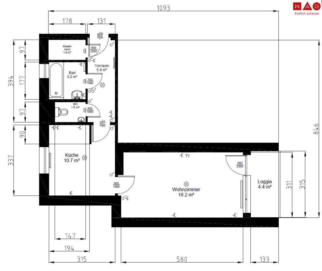
Bestehend aus Wohn und Schlafzimmer, Küche, Bad, WC, Abstellraum, Vorraum und Kellerabteil.

Verkehrs- und Infrastruktur:
Der Weißdornweg verfügt über eine ausgezeichnete Anbindung und Infrastruktur.
Den Bahnhof 'Linz/Donau Wegscheid" erreicht man zu Fuß in nur 3 Minuten.
Durch die Salzburger Straße gelangt man mit dem Auto, in wenigen Fahrminuten, in das Linzer Stadtzentrum.

Nahversorgung (Maximarkt, Infra Center, Trafik, Apotheke, Fitnesscenter etc.) und Schulen befinden sich in unmittelbarer Umgebung.
Ausreichend Parkmöglichkeiten und großzügige Grünflächen in den Innenhöfen kennzeichnen die Wohnanlage.

Mietkonditionen:
Miete inkl. Betriebskosten, Aufzug, Heizung und MwSt.: € 410,40
+ Miete Parkplatz inkl. MwSt.: € 22,44
Kaution/ Baukostenzuschuss: € 1.731,36

Ausstattung:
• Kellerabteil
• Parkplatz

Sie sind an weiteren Wohnungs- bzw. Gewerbeangeboten interessiert? Ein vielfältiges Angebot finden Sie auf unserer Website.

Zur WAG-Immobiliensuche: SUCHE

Zur WAG-Wohnungsanmeldung: Wohnungsanmeldung

Gerne beraten wir Sie persönlich über unser vielfältiges Angebot, rufen Sie uns einfach an! Und das natürlich ohne Vermittlungsgebühren und provisionsfrei!

Angaben sind ohne Gewähr auf Richtigkeit und Vollständigkeit. Druckfehler vorbehalten.


Infrastruktur / Entfernungen

Gesundheit
Arzt <525m
Apotheke <525m
Klinik <2.250m
Krankenhaus <3.700m

Kinder & Schulen
Kindergarten <600m
Schule <450m
Universität <2.375m
Höhere Schule <6.025m

Nahversorgung
Supermarkt <450m
Bäckerei <650m
Einkaufszentrum <475m

Sonstige
Bank <575m
Geldautomat <575m
Post <650m
Polizei <625m

Verkehr
Bus <325m
Straßenbahn <2.025m
Bahnhof <225m
Autobahnanschluss <1.500m
Flughafen <6.650m

Angaben Entfernung Luftlinie / Quelle: OpenStreetMap

Dokumente

Kontaktieren

GewerblichWAG Wohnungsanlagen GmbHFrau Team Vermietung 3
Nachricht
Anrede
Vorname
Nachname
E-Mail
Telefon
GewerblichWAG Wohnungsanlagen GmbHFrau Team Vermietung 3
 Verifiziert von ImmoScout24
Silber Partner