{"obj_regio1":"001","obj_regio2":"001008","obj_regio3":"001008017","obj_ityp":"3","obj_zipCode":"7441","obj_title":"Naturidylle mit Herz – Ein-/Mehrfamilienhaus mit landwirtschaftlicher Seele in Deutsch Gerisdorf","obj_picture":"https://pictures.immobilienscout24.de/prod.www.immobilienscout24.at/pictureserver/loadPicture?q=70&id=012.0012000001E83VK-1762430064-b8cb2e0218d94507bcf33b87aa0e3799","obj_exclusiveExpose":"true","obj_cwId":"ADS0017893121","obj_purchasePrice":470000,"obj_purchasePriceRange":"8","obj_baseRentRange":null}

    Naturidylle mit Herz – Ein-/Mehrfamilienhaus mit landwirtschaftlicher Seele in Deutsch Gerisdorf

    470.000
     
    402 m²8 Zimmer
    Preis / m²1.170,11 €
    Grundstücksfläche3.365 m²
    Baujahr1973
    Teresa Westhoff
    7441 Deutsch Gerisdorf
    Lage: Deutsch Gerisdorf, Burgenland

    Deutsch Gerisdorf liegt eingebettet in die sanfte Hügellandschaft des Mittelburgenlands – Teil der Gemeinde Pilgersdorf im Bezirk Oberpullendorf.

    Infrastruktur & Anbindung:
    Ruhige, ländliche Lage mit Weitblick und viel Natur
    Basisversorgung in der näheren Umgebung (Pilgersdorf, Oberpullendorf)
    Schulen, Ärzte, Supermärkte in ca. 10–20 Min mit dem Auto erreichbar

    Ideal für Menschen, die bewusst zurück zur Natur möchten und dafür nicht auf städtische Infrastruktur angewiesen sind

    Entfernungen zu wichtigen Punkten:
    -> Gemeindezentrum Pilgersdorf: wenige Autominuten
    -> Bezirkshauptort (Oberpullendorf): innerhalb von ca. 20‑30 Minuten
    -> Anbindung nach Wien: über die Autobahn A3 und Burgenland Schnellstraße: 1h 27min

    Einmalige Kosten

    Kaufpreis470.000 €
    Kaufpreis pro m²1.170,11 €
    Kalkuliert von ImmoScout24
    Provision zzgl. 20% USt.: 3,00 %

    Hallo neues Zuhause!

    Kenne deine Chance mit Plus

    Online seit120Gesehen80Kontaktiert40Gemerkt63
    Plus locked

    Merkmale

    Verfügbar ab nach Vereinbarung
    Sonstige
    Baujahr 1973, Massivbauweise, Unterkellert, Insgesamt 4 Etagen
    Nutzfläche 401,67 m²
    Grundstücksfläche 3.365 m²
    8 Zimmer
    2 Badezimmer, 2 Toiletten, Gäste WC

    Ausstattung

    Einbauküche, Klimatisiert

    Heizung

    ZentralheizungPellet
    Heizwärmebedarf (HWB)
    103,34 kWh/(m²a)
    D
    Gesamtenergieeffizienzfaktor (fGEE)
    1,46
    B

    Beschreibung

    Dieses Zuhause ist mehr als ein Haus – es ist ein Ort der Ruhe, der Entfaltung und der Verbindung zur Natur. Der breite Baugrund ermöglicht vielfältige Gestaltungsoptionen.

    Einige Facts:
    + Immobilientyp: Ein- oder Mehrfamilienhaus
    + Baujahr: ca. 1973
    + Bauweise: Ziegel massiv

    Raum und Flächenaufteilung:
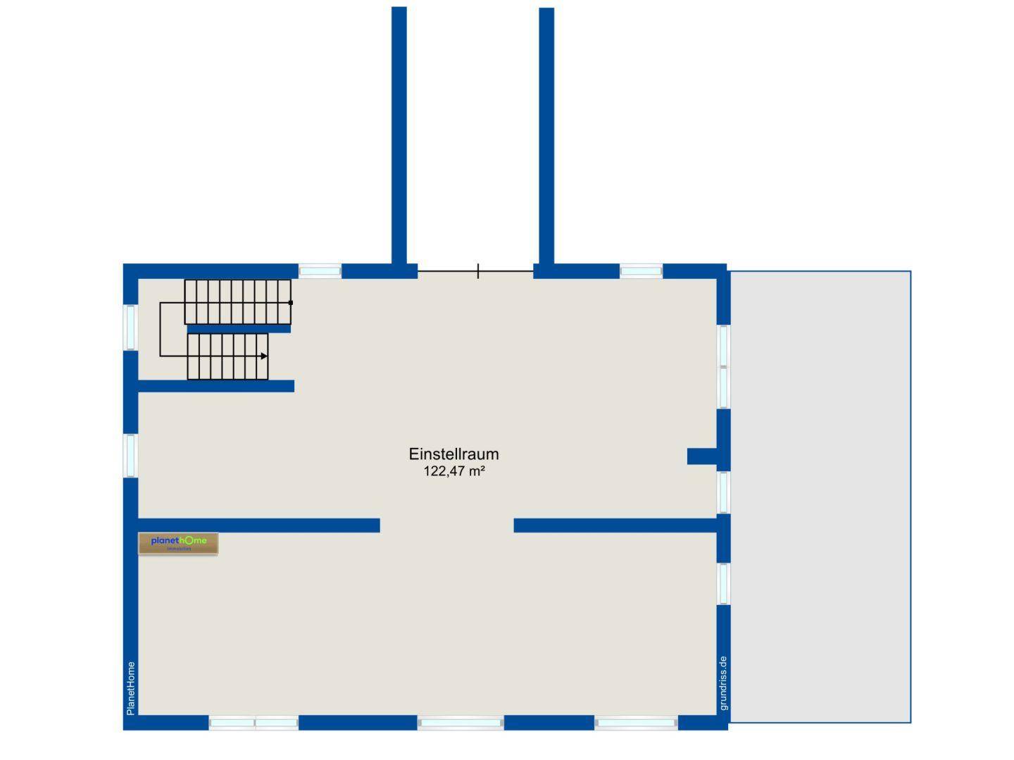
    + Kellergeschoss (KG): ca. 122,47 m²
    + Erdgeschoss (EG): ca. 120,39 m²
    + Obergeschoss (OG): ca. 158,81 m²
    + Nutzfläche gesamt: ca. 401,67 m²

    Nebengebäude: rund 400 m² – vielseitig nutzbar (Garage, Werkstatt, Lager, Stallungen etc.)
    Landwirtschaft und Tierhaltung möglich (bitte vorher an die Gemeinde Pilgersdorf wenden)

    Grundstücksgröße: ca. 3.365 m²
    + davon ca. 2.529 m² Bauland (breiter Baugrund)
    + ca. 836 m² Grünland

    Wohneinheiten: 2 möglich

    Weitere Informationen finden Sie im ausführlichen Exposé.
    Ich freue mich auf Ihre Kontaktaufnahme und darauf, Ihnen diese besondere Immobilie vorstellen zu dürfe.

    Der Energieausweis vom 31.01.2022 weist folgende Energiewerte auf: HWB 102 kWh/m²a, fGEE 1,45

    Haben Sie Fragen, wünschen Sie weitere Informationen oder einen persönlichen Besichtigungstermin?
    Gerne stehe ich Ihnen unter der Telefonnummer Anbieter kontaktieren oder per E-Mail Anbieter kontaktieren zur Verfügung

    Sie denken daran, Ihre Immobilie zu verkaufen?
    Gemeinsam definieren wir die beim Verkauf wichtigen Aspekte. Abgestimmt auf Ihre Bedürfnisse und die Zielgruppe Ihrer Immobilie entwerfe ich ein maßgeschneidertes Konzept für die Vermarktung. Über 20 Jahre Erfahrung, ein effektives Netzwerk und eine umfangreiche Datenbank mit registrierten Immobilien-Käufern stellen unseren Erfolg sicher.

    Kann ich mir diese Immobilie leisten?

    • % Nebenkosten
      0 €/ Monat
    • % Zinsen
      0 €/ Monat
    • % Kaufpreis
      0 €/ Monat
    *
    pro Monat
    * errechnete monatliche Kreditrate bei einem angenommenen Effektivzins von 1.6% p.a. Die Berechnung stellt einen unverbindlichen Richtwert dar und ist von der Bonität, Kredithöhe, Laufzeit, Verwendungszweck und Besicherung abhängig.

    Kontaktieren

    GewerblichTeresa Westhoff
    Nachricht
    Anrede
    Vorname
    Nachname
    E-Mail
    Telefon
    Ich bin Eigentümer:in einer Immobilie
    Bewerbungsmappe
    Erhöhe deine Chancen mit mehr Infos zu dir.
    GewerblichTeresa Westhoff
     Verifiziert von ImmoScout24
    Silber Partner