{"obj_regio1":"003","obj_regio2":"003021","obj_regio3":"003021035","obj_ityp":"3","obj_zipCode":"3425","obj_title":"Autark leben am linken Donauufer mit Badesee in 3425 Langenlebarn (Pachtgrundstück mit günstiger Jahrespacht)","obj_picture":"https://pictures.immobilienscout24.de/prod.www.immobilienscout24.at/pictureserver/loadPicture?q=70&id=012.0012000001E83gd-1760456072-77fdae08d8a04e16ae6c3d19108f38ba","obj_exclusiveExpose":"false","obj_cwId":null,"obj_purchasePrice":170000,"obj_purchasePriceRange":"4","obj_baseRentRange":null}
  • Garten
  • Möbliert

Autark leben am linken Donauufer mit Badesee in 3425 Langenlebarn (Pachtgrundstück mit günstiger Jahrespacht)

170.000
 
60 m²3 ZimmerGarten
Preis / m²2.833,33 €
Grundstücksfläche450 m²
Baujahrca. 2018
4M Immobilien&Consulting GmbH & Co KGFrau Sabrina Schmidt
FKK Freikörperkulturverein Langenlebarn, 3425 Langenlebarn-Oberaigen

Einmalige Kosten

Kaufpreis170.000 €
Kaufpreis pro m²2.833,33 €
Kalkuliert von ImmoScout24
Provision zzgl. 20% USt.: 3.00 % zuzüglich USt.

Hallo neues Zuhause!

Kenne deine Chance mit Plus

Online seit120Gesehen80Kontaktiert40Gemerkt63
Plus locked

Merkmale

Verfügbar ab sofort
Sonstige
Baujahr ca. 2018, Gepflegt, Holzbauweise, Lastenfrei
Wohnfläche 60 m²
Grundstücksfläche 450 m²
Garten
3 Zimmer
1 Toilette

Ausstattung

Vollmöbliert, Gartennutzung, Swimmingpool

Heizung

Zentralheizung

Beschreibung

Autark leben im Stelzenhaus beim Wasser – Ferienhaus bei Tulln auf Pachtgrund zu verkaufen!

3425 Langenlebarn, Nähe Badesee Linkes Donauufer – FKK-Bereich

Dieses charmante Stelzenhaus befindet sich im FKK-Areal der Tullner Au und bietet Naturliebhaberinnen und Naturliebhabern eine einzigartige Möglichkeit, ein naturverbundenes und nachhaltiges Leben zu führen. Der Strom wird umweltfreundlich über eine Photovoltaikanlage erzeugt, die Wasserversorgung erfolgt über einen hauseigenen Brunnen direkt neben dem Gebäude.

Das Haus steht auf einem rund 450 m² großen, nicht eingezäunten Pachtgrundstück und gilt als Superädifikat – das bedeutet, das Haus befindet sich im Eigentum, während der Grund gepachtet ist.

Der Wohnbereich ist erhöht angelegt, um bei Hochwasser bestmöglichen Schutz zu gewährleisten.

Ein Rückzugsort wie kein anderer: Dieses liebevoll gestaltete Stelzenhaus (BJ 2018) bietet echtes Freiheitsgefühl inmitten unberührter Natur. Perfekt für Naturliebhaber, Ruhesuchende und alle, die unabhängig und nachhaltig leben möchten.

Kaufpreis: € 180.000,-
Jahrespacht: ca. € 600,-
Wohnfläche: ca. 60 m² auf 2 Ebenen
Mit dem Auto fährt man direkt bis zum Haus, alternativ kann man auch an der Straße Parken (einen "Abstellplatz" in dem Sinne gibt es nicht)
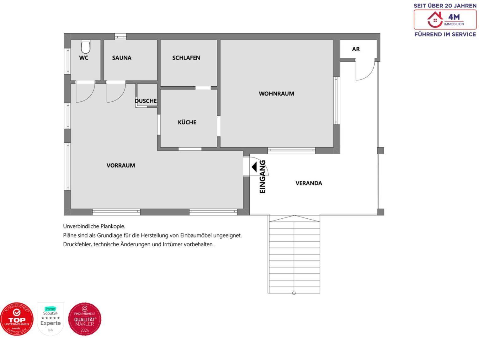
Ausstattung: Zwei gemütliche Schlafräume, kleine Sauna, Wohn- & Essbereich, kleine Küche, extra Dusche, großer Vorraum und vieles mehr! Voll ausgestattet &komplett eingerichtet – einfach einziehen und genießen
Bauweise: Stelzenhaus, Baujahr 2018, hochwertig gebaut und exzellent gedämmt
Besonderheit: Perfekt als Ferienimmobilie oder Wochenendhaus

Technik & Energie – Autarkie vom Feinsten:
• Hausstromkraftwerk mit Photovoltaik-Anlage inkl. Batteriespeicher – bis zu 4 Tage autarker Strom auch bei Schlechtwetter
• Eigener Trinkwasserbrunnen – unabhängig von der öffentlichen Versorgung
• Heizung: Gasbetriebener Kachelofen für wohlige Wärme
• Notstromoption: Strom kann bei Bedarf auch über Gas erzeugt werden
• Sauna: Betrieb wahlweise mit Holz oder Gas – Wellness ganzjährig möglich
• Lagerfeuerstelle im Garten – für gemütliche Abende unter freiem Himmel

Die Liegenschaft liegt idyllisch am linken Donauufer, nur wenige Schritte vom Badesee entfernt – inmitten eines gepflegten FKK-Bereichs. Ein Ort der Ruhe, Freiheit und natürlichen Lebensweise.

Weitere Fotos folgen! Bitte beachten, am Grundrissplan ist nur das EG zu sehen, es gibt noch einen weiteren Schlafbereich im "Dach".

Kontakt:
Anbieter kontaktieren

Kann ich mir diese Immobilie leisten?

  • % Nebenkosten
    0 €/ Monat
  • % Zinsen
    0 €/ Monat
  • % Kaufpreis
    0 €/ Monat
*
pro Monat
* errechnete monatliche Kreditrate bei einem angenommenen Effektivzins von 1.6% p.a. Die Berechnung stellt einen unverbindlichen Richtwert dar und ist von der Bonität, Kredithöhe, Laufzeit, Verwendungszweck und Besicherung abhängig.

Kontaktieren

Gewerblich4M Immobilien&Consulting GmbH & Co KGFrau Sabrina Schmidt
Nachricht
Anrede
Vorname
Nachname
E-Mail
Telefon
Ich bin Eigentümer:in einer Immobilie
Gewerblich4M Immobilien&Consulting GmbH & Co KGFrau Sabrina Schmidt
 Verifiziert von ImmoScout24
Bronze Partner