{"obj_regio1":"003","obj_regio2":"003017","obj_regio3":"003017019","obj_ityp":"2","obj_zipCode":"1230","obj_title":"Anlegerwohnung mit Loggia in Wien – Sofortige Mieteinnahmen","obj_picture":"https://pictures.immobilienscout24.de/prod.www.immobilienscout24.at/pictureserver/loadPicture?q=70&id=012.0012000001OuIuu-1760366001-53237f8bbf714c9c85968090881e492e","obj_exclusiveExpose":"false","obj_cwId":null,"obj_purchasePrice":432000,"obj_purchasePriceRange":"8","obj_baseRentRange":null}
  • Terrassenwohnung
  • Garten

Anlegerwohnung mit Loggia in Wien – Sofortige Mieteinnahmen

432.000
 
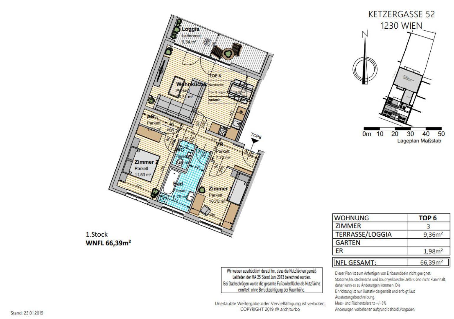
76 m²3 ZimmerGartenLoggia 9 m²
Preis / m²5.704,48 €
Etage-
Baujahr2017
MY-MAKLER GS Immobilien GmbHHerr Günter Stocker
Ketzergasse, 1230 Wien

Einmalige Kosten

Kaufpreis432.000 €
Kaufpreis pro m²5.704,48 €
Kalkuliert von ImmoScout24
Kaufpreis Netto360.000 €
USt. Kaufpreis72.000 €

Hallo neues Zuhause!

Kenne deine Chance mit Plus

Online seit120Gesehen80Kontaktiert40Gemerkt63
Plus locked

Merkmale

Terrassenwohnung
Baujahr 2017, Neubau, Massivbauweise, Kabelkanäle, Unterkellert, Flachdach, Parkett, Fliesen
Wohnfläche 75,73 m²
1 Loggia 9,34 m² nordostseitig
Garten
3 Zimmer
Kellerfläche 1,98 m², 1 Badezimmer, 1 Toilette
Fahrradabstellraum

Ausstattung

Offene Küche, Badewanne, Fenster, Gartennutzung
Personenaufzug

Heizung

FußbodenheizungFernwärme
Heizwärmebedarf (HWB)
41.5 kWh/(m²a)
B
Gesamtenergieeffizienzfaktor (fGEE)
0.78
A

Beschreibung

 

Verkaufspreis: € 360.000 zzgl. 20 % USt = € 432.000 Wohnfläche: 75,73 m² inkl. Loggia (9,34 m²)

Investieren Sie in eine solide vermietete Eigentumswohnung in der beliebten Ketzergasse im Süden Wiens. Die Wohnung bietet ab dem ersten Tag laufende Mieteinnahmen und eignet sich ideal für Anleger mit Fokus auf langfristige Rendite.

Ausstattung & Highlights
  • Großzügige Wohnfläche mit durchdachtem Grundriss

  • Loggia mit 9,34 m²

  • Fliesen- und Parkettböden in gepflegtem Zustand

  • Kellerabteil vorhanden

  • Ruhige Wohnlage mit guter Infrastruktur

  • Energieeffiziente Bauweise

Vermietung
  • Derzeit vermietet – sofortige Einnahmen ab Kauf

  • Mietvertrag befristet bis 30.09.2028

Lage

Die Ketzergasse überzeugt durch ihre Nähe zu Nahversorgern, öffentlichen Verkehrsmitteln und Grünflächen. Die Lage ist bei Mietern sehr gefragt und bietet langfristiges Wertsteigerungspotenzial.

Interesse geweckt? Kontaktieren Sie uns für weitere Informationen, Mietdetails oder einen Besichtigungstermin.

Wir weisen darauf hin, dass zwischen dem Vermittler und dem zu vermittelnden Dritten ein familiäres oder wirtschaftliches Naheverhältnis besteht.

Der Vermittler ist als Doppelmakler tätig.


Infrastruktur / Entfernungen

Gesundheit
Arzt <500m
Apotheke <250m
Klinik <2.250m
Krankenhaus <3.000m

Kinder & Schulen
Schule <250m
Kindergarten <500m
Universität <6.250m
Höhere Schule <5.750m

Nahversorgung
Supermarkt <500m
Bäckerei <250m
Einkaufszentrum <1.250m

Sonstige
Geldautomat <250m
Bank <250m
Post <1.500m
Polizei <1.500m

Verkehr
Bus <250m
U-Bahn <500m
Straßenbahn <3.500m
Bahnhof <500m
Autobahnanschluss <1.000m

Angaben Entfernung Luftlinie / Quelle: OpenStreetMap

Kann ich mir diese Immobilie leisten?

  • % Nebenkosten
    0 €/ Monat
  • % Zinsen
    0 €/ Monat
  • % Kaufpreis
    0 €/ Monat
*
pro Monat
* errechnete monatliche Kreditrate bei einem angenommenen Effektivzins von 1.6% p.a. Die Berechnung stellt einen unverbindlichen Richtwert dar und ist von der Bonität, Kredithöhe, Laufzeit, Verwendungszweck und Besicherung abhängig.

Kontaktieren

GewerblichMY-MAKLER GS Immobilien GmbHHerr Günter Stocker
Nachricht
Anrede
Vorname
Nachname
E-Mail
Telefon
Ich bin Eigentümer:in einer Immobilie
GewerblichMY-MAKLER GS Immobilien GmbHHerr Günter Stocker
 Verifiziert von ImmoScout24
Bronze Partner