{"obj_regio1":"004","obj_regio2":"004001","obj_regio3":"004001003","obj_ityp":"0","obj_zipCode":"4020","obj_title":"Stilvoll wohnen über den Dächern von Linz, 138 m² WNFL + 10 m² Dachterrasse, 4 Zimmer, Küche möbliert, Parkplatz optional!","obj_picture":"https://pictures.immobilienscout24.de/prod.www.immobilienscout24.at/pictureserver/loadPicture?q=70&id=012.0012000001E83Yv-1760352367-2276e7d3ce114f459c079098c17d62e9","obj_exclusiveExpose":"false","obj_cwId":null,"obj_purchasePrice":null,"obj_purchasePriceRange":null,"obj_baseRentRange":"8"}
  • Provisionsfrei
  • Parkplatz
  • Terrasse
  • Teilmöbliert

Stilvoll wohnen über den Dächern von Linz, 138 m² WNFL + 10 m² Dachterrasse, 4 Zimmer, Küche möbliert, Parkplatz optional!

1.761
 
137 m²4 ZimmerTerrasse 11 m²
Etage-
Befristung-
Kaution5.300,-- Euro
donau immobilien service gmbhGerlinde Lanzerstorfer
Gärtnerstraße 16, 4020 Linz

Laufende Kosten

Monatliche Kosten1.760,83 €
Preis pro m²12,82 €
Kalkuliert von ImmoScout24
Gesamtbelastung Netto1.600,75 €
USt. Gesamtbelastung160,08 €
Miete1.270,75 €
Betriebskosten330 €
USt. Betriebskosten33 €

Einmalige Kosten

Provision: provisionsfrei
ImmoScout24 Tipp: Seit dem 01.07.2023 gilt das Bestellerprinzip. Die Vermittlung von Wohnungen und Häusern zur Miete über Inserate ist seitdem für Suchende provisionsfrei.
Kaution: 5.300,-- Euro

Hallo neues Zuhause!

Kenne deine Chance mit Plus

Online seit120Gesehen80Kontaktiert40Gemerkt63
Plus locked

Merkmale

Verfügbar ab 1. Jänner 2026
Wohnung
Gepflegt, Dielen, Parkett
Wohnfläche 137,4 m²
Terrassenfläche 10,64 m²
Terrasse
4 Zimmer
2 Badezimmer
Garage

Ausstattung

Einbauküche, Teilmöbliert, Badewanne
Personenaufzug

Heizung

FernwärmeFernwärme
Heizwärmebedarf (HWB)
119 kWh/(m²a)
D

Beschreibung

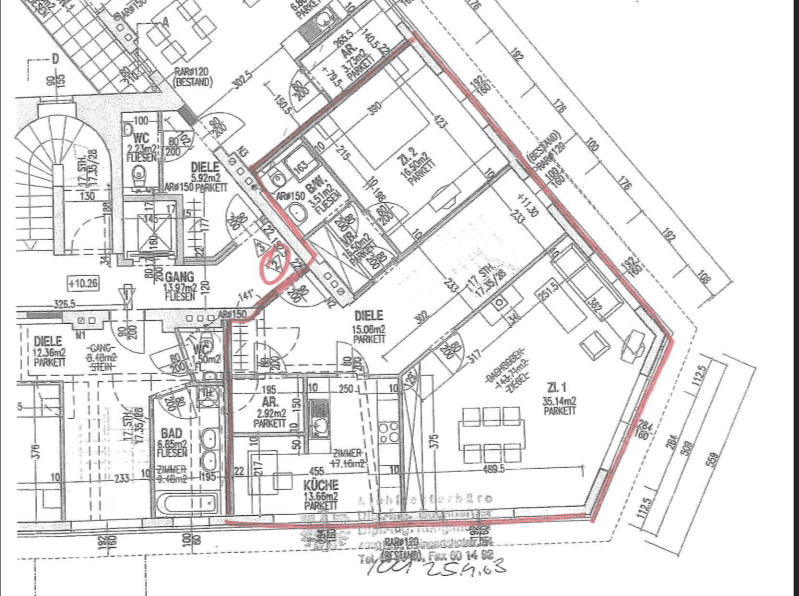
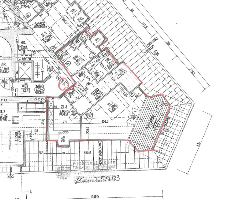
Diese stilvolle Innenstadtwohnung mit Dachterrasse auf 2 Ebenen befindet sich in der Gärtnerstraße 16, 4020 Linz im 3. OG und DG eines gepflegten Hauses. Im 3.OG erwarten Sie: eine einladende Diele, eine Küche mit Essbereich, ein großzügiges Wohn- Esszimmer mit weitläufigen Fensterflächen, ein Schlafzimmer, ein Bad sowie ein AR. Im DG befinden sich 2 weitere Schlafräume, ein Schrankraum und ein großzügiges Bad, sowie die Dachterrasse mit herrlichem Blick auf den Volksgarten. Die Ausstattung ist hochwertig und durchdacht: modern Einbauküche inkl. Geräte, Gaskamin im Wohn- Essbereich bequem per EIN/AUS-Schalter bedienbar, beide Bäder in edlem Marmor - im Hauptbad mit WM samt Trocknerfunktion, schöne Holzböden, Beschattung, Video-Gegensprechanlage sowie ein Wohnungseingang auf jeder Ebene für zusätzlichen Komfort. Ein Lift ist selbstverständlich vorhanden. Die Lage überzeugt durch perfekte Infrastruktur: Straßenbahn, Bus, Einkaufsmöglichkeiten, Schulen und der Bahnhof sind in unmittelbarer Nähe. Optional kann ein Garagenplatz im Nachbarhaus um € 100,--/Monat inkl. MWST angemietet werden.

Kontaktieren

Gewerblichdonau immobilien service gmbhGerlinde Lanzerstorfer
Nachricht
Anrede
Vorname
Nachname
E-Mail
Telefon
Gewerblichdonau immobilien service gmbhGerlinde Lanzerstorfer
 Verifiziert von ImmoScout24
Bronze Partner