{"obj_regio1":"004","obj_regio2":"004001","obj_regio3":"004001005","obj_ityp":"2","obj_zipCode":"4020","obj_title":"Moderne 2-Zimmer Dachgeschosswohnung mit Terrasse in Linz","obj_picture":"https://pictures.immobilienscout24.de/prod.www.immobilienscout24.at/pictureserver/loadPicture?q=70&id=012.0012000001E3rD3-535b4b7d911d4e749584f5b78dc4b69e","obj_exclusiveExpose":"false","obj_cwId":null,"obj_purchasePrice":197548,"obj_purchasePriceRange":"4","obj_baseRentRange":null}
  • Dachgeschosswohnung
  • Terrasse

Moderne 2-Zimmer Dachgeschosswohnung mit Terrasse in Linz

197.548
 
42 m²2 ZimmerTerrasse
Preis / m²4.703,52 €
Etage-
Baujahr2025
matrix Immobilien GmbH - Manuela HelletsgruberFrau Manuela Helletsgruber
Wiener Straße 27 a, 4020 Linz, 4020 Linz

Einmalige Kosten

Kaufpreis197.548 €
Kaufpreis pro m²4.703,52 €
Kalkuliert von ImmoScout24
Provision: 3 % zzgl. 20 % Ust.

Hallo neues Zuhause!

Kenne deine Chance mit Plus

Online seit120Gesehen80Kontaktiert40Gemerkt63
Plus locked

Merkmale

Verfügbar ab Frühjahr / Sommer 2027
Dachgeschosswohnung
Baujahr 2025, Neubau, Erstbezug, Unterkellert, Parkett
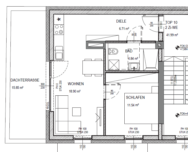
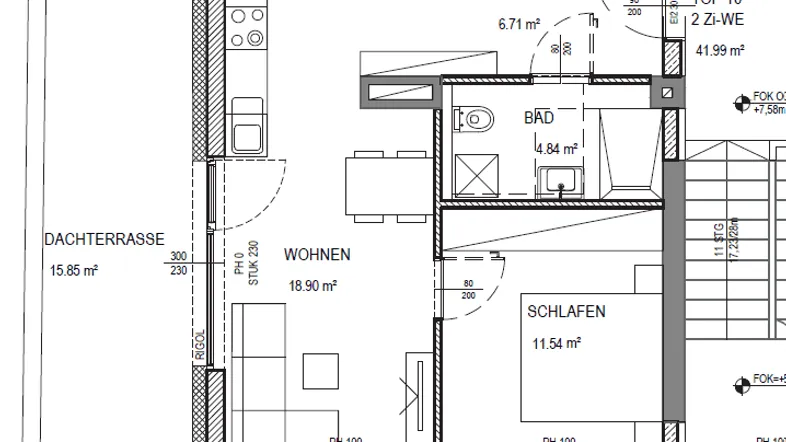
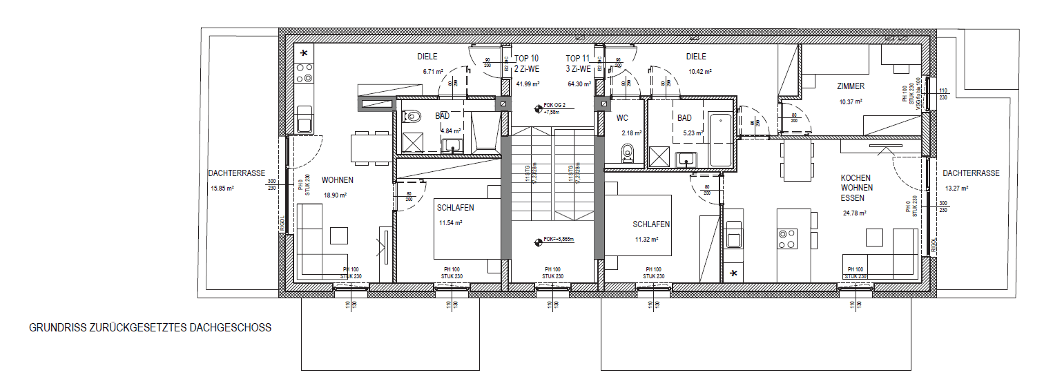
Gesamtfläche 42 m²
Nutzfläche 42 m²
1 Terrasse
Terrasse
2 Zimmer
1 Schlafzimmer, 1 Badezimmer

Heizung

Fernwärme

Beschreibung

Moderne 2-Zimmer-Dachgeschosswohnung mit sonniger Dachterrasse in Linz, Wiener Straße 27a.
Die 42 m² große Neubauwohnung befindet sich in einem ruhig gelegenen Innenhofgebäude und nicht direkt an der Wiener Straße.
Bezugsfertig im Frühjahr/Sommer 2027, bietet diese Erstbezugswohnung einen schönen Blick auf den begrünten Innenhof.

Die Wohnung verfügt über ein Schlafzimmer, ein Badezimmer und einen weiteren Wohnraum inkl. Küche.
Zur Wohnung gehört außerdem ein Kellerabteil.
Der Kaufpreis beträgt 197.548 €
mit einer Maklerprovision von 3 % zzgl. 20 % USt.
Die Wohnung verfügt über eine sonnige Dachterrasse mit Blick auf den begrünten Innenhof. Das Haus befindet sich NICHT direkt auf der Wiener Straße - SONDERN ist ein Innenhofgebäude ruhig gelegen.

Kann ich mir diese Immobilie leisten?

  • % Nebenkosten
    0 €/ Monat
  • % Zinsen
    0 €/ Monat
  • % Kaufpreis
    0 €/ Monat
*
pro Monat
* errechnete monatliche Kreditrate bei einem angenommenen Effektivzins von 1.6% p.a. Die Berechnung stellt einen unverbindlichen Richtwert dar und ist von der Bonität, Kredithöhe, Laufzeit, Verwendungszweck und Besicherung abhängig.

Kontaktieren

Gewerblichmatrix Immobilien GmbH - Manuela HelletsgruberFrau Manuela Helletsgruber
Nachricht
Anrede
Vorname
Nachname
E-Mail
Telefon
Ich bin Eigentümer:in einer Immobilie
Gewerblichmatrix Immobilien GmbH - Manuela HelletsgruberFrau Manuela Helletsgruber
 Verifiziert von ImmoScout24
Bronze Partner