{"obj_regio1":"004","obj_regio2":"004016","obj_regio3":"004016005","obj_ityp":"3","obj_zipCode":"4209","obj_title":"Besonderes Neubauprojekt in Engerwitzdorf - Reihenhaus","obj_picture":"https://pictures.immobilienscout24.de/prod.www.immobilienscout24.at/pictureserver/loadPicture?q=70&id=012.0015I00000aWIWu-eabce5950a11445e9f59b0dfe93b6c25","obj_exclusiveExpose":"false","obj_cwId":null,"obj_purchasePrice":425000,"obj_purchasePriceRange":"8","obj_baseRentRange":null}
  • Provisionsfrei
  • Reihenhaus
  • Terrasse
  • Garten

Besonderes Neubauprojekt in Engerwitzdorf - Reihenhaus

425.000
 
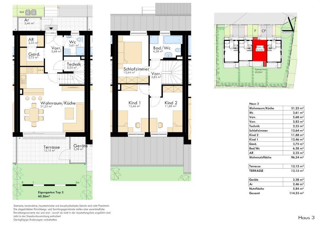
96 m²4 ZimmerGartenTerrasse 12 m²
Preis / m²4.427,08 €
Grundstücksfläche-
Baujahr-
Allerstorfer Immobilien GmbHHerr Michael Zellinger
4209 Engerwitzdorf

Einmalige Kosten

Kaufpreis425.000 €
Kaufpreis pro m²4.427,08 €
Kalkuliert von ImmoScout24

Hallo neues Zuhause!

Kenne deine Chance mit Plus

Online seit120Gesehen80Kontaktiert40Gemerkt63
Plus locked

Merkmale

Verfügbar ab nach Vereinbarung
Reihenhaus
Erstbezug
Gesamtfläche 96 m²
Gartenfläche 60 m²
1 Terrasse 12 m²
Garten
4 Zimmer

Ausstattung

Gartennutzung

Heizung

FußbodenheizungLuftwärmepumpe
Heizwärmebedarf (HWB)
39 kWh/(m²a)
B
Gesamtenergieeffizienzfaktor (fGEE)
0.58
A+

Beschreibung

„Im Obstgarten – Wo Leben Wurzeln schlägt“
Ein Zuhause für Paare, Familien und alle, die Natur lieben.

Haus 3

In der charmanten Gemeinde Engerwitzdorf entsteht ein besonderes Neubauprojekt, welches ausgezeichneten Wohnkomfort mit ländlicher Idylle vereint. Es stehen Ihnen vier Reihenhäuser als auch zwei Doppelhaushälften zur Auswahl! Durch die durchdachte Grundrissgestaltung sind alle der Einheiten sowohl für Familien mit zwei Kindern geeignet als auch für Paare, die die Vorzüge von viel Platz lieben und zu schätzen wissen!

Alle Einheiten sind mit Terrassen ausgestattet, bei den Reihenhäusern gibt es im Außenbereich zusätzlich noch einen Abstellraum und einen Geräteraum. Vor allem die zwei Doppelhaushälften als auch die zwei Eckreihenhäuser verfügen über einen großzügigen Garten aber auch bei den zwei mittleren Reihenhäusern kann man sich über eine Grünfläche von ca. 60 m² erfreuen.

Geachtet wurde hier vor allem auf eine durchdachte und praktikable Gestaltung der Grundrisse, der vorhandene Raum soll von den neuen Eigentümern bestmöglich genutzt werden können. Nichtsdestotrotz wurde auch auf eine helle und offene Gestaltung viel Wert gelegt, ebenso hat jede Einheit einen ausgedehnten Wohn- Essbereich.

Weiters zeichnet sich das Projekt durch moderne Architektur, eine nachhaltige Bauweise und exklusive Raumausstattung aus.

Sie gelangen jeweils vom Wohn-/Essbereich bequem auf die Terrasse bzw. in den eigenen Garten! Bei den zwei Doppelhaushälften ist die Terrasse bzw. der Garten zusätzlich von einem weiteren Zimmer begehbar. Die perfekte Voraussetzung, um die Sonnenstrahlen zu genießen, sich zu entspannen und den Feierabend gemütlich mit einem Buch oder einem Glas Rotwein ausklingen zu lassen.

Zugehörig zu den Reihenhäusern sind jeweils ein Parkplatz und ein Carportplatz, den Doppelhaushälften sind zwei Carportplätze zugeordnet.

Lage
Das Projekt befindet sich nur drei Autominuten und 20 Minuten Fußweg vom Zentrum von Engerwitzdorf entfernt. Modernes Wohnen auf höchstem Niveau in entschleunigter Umgebung!

Umgeben von Wiesen und Feldern kommen Naturliebhaber voll auf Ihre Kosten und können die damit verbundenen Vorzüge genießen.

Sowohl eine ruhige und gepflegte Wohngegend als auch der verkehrsberuhigte Bereich sprechen für sich!

Eine optimale Verkehrsanbindung ist durch die Nähe zur Autobahn A7 gegeben und die gute öffentliche Anbindung durch den Bus.

Ebenso der perfekte Ort für Familien, in der Gemeinde Engerwitzdorf sind mehrere Kindergärten und zwei Volksschulen zu finden. Apotheke, Ärzte, Geschäfte des täglichen Bedarfs, Bäckereien und Gasthäuser befinden sich in der Nähe. Neben dem Musikverein wird auch Kulturinteressierten im Kulturhaus Engerwitzdorf aus allen Bereichen von Kunst und Kultur viel geboten.

Sportbegeisterten steht ein Sportplatz, Sportvereine und diverse Rad- und Wanderwege in der „gesunden Gemeinde“ Engerwitzdorf zur Verfügung!

In knapp 7 Fahrminuten erreichen Sie das Zentrum von Gallneukirchen. Hier finden Sie allein im Einkaufszentrum ONE unzählige Einkaufsmöglichkeiten. Geschäfte des täglichen Bedarfs, Kindergärten, Schulen, eine Ärztezentrum, zahlreiche Gastronomiebetriebe, etc. sind vorhanden.

In gut einer Viertelstunde gelangt man auch in die Landeshauptstadt Linz!

Ich freue mich auf Ihre Anfrage!

Kann ich mir diese Immobilie leisten?

  • % Nebenkosten
    0 €/ Monat
  • % Zinsen
    0 €/ Monat
  • % Kaufpreis
    0 €/ Monat
*
pro Monat
* errechnete monatliche Kreditrate bei einem angenommenen Effektivzins von 1.6% p.a. Die Berechnung stellt einen unverbindlichen Richtwert dar und ist von der Bonität, Kredithöhe, Laufzeit, Verwendungszweck und Besicherung abhängig.

Kontaktieren

GewerblichAllerstorfer Immobilien GmbHHerr Michael Zellinger
Nachricht
Anrede
Vorname
Nachname
E-Mail
Telefon
Ich bin Eigentümer:in einer Immobilie
GewerblichAllerstorfer Immobilien GmbHHerr Michael Zellinger
 Verifiziert von ImmoScout24
Bronze Partner