{"obj_regio1":"009","obj_regio2":"009001","obj_regio3":"009001005","obj_ityp":"2","obj_zipCode":"1050","obj_title":"Da ist er – Ihr Wiener Wohntraum! Altbaujuwel im letzten Stock mit Balkon & Klima – jetzt zugreifen!","obj_picture":"https://pictures.immobilienscout24.de/prod.www.immobilienscout24.at/pictureserver/loadPicture?q=70&id=012.0012000001E83jZ-1759151863-fb8d2ac70ee4404baceee82f7d82f8a0","obj_exclusiveExpose":"true","obj_cwId":"ADS0017893033","obj_purchasePrice":530000,"obj_purchasePriceRange":"9","obj_baseRentRange":null}
  • Altbau
  • Balkon

Da ist er – Ihr Wiener Wohntraum! Altbaujuwel im letzten Stock mit Balkon & Klima – jetzt zugreifen!

530.000
 
82 m²3 ZimmerBalkon 8 m²
Preis / m²6.214,82 €
Etage-
Baujahr1914
Schantl ITH Immobilientreuhand GmbHHerr Dejan Ljepoja, MBA
Reinprechtsdorfer Straße, 1050 Wien
Willkommen in Margareten – einem der spannendsten und vielseitigsten Bezirke Wiens.
Die Reinprechtsdorfer Straße verbindet urbanes Flair mit echtem Wiener Charakter:

U-Bahn, Bus & Citybike in wenigen Minuten erreichbar

Supermärkte, Bäckereien, Apotheken & Ärzte ums Eck

Charmante Cafés, internationale Gastronomie & der beliebte Naschmarkt in der Nähe

Kurze Wege in den 1. Bezirk, nach Mariahilf & zum Schlosspark Schönbrunn

Beliebtes Wohngebiet für Kreative, Junge & alle, die das echte Wien schätzen

Einmalige Kosten

Kaufpreis530.000 €
Kaufpreis pro m²6.214,82 €

Hallo neues Zuhause!

Kenne deine Chance mit Plus

Online seit120Gesehen80Kontaktiert40Gemerkt63
Plus locked

Merkmale

Verfügbar ab ab sofort
Wohnung
Baujahr 1914, Altbau, Vollständig renoviert, Unterkellert, Parkett, Fliesen, Insgesamt 4 Etagen
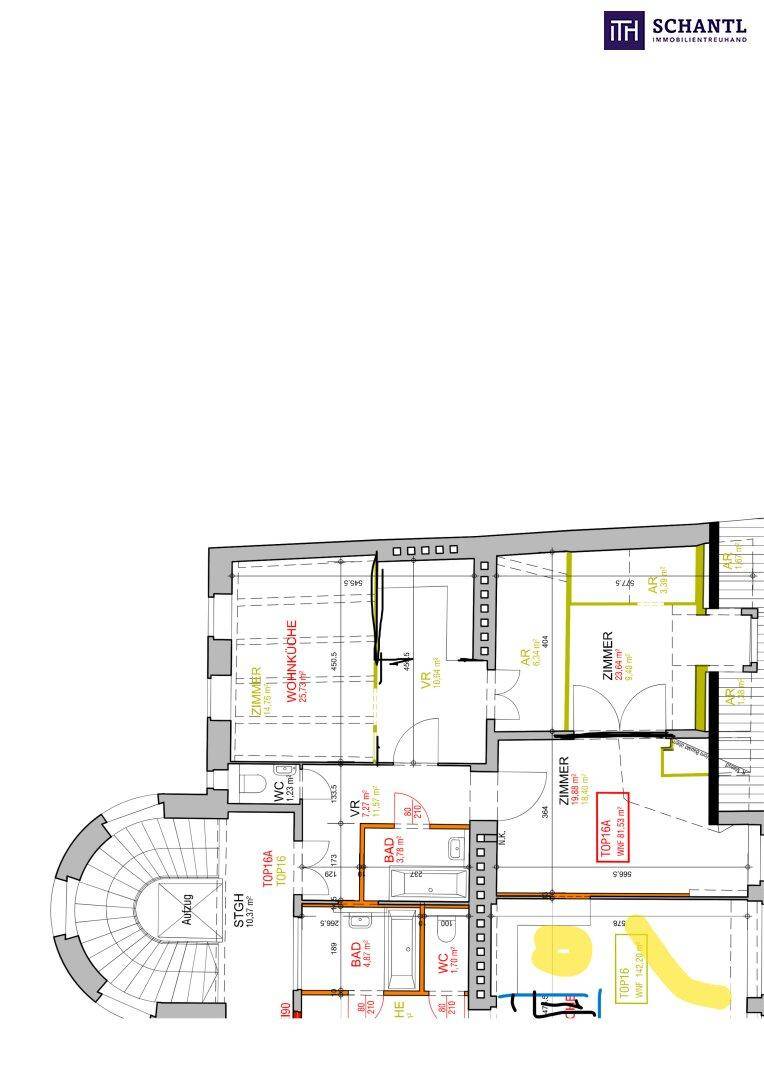
Wohnfläche 81,53 m²
Nutzfläche 85,28 m²
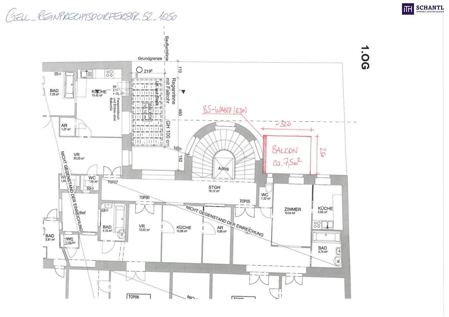
Balkon 7,5 m²
Balkon
3 Zimmer
Kellerfläche 3 m², 1 Badezimmer, 1 Toilette, Abstellraum, WG-tauglich

Ausstattung

Offene Küche, Badewanne, Klimatisiert
Barrierefrei, Personenaufzug

Heizung

EtagenheizungGas
Heizwärmebedarf (HWB)
128 kWh/(m²a)
D
Gesamtenergieeffizienzfaktor (fGEE)
2.51
E

Beschreibung

Da ist er – Ihr Wiener Wohntraum! Altbaujuwel im letzten Stock mit Balkon & Klima – jetzt zugreifen!81 m² Traumwohnung mit neuem Balkon, Klimaanlage & Top-Grundriss

Stellen Sie sich vor: Sie öffnen die Türe zu Ihrer neuen Wohnung im letzten Stockwerk – hell, ruhig, mit hohen Decken und dem besonderen Flair eines echten Wiener Altbaus.
Und das absolute Highlight: Ihre großzügige Wohnküche erhält einen eigenen Balkon Richtung Innenhof – bereits genehmigt und vom Verkäufer errichtet. Ein echtes Stück Lebensqualität, das im Altbau nur selten zu finden ist!

Highlights auf einen Blick:
  • 81,63 m² Wohnfläche im letzten Stock (Lift vorhanden)

  • 2 Schlafzimmer – ideal für Paare, kleine Familien oder Homeoffice

  • Großzügige Wohnküche mit Zugang zum neuen Balkon (ca. 7,5 m², genehmigt & vom Verkäufer errichtet)

  • Separates Badezimmer mit Badewanne & separates WC

  • Charmantes Vorzimmer/Entree mit klassischem Altbaucharme

  • Praktischer Abstellraum für zusätzlichen Stauraum

  • Klimaanlage wird vom Verkäufer eingebaut – inklusive im Kaufpreis!

  • Frisch ausgemalt vor Übergabe

Kaufpreis: € 530.000,-

(+ € 30.000,- für den genehmigten und vom Verkäufer errichteten Balkon)

Solche Altbauwohnungen mit Balkon im letzten Stock kommen äußerst selten auf den Markt – und sind entsprechend gefragt.

Vereinbaren Sie noch heute Ihren Besichtigungstermin, bevor es jemand anderes tut!

Jetzt besichtigen – bevor es zu spät ist!

Bei konkretem Interesse senden wir Ihnen sehr gerne weiterführende Dokumente zu, wie:

o Grundbuchauszug

o Wohnungseigentumsvertrag

o Nutzwertgutachten

o Eigentümerversammlungsprotokoll (Falls vorhanden) etc...

www.schantl-ith.at


Infrastruktur / Entfernungen

Gesundheit
Arzt <250m
Apotheke <250m
Klinik <750m
Krankenhaus <750m

Kinder & Schulen
Schule <250m
Kindergarten <250m
Universität <750m
Höhere Schule <750m

Nahversorgung
Supermarkt <250m
Bäckerei <250m
Einkaufszentrum <1.000m

Sonstige
Geldautomat <250m
Bank <250m
Post <500m
Polizei <500m

Verkehr
Bus <250m
U-Bahn <250m
Straßenbahn <750m
Bahnhof <750m
Autobahnanschluss <3.500m

Angaben Entfernung Luftlinie / Quelle: OpenStreetMap

Kann ich mir diese Immobilie leisten?

  • % Nebenkosten
    0 €/ Monat
  • % Zinsen
    0 €/ Monat
  • % Kaufpreis
    0 €/ Monat
*
pro Monat
* errechnete monatliche Kreditrate bei einem angenommenen Effektivzins von 1.6% p.a. Die Berechnung stellt einen unverbindlichen Richtwert dar und ist von der Bonität, Kredithöhe, Laufzeit, Verwendungszweck und Besicherung abhängig.

Kontaktieren

GewerblichSchantl ITH Immobilientreuhand GmbHHerr Dejan Ljepoja, MBA
Nachricht
Anrede
Vorname
Nachname
E-Mail
Telefon
Ich bin Eigentümer:in einer Immobilie
GewerblichSchantl ITH Immobilientreuhand GmbHHerr Dejan Ljepoja, MBA
 Verifiziert von ImmoScout24
Gold Partner