{"obj_regio1":"009","obj_regio2":"009001","obj_regio3":"009001021","obj_ityp":"0","obj_zipCode":"1210","obj_title":"Ruhige 2-Zimmerwohnung mit Balkon, Brünner Straße, 1210 Wien - zu mieten!","obj_picture":"https://pictures.immobilienscout24.de/prod.www.immobilienscout24.at/pictureserver/loadPicture?q=70&id=012.0015I00000OgQaI-1760092438-61c58fcf9a624ae08fedb19314209b6a","obj_exclusiveExpose":"true","obj_cwId":"ADS0017892045","obj_purchasePrice":null,"obj_purchasePriceRange":null,"obj_baseRentRange":"6"}
  • Provisionsfrei
  • Parkplatz
  • Balkon
  • Video Live-Besichtigung

Ruhige 2-Zimmerwohnung mit Balkon, Brünner Straße, 1210 Wien - zu mieten!

932
 
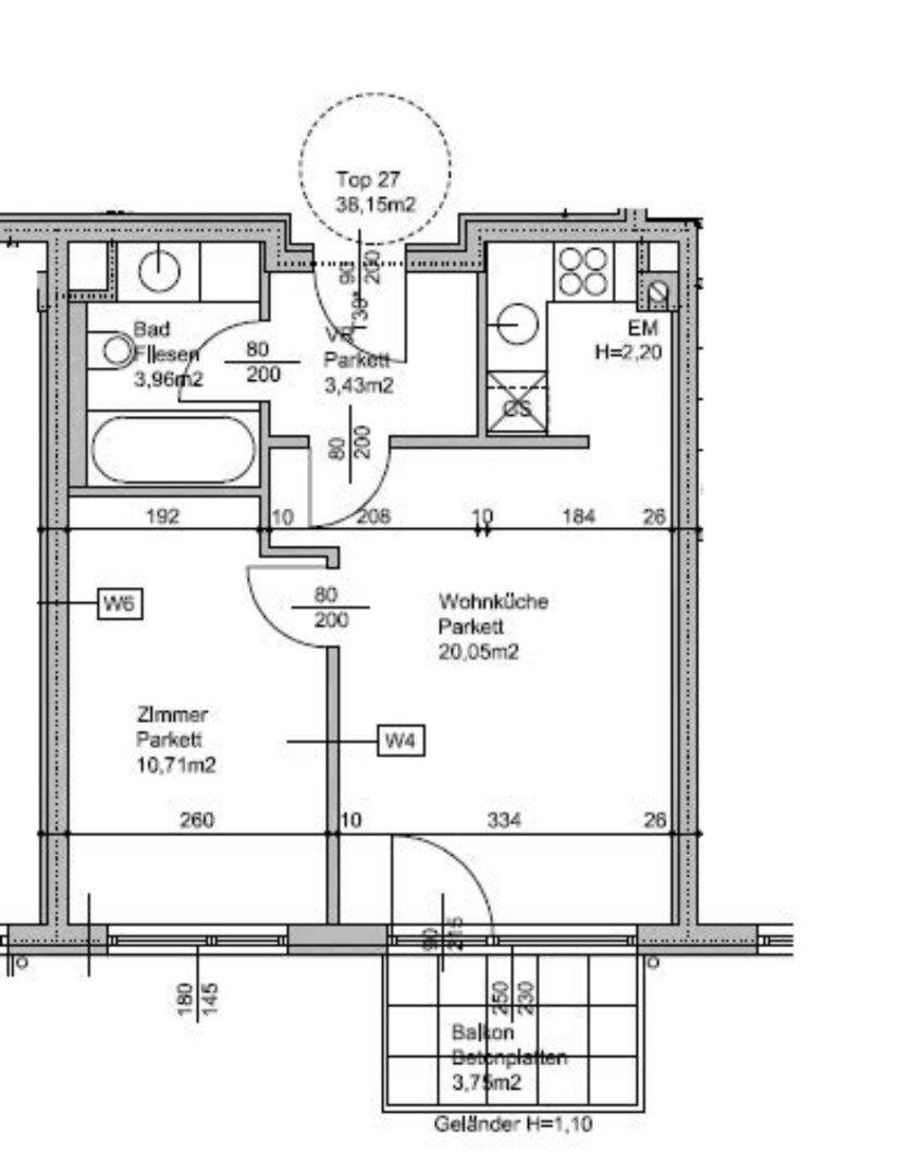
38 m²2 ZimmerBalkon 4 m²
Etage2
Befristung5 Jahre
Kaution3 Bruttomonatsmieten
Thurner Realitäten GmbHFrau Petra Gepp
1210 Wien
Die Wohnung befindet sich in der 1210 Wien, Floridsdorf. Sie liegt in einer belebten Wohngegend, aber dennoch in der Nähe vieler wichtiger Einrichtungen. In unmittelbarer Umgebung gibt es einen Arzt, eine Apotheke und ein Krankenhaus für medizinische Versorgung. Auch Bildungseinrichtungen wie Schulen, Kindergärten, eine Universität und eine Höhere Schule sind gut erreichbar. Für den täglichen Bedarf gibt es in der Umgebung mehrere Supermärkte, und viele weitere Geschäfte. Das Naherholungsgebiet "alte Donau" ist fußläufig zu erreichen.

Laufende Kosten

Monatliche Kosten931,62 €
Preis pro m²20 €
Gesamtbelastung Netto846,93 €
USt. Gesamtbelastung84,69 €
Miete763 €
USt. Miete76,3 €
Betriebskosten83,93 €
USt. Betriebskosten8,39 €

Einmalige Kosten

Kaution: 3 Bruttomonatsmieten

Hallo neues Zuhause!

Kenne deine Chance mit Plus

Online seit120Gesehen80Kontaktiert40Gemerkt63
Plus locked

Merkmale

Verfügbar ab ab sofort
befristet auf 5 Jahre
Wohnung
Baujahr 2011, Neubau, Neuwertig, Massivbauweise, Unterkellert, letzte Modernisierung 2024, Parkett, Fliesen, 2. Etage
Wohnfläche 38,15 m²
Nutzfläche 41,9 m²
1 Balkon 3,75 m² südwestseitig
2 Zimmer
Kellerfläche 3 m², 1 Badezimmer, 1 Toilette, Abstellraum
Garage
Fahrradabstellraum

Ausstattung

Einbauküche, Offene Küche, Badewanne, Rolläden, Wäschetrockenraum
Barrierefrei, Rollstuhlgerecht, Personenaufzug

Heizung

FernwärmeFernwärme
Heizwärmebedarf (HWB)
27.2 kWh/(m²a)
B
Gesamtenergieeffizienzfaktor (fGEE)
3.86
F

Beschreibung

Helle 2-Zimmer-Wohnung mit Balkon in zentraler Lage im 21. Bezirk zu vermieten!

Diese perfekte Wohnung befindet sich in schöner und zentraler Lage des 21. Wiener Gemeindebezirkes. Die Wohnung befindet sich in einem  Mehrparteienhaus und liegt im 2. Stok hofseitig. Sie betreten die Wohnung durch das Vorzimmer mit Stauraummöglichkeit, von dem Sie zentrale das Bad mit WC und das Wohnzimmer mit Küche betreten. Vom Wohnzimmer aus gelangen Sie in das helle Schlafzimmer. Den sonnigen Balkon können Sie direkt vom Wohnzimmer aus begehen und lädt mit schönem Ausblick zum Entspannen ein. Die Wohnung wurde renoviert und ist einem sehr gepflegten Zustand. Die Wohnung ist sehr ruhig gelegen, da sie in Richtung Innenhof ausgerichtet ist.

Weiteren Stauraum bietet ein großzügiger Abstellraum, der sich auf der selben Etage wie die Wohnung befindet und nur dieser Wohnung zugeordnet ist.

Zusätzlich gibt es im Keller einen Wasch- und Trockenraum mit Geräten zur allgemeinen Nutzung sowie einen Fahrrad/Kinderwagenraum.

Diese Immobilie bietet Ihnen nicht nur eine hervorragende Lage, sondern auch den Komfort eines modernen und komfortablen Zuhauses.

Die Wohnung wird mittels Fernwärme beheizt und die Heizkosten werden von der Hausverwaltung abgerechnet.

Bei Bedarf kann auch ein Garagenplatz separat angemietet werden € 110, 00 netto pro Monat.

Raumaufteilung:

  • Vorzimmer
  • 1 Schlafzimmer
  • Wohnküche mit Zugang zum Balkon (Innenhof Ausrichtung)
  • Bad mit Badewanne, Waschbecken, WC
  • Balkon

Lage:

Das Objekt befindet sich im 21. Wiener Gemeindebezirk in der Brünner Straße. In unmittelbarer Nähe befinden sich zahlreiche Geschäfte des täglichen Bedarfs. Es gibt mehrere Kindergärten und Schulen in der Umgebung. Die Shopping City Nord mit diversen Geschäften und Restaurants befindet sich ebenfalls in der Nähe. Zur Erholung und diversen Freizeitaktivitäten im Freien laden die nahgelegene Alte Donau (nur 15 Gehminuten) und die Donauinsel ein.

Öffentliche Verkehrsmittel

• Straßenbahnlinie 26, 30, 31

• Buslinie 11A, 36B

• U-Bahn U6 Floridsdorf

• Schnellbahn Floridsdorf

Nebenkosten: 

  • 3 Bruttomonatsmieten Kaution

Wir freuen uns Ihnen die Liegenschaft jederzeit persönlich vorzustellen zu dürfen.

Kontaktieren Sie gerne Frau Petra Gepp persönlich unter Anbieter kontaktieren oder unter Anbieter kontaktieren

Auf ein wirtschaftliches Naheverhältnis mit dem Abgeber, bedingt durch regelmäßige Geschäftsbeziehungen, wird hingewiesen.

Maklervereinbarung: Wir ersuchen um Verständnis, dass wir bei Anfragen zur Objektadresse, bzw. Besichtigungstermin aufgrund neuer gesetzlicher Bestimmungen Unterlagen erst dann zusenden können, wenn Sie vorab bestätigen, dass Sie unser sofortiges Tätigwerden wünschen und über Ihre Rücktrittsrechte aufgeklärt wurden. Sie bekommen nach Ihrer schriftlichen Anfrage mit vollständiger Angabe des Namens, Anschrift und Telefonnummer ein E-Mail, in dem Sie diese Punkte bestätigen müssen.

Haftungsausschluss:  Wir weisen darauf hin, dass sämtliche Daten im vorliegenden Angebot sowie die von unserem Büro an Sie weitergegebenen Auskünfte, vom Eigentümer der Immobilie zur Verfügung gestellt wurden. Ebenso sind Informationen von Dritten (z.B. behördliche Informationen) eingeholt worden, auch für diese können wir unsererseits keinerlei Haftung für deren uneingeschränkte Richtigkeit übernehmen.

Wir weisen darauf hin, dass zwischen dem Vermittler und dem zu vermittelnden Dritten ein familiäres oder wirtschaftliches Naheverhältnis besteht.


Infrastruktur / Entfernungen

Gesundheit
Arzt <500m
Apotheke <500m
Klinik <1.000m
Krankenhaus <1.500m

Kinder & Schulen
Schule <500m
Kindergarten <500m
Universität <1.000m
Höhere Schule <500m

Nahversorgung
Supermarkt <500m
Bäckerei <500m
Einkaufszentrum <500m

Sonstige
Geldautomat <500m
Bank <500m
Post <500m
Polizei <500m

Verkehr
Bus <500m
U-Bahn <500m
Straßenbahn <500m
Bahnhof <500m
Autobahnanschluss <500m

Angaben Entfernung Luftlinie / Quelle: OpenStreetMap

Kontaktieren

GewerblichThurner Realitäten GmbHFrau Petra Gepp
Nachricht
Anrede
Vorname
Nachname
E-Mail
Telefon
GewerblichThurner Realitäten GmbHFrau Petra Gepp
Video Live-Besichtigung
 Verifiziert von ImmoScout24
Sales Professional AwardImmo Expert ***** Award