{"obj_regio1":"002","obj_regio2":"002007","obj_regio3":"002007011","obj_ityp":"2","obj_zipCode":"9584","obj_title":"SERENA. Stille der Natur beim Faaker See.","obj_picture":"https://pictures.immobilienscout24.de/prod.www.immobilienscout24.at/pictureserver/loadPicture?q=70&id=012.0010J00001rZ699-1760010325-f7b5a10a030c4bbab941a04be074bb8f","obj_exclusiveExpose":"true","obj_cwId":"ADS0017934654","obj_purchasePrice":487700,"obj_purchasePriceRange":"8","obj_baseRentRange":null}
  • Parkplatz
  • Terrasse

SERENA. Stille der Natur beim Faaker See.

487.700
 
90 m²3 ZimmerTerrasse 27 m²
Preis / m²5.418,89 €
Etage1
Baujahr2025
SCHICK Immobilien Gernot SchickHerr Gernot SCHICK
9584 Finkenstein am Faaker See
Das SERENA lässt wahrlich keine Wünsche offen. Gebettet zwischen Berg und See, westlich vom Ufer des Faaker Sees, auf einer leichten Anhöhe im Ort Finkenstein am Faaker See entstand dieses einzigartige Premium-Immobilien-Projekt. Die Nähe zur Stadt Villach und das ländliche Dorfleben mit intaktem Vereinsleben charakterisieren Ihren künftigen Lebensmittelpunkt. Die Seeregion hat nicht nur für Naturbegeisterte viel zu bieten: Wander- und Radwege quasi von der Haustüre weg, die Nähe zum Faaker See und die Panoramaaussicht in Richtung Mittagskogel im Süden und Dobratsch im Westen sorgen für geradezu paradiesische Verhältnisse. Kurze Wege - sämtliche Infrastruktur für das tägliche Leben sind gut erreichbar und im Ort. Vom Bahnhof Finkentein aus bringt Sie die ÖBB-S-Bahn S5 stündlich direkt nach Villach oder zum Faaker See, perfekt für Ausflüge ohne Auto. Den Bahnhof erreichen Sie in nur 7 Minuten zu Fuß oder 2 Minuten mit dem Auto.

Einmalige Kosten

Kaufpreis487.700 €
Kaufpreis pro m²5.418,89 €
Kalkuliert von ImmoScout24

Hallo neues Zuhause!

Kenne deine Chance mit Plus

Online seit120Gesehen80Kontaktiert40Gemerkt63
Plus locked

Merkmale

Verfügbar ab ab sofort
Wohnung
Baujahr 2025, Neubau, Erstbezug, Massivbauweise, Niedrigenergiebauweise, Neubaustandard, Unterkellert, Flachdach, Parkett, Fliesen, 1. Etage
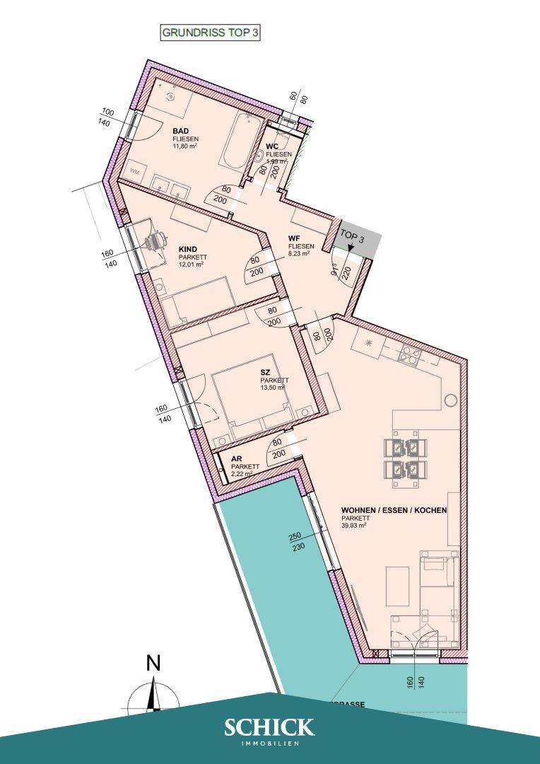
Wohnfläche 90 m²
1 Terrasse 27 m² südwestseitig
südwestseitig
3 Zimmer
Kellerfläche 3 m², 1 Badezimmer, 1 Toilette
Carport
Fahrradabstellraum, 2 Parkplätze, 2 Parkmöglichkeiten

Ausstattung

Offene Küche, Badewanne, Dusche, Fenster, Klimatisiert
Barrierefrei, Personenaufzug

Heizung

FußbodenheizungLuftwärmepumpe
Heizwärmebedarf (HWB)
36 kWh/(m²a)
B
Gesamtenergieeffizienzfaktor (fGEE)
0.66
A+

Beschreibung

Wohnen mit Bergblick, wo Natur und Komfort eins werden.

In Finkenstein am Faaker See auf einer leichten sonnigen Anhöhe im Ortsteil St. Stefan befindet sich SERENA. Ein südlich ausgerichtetes Premium Neubau-Wohnhaus mit nur sechs Wohnungen zwischen 75 m² und 86 m².

Ein fertiggestelltes Neubau-Projekt, das die Essenz von Wohnen neu interpretiert: reduziert auf das Wesentliche, angereichert mit Qualität und eingebettet in eine einmalige Landschaft. Nur sechs Neubau-Wohnungen eröffnen hier die Möglichkeit, in einem Umfeld zu leben, das Privatsphäre, Stil und Ruhe in den Mittelpunkt stellt. Neben dieser Wohnung erwarten Sie im Projekt SERENA noch weitere exklusive 2- und 3-Zimmer-Wohnungen, wahlweise mit privatem Garten oder großzügiger Terrasse.

Die Lage ist ein Geschenk: Umgeben von Wiesen und Feldern genießen Sie den weiten Blick auf die Karawanken und den imposanten Mittagskogel, während der türkisblau funkelnde Faaker See in unmittelbarer Nähe liegt. Hier verbinden sich Natur, Gelassenheit und moderner Komfort zu einem Wohngefühl, das nachhaltig wirkt.

SERENA steht für zeitlose Architektur, großzügige Freiflächen und Materialien, die Wertigkeit spürbar machen. Kombiniert mit durchdachten Grundrissen, nachhaltiger Haustechnik und eleganten Details entsteht ein Zuhause, das mehr ist als ein Ort zum Wohnen – es ist ein Ort zum Ankommen und Aufatmen. Das Projekt ist fertiggestellt und die Wohnungen sind sofort bezugsbereit.

Eine Musterwohnung ist bereits fertiggestellt und eine Besichtigung jederzeit möglich. Dort erleben Sie die hochwertigen Materialien direkt vor Ort, von edlen Parkettböden über moderne Fliesen bis hin zur durchdachten Ausstattung und spürbaren Bauqualität.

Durchdacht bis ins Detail...

  • Musterwohnung fertiggestellt, überzeugen Sie sich jederzeit von Qualität, Materialien und Ausstattung

  • Massivbauweise mit energieeffizienter Wärmedämmung

  • Kunststoff-Aluminium-Fenster mit 3-fach Isolier-Verglasung

  • Hebeschiebetüren mit schwellenlosem Übergang

  • Elektrisch steuerbare Sonnenschutz Raffstores

  • Fußbodenheizung mit nachhaltiger Wasser-Luft-Wärmepumpe (inkl. Kühlfunktion im Sommer)

  • Dezentrale Lüftungsanlage für frische Luft und angenehmes Raumklima

  • Warmwasserbereitung über IDM Hygienik Speicher

  • Qualitätsvolle Ausstattung: Parkettböden, moderne Fliesen, Armaturen von Hansgrohe, WCs von Villeroy & Boch

  • Barrierefreier Zugang per Aufzug

  • Wartungsfreie Wasser-Entkalkungsanlage von AQUON PUR

  • Private Kellerabteile, KFZ Carports, Vorbereitung für E-Auto-Ladestationen, private E-Bike-Ladestation

Hinweis: Der Kaufpreis pro KFZ-Carport Abstellplatz beträgt EUR 14.900,00.

Der Vermittler ist als Doppelmakler tätig.


Infrastruktur / Entfernungen

Gesundheit
Arzt <3.000m
Apotheke <3.500m
Klinik <3.500m
Krankenhaus <4.500m

Kinder & Schulen
Schule <1.000m
Kindergarten <1.000m
Universität <5.000m
Höhere Schule <5.000m

Nahversorgung
Supermarkt <1.500m
Bäckerei <3.000m
Einkaufszentrum <4.000m

Sonstige
Geldautomat <1.500m
Bank <1.500m
Post <3.500m
Polizei <3.500m

Verkehr
Bus <1.000m
Autobahnanschluss <2.500m
Bahnhof <500m

Angaben Entfernung Luftlinie / Quelle: OpenStreetMap

Kann ich mir diese Immobilie leisten?

  • % Nebenkosten
    0 €/ Monat
  • % Zinsen
    0 €/ Monat
  • % Kaufpreis
    0 €/ Monat
*
pro Monat
* errechnete monatliche Kreditrate bei einem angenommenen Effektivzins von 1.6% p.a. Die Berechnung stellt einen unverbindlichen Richtwert dar und ist von der Bonität, Kredithöhe, Laufzeit, Verwendungszweck und Besicherung abhängig.

Kontaktieren

GewerblichSCHICK Immobilien Gernot SchickHerr Gernot SCHICK
Nachricht
Anrede
Vorname
Nachname
E-Mail
Telefon
Ich bin Eigentümer:in einer Immobilie
GewerblichSCHICK Immobilien Gernot SchickHerr Gernot SCHICK
 Verifiziert von ImmoScout24
Silber Partner