{"obj_regio1":"009","obj_regio2":"009001","obj_regio3":"009001016","obj_ityp":"2","obj_zipCode":"1160","obj_title":"1160! Schöne LOGGIA 2 Zimmerwohnung in der City!","obj_picture":"https://pictures.immobilienscout24.de/prod.www.immobilienscout24.at/pictureserver/loadPicture?q=70&id=012.001P900000UgKNk-1760092188-4e53f02ba155479588b7bb1e8ce79e3a","obj_exclusiveExpose":"false","obj_cwId":null,"obj_purchasePrice":355000,"obj_purchasePriceRange":"7","obj_baseRentRange":null}

    1160! Schöne LOGGIA 2 Zimmerwohnung in der City!

    355.000
     
    60 m²2 ZimmerLoggia 6 m²
    Preis / m²5.890,16 €
    Etage2
    Baujahr2008
    Steindl Immobilien e.UFrau Monika Colombini
    1160 Wien

    Einmalige Kosten

    Kaufpreis355.000 €
    Kaufpreis pro m²5.890,16 €
    Provision: 3% des Kaufpreises zzgl. 20% USt.

    Laufende Kosten

    Monatliche Kosten210,09 €
    Betriebskosten132,91 €
    USt. Betriebskosten13,29 €
    Monatliche Kosten Netto196,8 €
    Sonstige Kosten Netto63,89 €

    Hallo neues Zuhause!

    Kenne deine Chance mit Plus

    Online seit120Gesehen80Kontaktiert40Gemerkt63
    Plus locked

    Merkmale

    Verfügbar ab Ab sofort
    Wohnung
    Baujahr 2008, Neubau, Unterkellert, 2. Etage
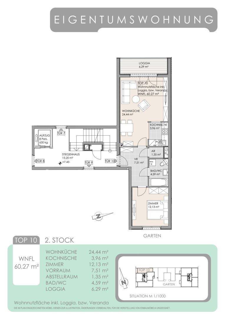
    Nutzfläche 60,27 m²
    1 Loggia 6,29 m²
    2 Zimmer
    1 Badezimmer, 1 Toilette, Abstellraum

    Ausstattung

    Offene Küche, Badewanne
    Personenaufzug

    Heizung

    ZentralheizungGas

    Beschreibung

    1160! Schöne LOGGIA 2 Zimmerwohnung in der City!

    In einem gepflegten Neubau (BJ 2008 - 2009) in Wien Ottakring gelangt eine hübsche 2-Zimmer Wohnung mit Loggia  zum Verkauf.

    Die perfekt aufgeteilte Wohneinheit (alle Räume sind zentral begehbar) befindet sich im 1.Liftstock und verfügt über ca. 60,27 m² Wohnnutzfläche inkl. einer ca. 6,29 m² großen Loggia. 

    Aufteilung/Ausstattung
    • zentraler Vorraum/Gang
    • Ausgestattete Wohnküche mit Ausgang zur Loggia
    • 1 Schlafzimmer hofseitig
    • Badezimmer mit Badewanne, Waschbecken, WM-Anschluss und WC 
    • Abstellraum
    • Kellerabteil: JA
    • Heizungsart: Hauszentralheizung/Gas (Abrechnung erfolgt direkt über die Fa. ISTA)

    Monatskosten dzt.: 
    Betriebskosten dzt. netto: € 132,91 (zzgl. 10% USt)
    Rep.Rücklage dzt.: € 63,89 (zzgl.10 %USt)
    Gesamtkosten dzt. p.M. inkl. USt: € 210,09

    Kaufpreis: € 355.000,00,-
    Provision: 3% vom KP zzgl. 20% USt

    Kaufvertragserrichter u. Treuhänder: Tiefenthaler Gnesda Rechtsanwälte GmbH, Pauschalhonorar 1,2% des Kaufpreises zzgl. USt. + Barauslagen

    Bezug: Ab sofort

    Bei den möblierten Fotos handelt es sich um virtuelles Homestaging, das Objekt wird unmöbliert verkauft, Küche und Badezimmer bleiben im Objekt.

    Lage/Infrastruktur
    Sehr gute Infrastruktur! Sämtliche Nahversorger des täglichen Bedarfs wie Supermarkt, Bäcker, Apotheke  sowie auch Schulen und Kindergarten befinden sich in direkter Umgebung.

    Öffentliche Anbindung
    Strassenbahnlinie 9 (Haltestelle fast vor der Haustür)
    U6 / Station Burggasse oder Station Thaliastrasse

    Hinweis gemäß Energieausweisvorlagegesetz: Ein Energieausweis wurde vom Eigentümer bzw. Verkäufer nach unserer Aufklärung über die ab 1.12.2012 geltende generelle Vorlagepflicht, sowie Aufforderung zu seiner Erstellung noch nicht vorgelegt. Daher gilt zumindest eine dem Alter und der Art des Gebäudes entsprechende Gesamtenergieeffizienz als vereinbart. Wir übernehmen keinerlei Gewähr oder Haftung für die tatsächliche Energieeffizienz der angebotenen Immobilie.

    Wir weisen darauf hin, dass zwischen dem Vermittler und dem zu vermittelnden Dritten ein familiäres oder wirtschaftliches Naheverhältnis besteht.

    Der Vermittler ist als Doppelmakler tätig.


    Infrastruktur / Entfernungen

    Gesundheit
    Arzt <500m
    Apotheke <500m
    Klinik <1.000m
    Krankenhaus <2.000m

    Kinder & Schulen
    Schule <500m
    Kindergarten <500m
    Universität <1.000m
    Höhere Schule <1.000m

    Nahversorgung
    Supermarkt <500m
    Bäckerei <500m
    Einkaufszentrum <1.000m

    Sonstige
    Geldautomat <500m
    Bank <1.000m
    Post <1.000m
    Polizei <1.000m

    Verkehr
    Bus <500m
    U-Bahn <1.000m
    Straßenbahn <500m
    Bahnhof <1.000m
    Autobahnanschluss <5.000m

    Angaben Entfernung Luftlinie / Quelle: OpenStreetMap

    Kann ich mir diese Immobilie leisten?

    • % Nebenkosten
      0 €/ Monat
    • % Zinsen
      0 €/ Monat
    • % Kaufpreis
      0 €/ Monat
    *
    pro Monat
    * errechnete monatliche Kreditrate bei einem angenommenen Effektivzins von 1.6% p.a. Die Berechnung stellt einen unverbindlichen Richtwert dar und ist von der Bonität, Kredithöhe, Laufzeit, Verwendungszweck und Besicherung abhängig.

    Kontaktieren

    GewerblichSteindl Immobilien e.UFrau Monika Colombini
    Nachricht
    Anrede
    Vorname
    Nachname
    E-Mail
    Telefon
    Ich bin Eigentümer:in einer Immobilie
    GewerblichSteindl Immobilien e.UFrau Monika Colombini
     Verifiziert von ImmoScout24
    Bronze Partner