{"obj_regio1":"005","obj_regio2":"005003","obj_regio3":"005003038","obj_ityp":"7","obj_zipCode":"5071","obj_title":"Erwachen aus dem Dornröschenschlaf - aus alt mach neu","obj_picture":"https://pictures.immobilienscout24.de/prod.www.immobilienscout24.at/pictureserver/loadPicture?q=70&id=012.0012000001E83XS-623c21d039424ee88cdb572a63ad5567","obj_exclusiveExpose":"false","obj_cwId":null,"obj_purchasePrice":null,"obj_purchasePriceRange":null,"obj_baseRentRange":"9"}

    Erwachen aus dem Dornröschenschlaf - aus alt mach neu

    6.567
     
    525 m²
    Hölzl & Hubner Immobilien GmbHFrau Karin Fuchs
    5071 Wals-Siezenheim
    Vor dem Gebäude stehen ausreichend Parkplätze zur Verfügung. Die Lage überzeugt durch die Nähe zur Autobahnabfahrt Flughafen, einer sehr guten öffentlichen Anbindung sowie zahlreicher Geschäfte in direkter Umgebung.

    Laufende Kosten

    Miete6.566,75 €
    Preis pro m²12,5 €
    Gesamtbelastung Netto8.563,04 €
    Betriebskosten1.996,29 €
    USt. nicht enthalten

    Einmalige Kosten

    Provision inkl. USt.: Vermittlungshonorar laufzeitabhängig, max. 3 Bruttomonatsmieten (Miete + Betriebskosten) zzgl. USt
    Kaution: 3 Bruttomonatsmieten zzgl. USt

    Hallo neues Zuhause!

    Kenne deine Chance mit Plus

    Online seit120Gesehen80Kontaktiert40Gemerkt63
    Plus locked

    Merkmale

    Büro
    2. Etage
    Gesamtfläche 525,34 m²
    Bürofläche 525,34 m², Nutzfläche 525,34 m²

    Heizung

    Heizwärmebedarf (HWB)
    47.00 kWh/(m²a)
    B

    Beschreibung

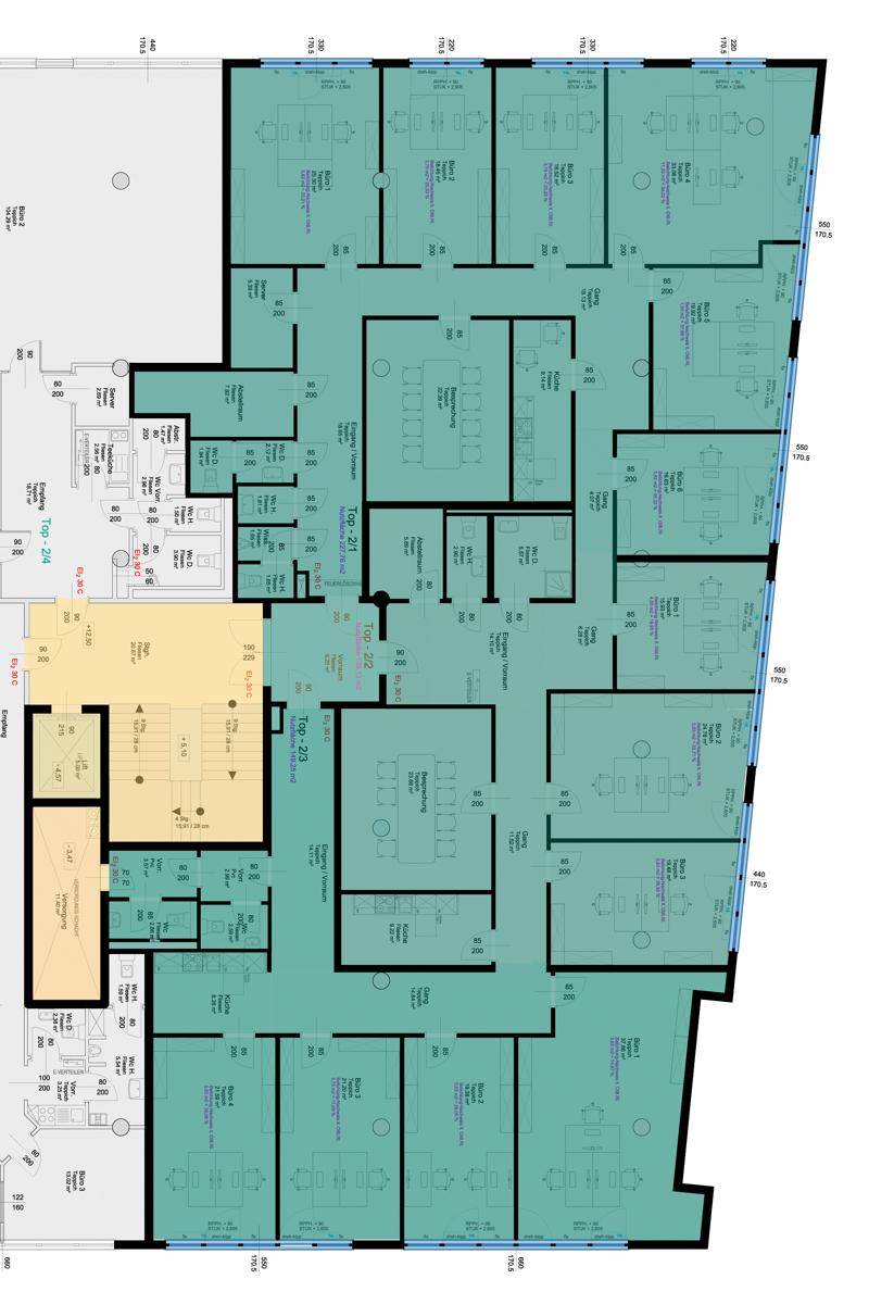
    Zur Vermietung steht ein 525 m² großes Büro im 2. Obergeschoß eines gut sichtbaren Bürogebäudes nahe des Flughafens. Die Einheit ist derzeit entkernt, wird generalsaniert und ist nach individuellen Wünschen gestaltbar. Es bietet sich die Möglichkeit, alle nutzerspezifischen Anforderungen im Ausbau zu berücksichtigen und ein maßgeschneidertes Büro zu erhalten.

    Helle Räume mit zahlreichen Fenstern, Klimatisierung und außenliegender Sonnenschutz sorgen für ein angenehmes Arbeitsumfeld. Anschlüsse für Teeküchen sind vorhanden. Der Zugang ist dank Aufzugs komfortabel möglich.

    Die Fläche ist teilbar und kann in Größen ab 140 m² angemietet werden.

    Angebot unverbindlich und freibleibend.

    Kontaktieren

    GewerblichHölzl & Hubner Immobilien GmbHFrau Karin Fuchs
    Nachricht
    Anrede
    Vorname
    Nachname
    E-Mail
    Telefon
    GewerblichHölzl & Hubner Immobilien GmbHFrau Karin Fuchs
     Verifiziert von ImmoScout24
    Bronze Partner