{"obj_regio1":"002","obj_regio2":"002001","obj_regio3":"002001012","obj_ityp":"2","obj_zipCode":"9020","obj_title":"2 - Zimmer Wohnung mit Platz an der Sonne - HeimatGlück","obj_picture":"https://pictures.immobilienscout24.de/prod.www.immobilienscout24.at/pictureserver/loadPicture?q=70&id=012.001P900000Adp59-6d65473b8bfb4011814c78ea8b9ad918","obj_exclusiveExpose":"true","obj_cwId":"ADS0019031547","obj_purchasePrice":249300,"obj_purchasePriceRange":"5","obj_baseRentRange":null}
  • Provisionsfrei
  • Balkon
  • Terrasse
  • Garten

2 - Zimmer Wohnung mit Platz an der Sonne - HeimatGlück

249.300
 
64 m²2 ZimmerBalkonGartenTerrasse 8 m²
Preis / m²3.884,99 €
Etage-
Baujahr-
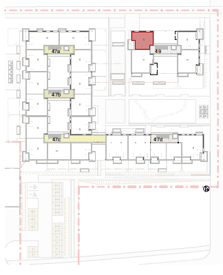
Innovation Wohnen Nageler GmbHHerr Raphael Nageler
Harbacherstraße 49, 9020 Klagenfurt am Wörthersee
Die Lage des Gesamtentwicklungskonzepts HiHarbach besticht durch zahlreiche Vorteile. Trotz der guten Anbindung an den Südring und die Völkermarkterstraße, sowie die Autobahnauffahrt Ost, die Sie in wenigen Autominuten erreichen, genießen Sie aufgrund der umliegenden 30er – Zone und den vielen Freiflächen mit großzügiger Bepflanzung, eine idyllische Ruhelage mit unverbaubaren Blick auf die südlichen Bergketten Kärntens.

Kindergarten, Schulen, Ärzte, Nahversorger, oder der sich nebenan befindende Bauernladen von Frau Rupp, der mit wunderbaren regionalen Köstlichkeiten ausgestattet ist, komplementieren das Wohnangebot.

Das Juwel Kärntens, der Wörthersee, befindet sich nur 15 Autominuten von Ihrem Zuhause entfernt.

Einmalige Kosten

Kaufpreis249.300 €
Kaufpreis pro m²3.884,99 €
Kalkuliert von ImmoScout24

Hallo neues Zuhause!

Kenne deine Chance mit Plus

Online seit120Gesehen80Kontaktiert40Gemerkt63
Plus locked

Merkmale

Neubau
Erstbezug, Unterkellert, Parkett
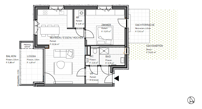
Gesamtfläche 64,17 m²
Gartenfläche 20 m²
1 Terrasse 7,92 m²
1 Balkon 5,88 m², 1 Loggia 4,49 m², Garten
2 Zimmer

Ausstattung

Gartennutzung
Barrierefrei, Personenaufzug
Diese 2 - Zimmer Wohnung befindet sich im 1. Obergeschoss des Hauses 49 und verfügt über eine Fläche von 64,17m2. Nach Eintritt in den geräumigen Vorraum, finden Sie zu Ihrer rechten ein vom WC getrenntes, modernes Badezimmer. Durch den Vorraum gelangen Sie direkt ins knapp 34m2 große Wohn- und Esszimmer. Hier befindet sich ein 10,37m2 Balkon, auf welchem man gemütliche Sommerabende verbringen kann.
Im Wohnbereich befindet sich noch ein Abstellraum, welcher für ausreichend Stauraum sorgt. Mit einer Fläche von knapp 16m2 sorgt das Schlafzimmer für eine Wohlfühloase, in welcher Sie Ihren Alltagsstress hinter sich lassen können. Zudem verfügt die Wohnung über eine 7,92m2 Dachterrasse inklusive 20,26m2 Dachgarten.
Weiters kann ein Tiefgaragenplatz, je nach Größe zwischen 20.600 – 25.000€, erworben werden.

„HeimatGlück“ ist die Antwort auf Wohnbedürfnisse der modernen Gesellschaft. Ein lebendiges Miteinander, bedarfsorientiertes Bauen, umweltfreundliche Mobilität und die besondere Grünraumgestaltung sind innovativ und zeitgemäß. Einfach Smart.

Die Wohnanlage setzt auf smarte Mobilität, um einen nachhaltigen Lebensstil zu fördern. Ein zentraler Mobilitätsknoten im Süden umfasst neben Fahrradabstellplätzen und Leihfahrrädern (nextbike), auch E-Car- und E-Bike-Sharing mit Trolleysystem, E-Lademöglichkeiten und Mobilitätsberatung. Ein gut ausgebautes Busliniennetz ermöglicht Ihnen zudem eine bequeme Anbindung ans Stadtzentrum. Hier wird Nachhaltigkeit großgeschrieben. Auch stehen vor Ort ausreichend Parkplätze für Besucher*innen zur Verfügung.

Die Wohnanlage „HeimatGlück“ befindet sich bereits in Bau. Die Fertigstellung der Gesamtanlage ist spätestens im ersten Quartal 2027 geplant (für die exakte Fertigstellung kann keine Garantie übernommen werden).
Bei den Projektabbildungen (Broschüren, Werbeanzeigen, etc.) handelt es sich lediglich um symbolische Darstellungen. Für mögliche Abweichungen zwischen den Symbolfotos, Darstellungen und den tatsächlichen Gegebenheiten in der Natur wird deshalb keine Haftung übernommen. Vorbehaltlich Fehler und Irrtümer.
Die Möblierungen in den Grundrissen dienen als Orientierungshilfe und sind nicht im Kaufpreis inkludiert.
Eine ausführliche Bau- und Ausstattungsbeschreibung erhalten Sie gerne auf Anfrage.

Heizung

FußbodenheizungFernwärme
Heizwärmebedarf (HWB)
39.2 kWh/(m²a)
B
Gesamtenergieeffizienzfaktor (fGEE)
0.75
A+

Beschreibung

Kann ich mir diese Immobilie leisten?

  • % Nebenkosten
    0 €/ Monat
  • % Zinsen
    0 €/ Monat
  • % Kaufpreis
    0 €/ Monat
*
pro Monat
* errechnete monatliche Kreditrate bei einem angenommenen Effektivzins von 1.6% p.a. Die Berechnung stellt einen unverbindlichen Richtwert dar und ist von der Bonität, Kredithöhe, Laufzeit, Verwendungszweck und Besicherung abhängig.

Kontaktieren

GewerblichInnovation Wohnen Nageler GmbHHerr Raphael Nageler
Nachricht
Anrede
Vorname
Nachname
E-Mail
Telefon
Ich bin Eigentümer:in einer Immobilie
GewerblichInnovation Wohnen Nageler GmbHHerr Raphael Nageler
 Verifiziert von ImmoScout24
Gold Partner