{"obj_regio1":"009","obj_regio2":"009001","obj_regio3":"009001007","obj_ityp":"2","obj_zipCode":"1070","obj_title":"Großzügige Altbauwohnung im 2. Stock mit Potenzial und Klopfbalkon in begehrter Lage!","obj_picture":"https://pictures.immobilienscout24.de/prod.www.immobilienscout24.at/pictureserver/loadPicture?q=70&id=012.0012000001E3ql0-1709997114-d4ff8a351b874075ab7696236bfe8fe6","obj_exclusiveExpose":"false","obj_cwId":null,"obj_purchasePrice":890000,"obj_purchasePriceRange":"10","obj_baseRentRange":null}
  • Altbau
  • Balkon

Großzügige Altbauwohnung im 2. Stock mit Potenzial und Klopfbalkon in begehrter Lage!

890.000
 
124 m²4 ZimmerBalkon 2 m²
Preis / m²7.187,85 €
Etage1
Baujahr1900
TMU-RealitätenHerr Thomas Musser
1070 Wien,Neubau

Einmalige Kosten

Kaufpreis890.000 €
Kaufpreis pro m²7.187,85 €
Provision: 3% des Kaufpreises zzgl. 20% USt.

Laufende Kosten

Monatliche Kosten346,05 €
Betriebskosten201,37 €
Sonstige Kosten Netto144,68 €

Hallo neues Zuhause!

Kenne deine Chance mit Plus

Online seit120Gesehen80Kontaktiert40Gemerkt63
Plus locked

Merkmale

Verfügbar ab sofort
Wohnung
Baujahr 1900, Altbau, Renovierungsbedürftig, Unterkellert, Grundstück voll erschlossen, Parkett, Fliesen, Veränderbare Räume, 1. Etage
Wohnfläche 123,82 m²
Nutzfläche 125,42 m²
1 Balkon 1,6 m²
4 Zimmer
Kellerfläche 3 m², 1 Badezimmer, 1 Toilette

Ausstattung

Badewanne, Dusche, Fenster

Heizung

ZentralheizungGas
Heizwärmebedarf (HWB)
164.64 kWh/(m²a)
E
Gesamtenergieeffizienzfaktor (fGEE)
2.33
D

Beschreibung

Die gepflegte Altbauliegenschaft mit gegliedeter Fassade befindet sich in Top Lage des siebenten Bezirkes in der Bandgasse, Nähe Burggasse und Neubaugasse.

Die verkehrsgünstige Anbindung an Bus, U-Bahn, Straßenbahn und Bahnhof ermöglicht es Ihnen, schnell und bequem in die Innenstadt oder andere Stadtteile zu gelangen. Auch für Pendler ist diese Lage ideal, da der Westbahnhof nur wenige Gehminuten entfernt ist. (U3 und U6 - zukünftig auch die U5, Straßenbahnlinie 49, Autobuslinie 48A und 13A).

Doch nicht nur die Anbindung, sondern auch die umliegende Infrastruktur lässt keine Wünsche offen. In unmittelbarer Nähe finden Sie alles, was Sie für den täglichen Bedarf benötigen: Ärzte, Apotheken, Kliniken, Schulen, Kindergärten, Universitäten, höhere Schulen, Supermärkte, Bäckereien und sogar ein Einkaufszentrum. Hier können Sie bequem Ihre Besorgungen erledigen und auch die Freizeitgestaltung kommt nicht zu kurz.

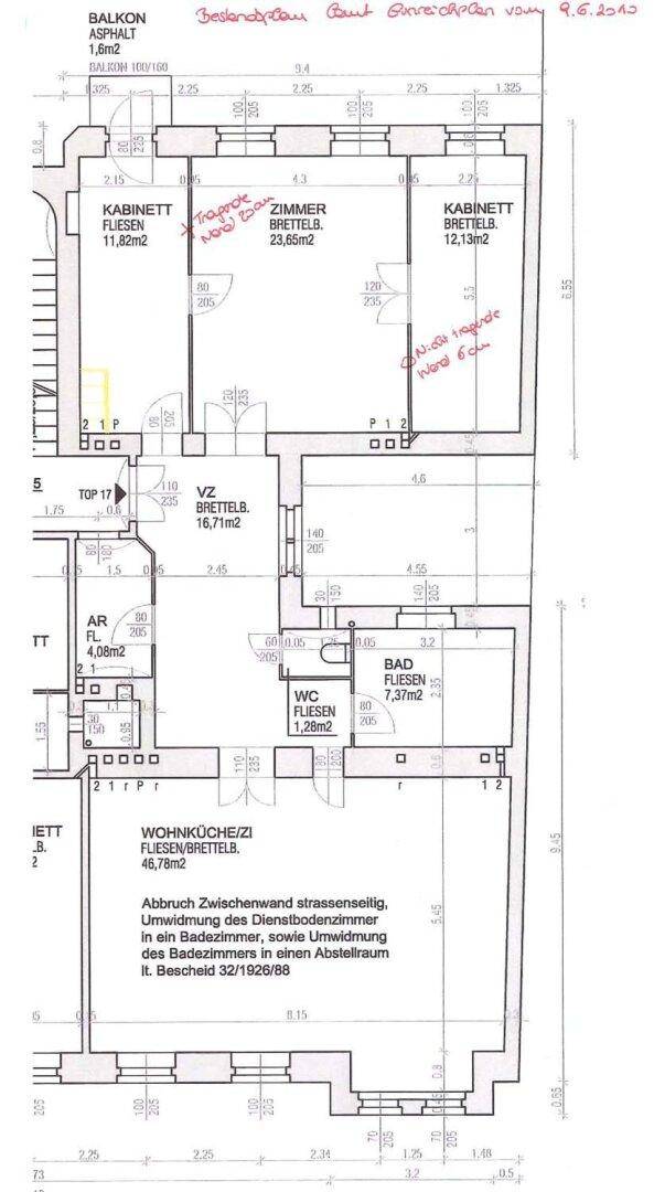
Die Wohnung befindet sich im 1. Stock ohne Lift inkl. Mezzanin (wie 2. Stock) und ist hof- und strassenseitig ausgerichtet - O/W.

Wohnfläche: 123,82 m2 + 1,6 m2 Balkon
Räumlichkeiten derzeit: VR, große Wohnküche (ca. 47 m2 straßenseitig - West), 3 Zimmer (Ausrichtung in den ruhigen Innenhof - OST), Badezimmer mit Dusche und Wanne und Fenster, WC mit Fenster und Waschbecken extra, AR, kleiner Balkon hofseitig

Heizung: Gasetagenheizung mittels Kombitherme

Ausstattung: Holzkastenfenster, Parkett und Flügeltüren

Die Wohnung selbst befindet sich in einem sanierungsbedürftigen Zustand, und bietet Ihnen somit die Möglichkeit Ihre kreativen Ideen und Vorstellungen zu verwirklichen.

Kaufpreis: € 890.000,--

BK brutto: € 201,37 Reparaturrücklage: € 144,68

Energieausweis Gebäude gültig bis: 19.05.2028
Heizwärmebedarf: E 164,64 kWh/m²a
Gesamtenergieeffizienzfaktor: D 2,33

Dieses Objekt wird Ihnen unverbindlich und freibleibend zum Kauf angeboten.
Oben angeführte Angaben basieren auf Informationen und Unterlagen des Eigentümers und sind unsererseits ohne Gewähr.
Als Vermittlungshonorar gelten die allgemeinen Geschäftsbedingungen und die Verordnung für Immobilienmakler des BM für Handel, Gewerbe und Industrie, BGBL. 297/1996. Für den Fall, dass es diesbezüglich zu einem entsprechenden Rechtsgeschäft kommt, verrechnen wir Ihnen eine Vermittlungsprovision von 3 Prozent der Kaufsumme zuzüglich der gesetzlichen Mehrwertsteuer.

Für weitere Informationen bzw. Ihren Besichtigungstermin steht Ihnen unser Herr Musser unter Anbieter kontaktieren oder per Mail unter Anbieter kontaktieren gerne zur Verfügung!


Infrastruktur / Entfernungen

Gesundheit
Arzt <500m
Apotheke <500m
Klinik <1.000m
Krankenhaus <1.500m

Kinder & Schulen
Schule <500m
Kindergarten <500m
Universität <500m
Höhere Schule <500m

Nahversorgung
Supermarkt <500m
Bäckerei <500m
Einkaufszentrum <1.000m

Sonstige
Geldautomat <500m
Bank <500m
Post <1.000m
Polizei <500m

Verkehr
Bus <500m
U-Bahn <1.000m
Straßenbahn <500m
Bahnhof <1.000m
Autobahnanschluss <4.500m

Angaben Entfernung Luftlinie / Quelle: OpenStreetMap

Kann ich mir diese Immobilie leisten?

  • % Nebenkosten
    0 €/ Monat
  • % Zinsen
    0 €/ Monat
  • % Kaufpreis
    0 €/ Monat
*
pro Monat
* errechnete monatliche Kreditrate bei einem angenommenen Effektivzins von 1.6% p.a. Die Berechnung stellt einen unverbindlichen Richtwert dar und ist von der Bonität, Kredithöhe, Laufzeit, Verwendungszweck und Besicherung abhängig.

Kontaktieren

GewerblichTMU-RealitätenHerr Thomas Musser
Nachricht
Anrede
Vorname
Nachname
E-Mail
Telefon
Ich bin Eigentümer:in einer Immobilie
GewerblichTMU-RealitätenHerr Thomas Musser
 Verifiziert von ImmoScout24
Bronze Partner