{"obj_regio1":"003","obj_regio2":"003006","obj_regio3":"003006004","obj_ityp":"0","obj_zipCode":"2500","obj_title":"BADEN-LEESDORF I/1-5, freifinanzierte Mietwohnung mit Kaufoption, BF1_H3_K30_Top 3, 1000/00007411/00001026","obj_picture":"https://pictures.immobilienscout24.de/prod.www.immobilienscout24.at/pictureserver/loadPicture?q=70&id=012.0012000001E83uE-1759808388-7f6c2eef24ed489c8a4be91c8bce7157","obj_exclusiveExpose":"true","obj_cwId":"ADS0017893904","obj_purchasePrice":null,"obj_purchasePriceRange":null,"obj_baseRentRange":"7"}
  • Provisionsfrei
  • Parkplatz
  • Video Live-Besichtigung

BADEN-LEESDORF I/1-5, freifinanzierte Mietwohnung mit Kaufoption, BF1_H3_K30_Top 3, 1000/00007411/00001026

1.308
 
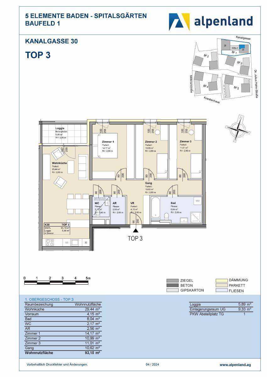
93 m²4 Zimmer
Etage-
Befristung-
Kaution-
WEYRER Nicole
Kanalg./Meixnerstr./Dr.Julius Hahnstr., 2500 Baden

Laufende Kosten

Monatliche Kosten1.308,06 €
Preis pro m²14,04 €
Kalkuliert von ImmoScout24

Einmalige Kosten

Preisinformation:
Finanzierungsbeitrag: 36847,98 €

Hallo neues Zuhause!

Kenne deine Chance mit Plus

Online seit120Gesehen80Kontaktiert40Gemerkt63
Plus locked

Merkmale

Verfügbar ab 2025-12-30
Wohnung
Baujahr 2025, Neuwertig
Wohnfläche 93,15 m²
4 Zimmer
1 Badezimmer, 1 Toilette
Tiefgarage
1 Parkmöglichkeit

Ausstattung

Klimatisiert

Heizung

Heizwärmebedarf (HWB)
20,60 kWh/(m²a)
A
Gesamtenergieeffizienzfaktor (fGEE)
0,630
A++

Beschreibung

BADEN: WOHNEN MIT DEN 5 ELEMENTEN. Im Ortsteil Leesdorf, nördlich des Thermenklinikums liegt dieses Wohnareal mit einem großzügigen und vielfältigen Grün- und Freiflächenangebot. Die Wohnhäuser werden nach ökologischen Kriterien in Niedrigstenergiehausqualität errichtet. Das Wohnquartier umfasst 178 Wohnungen sowie 28 Maisonette-Wohnungen. Die Gebäude sind auf fünf Baufelder aufgeteilt, wobei jedes Baufeld thematisch einem Element (Aqua, Terra, Ignis, Lignum, Metallum) gewidmet ist. Daraus leitet sich auch der Quartiersname „5e Baden – Spitalsgärten“ ab. Neben der Nutzung erneuerbarer Energieträger erfolgt auch eine Bauteilaktivierung der Gebäude zur Temperaturregelung im Sommer und im Winter. Ein durchdachtes Grün- und Freiraumkonzept sowie begrünte Dachflächen tragen zum Erhalt der Biodiversität und einem guten Mikroklima im Quartier bei. Ebenso werden einzelne Fassadenbereiche begrünt. Das Quartier ist oberirdisch autofrei – die Parkflächen befinden sich in der Tiefgarage.
Angaben Gesamtmiete excl. Heizkosten, inkl. Betriebskosten-Akonto, inkl. PWK-Stellplatz. Alle Wohnungsangebote finden Sie auf unserer Homepage: www.alpenland.ag.

Kontaktieren

GewerblichWEYRER Nicole
Nachricht
Anrede
Vorname
Nachname
E-Mail
Telefon
GewerblichWEYRER Nicole
Video Live-Besichtigung
 Verifiziert von ImmoScout24
Silber PartnerImmo Expert *** Award