{"obj_regio1":"009","obj_regio2":"009001","obj_regio3":"009001019","obj_ityp":"0","obj_zipCode":"1190","obj_title":"Traumhafte Neubauwohnungen in absoluter Ruhelage!","obj_picture":"https://pictures.immobilienscout24.de/prod.www.immobilienscout24.at/pictureserver/loadPicture?q=70&id=012.0012000001E3qke-1725537182-1a8ad59bc06040b695a5aca339c5fee5","obj_exclusiveExpose":"true","obj_cwId":"ADS0017891948","obj_purchasePrice":null,"obj_purchasePriceRange":null,"obj_baseRentRange":"7"}
  • Nachhaltig
  • Provisionsfrei
  • Balkon

Traumhafte Neubauwohnungen in absoluter Ruhelage!

1.390
 
61 m²3 ZimmerBalkon 11 m²
Etage1
Befristung10 Jahre
Kaution3 Bruttomonatsmieten
Coricon ImmobilienHerr Kilian Burns
1190 Wien
Nähe Neustift am Walde/Salmannsdorf

Laufende Kosten

Monatliche Kosten1.390 €
Preis pro m²22,72 €
Kalkuliert von ImmoScout24
Gesamtbelastung Netto1.263,41 €
USt. Gesamtbelastung126,59 €
Miete1.044,39 €
USt. Miete104,44 €
Betriebskosten180,43 €
USt. Betriebskosten18,04 €
Sonstige Kosten Netto38,59 €
USt. Sonstige Kosten4,11 €

Einmalige Kosten

Provision: Gemäß Erstauftraggeberprinzip bezahlt der Abgeber die Provision.
ImmoScout24 Tipp: Seit dem 01.07.2023 gilt das Bestellerprinzip. Die Vermittlung von Wohnungen und Häusern zur Miete über Inserate ist seitdem für Suchende provisionsfrei.
Kaution: 3 Bruttomonatsmieten

Hallo neues Zuhause!

Kenne deine Chance mit Plus

Online seit120Gesehen80Kontaktiert40Gemerkt63
Plus locked

Merkmale

befristet auf 10 Jahre
Wohnung
Baujahr 2022, Neubau, Neuwertig, Massivbauweise, Unterkellert, Parkett, Fliesen, 1. Etage
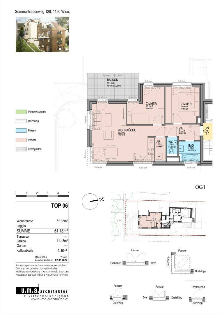
Wohnfläche 61,18 m²
Nutzfläche 61,18 m²
1 Balkon 11,18 m²
3 Zimmer
Kellerfläche 3,45 m², 1 Badezimmer, 1 Toilette, Abstellraum

Ausstattung

Offene Küche, Klimatisiert
Personenaufzug

Heizung

ZentralheizungFußbodenheizungLuftwärmepumpe
Heizwärmebedarf (HWB)
55 kWh/(m²a)
B

Beschreibung

Im wunderschönen Döbling steht eine traumhafte Neubauwohnung mit Balkon in einem nachhaltigen Wohnbauprojekt zur Vermietung. Die Wohnung befindet sich in absoluter Ruhelage und bietet modernen Wohnkomfort in einer grünen Umgebung.

Das Objekt liegt im ersten Stock eines auf einem Hang erbauten Hauses, wodurch die Fenster zur Gartenseite sich so zu sagen im dritten Stock befinden.

Die Raumaufteilung gestaltet sich wie folgt: Ein Vorzimmer, von dem aus alle Zimmer und Nebenräume zentral begehbar sind, zwei Schlafzimmer, ein Wohnzimmer mit offener Küche, ein Bad, ein WC und ein Abstellraum. Der südseitige Balkon (11,18 m²) ist sowohl vom Wohnzimmer als auch von einem der Schlafzimmer zugänglich.

Die Ausstattung der Wohnung ist sehr hochwertig: moderne Bäder mit hochwertigen Fliesen, massive Parkettböden, Fußbodenheizung und vieles mehr – alles nach den neuesten Standards. Die Beheizung und Kühlung erfolgt mittels Luftwärmepumpe.

Die grüne Umgebung eignet sich perfekt für Sportbegeisterte und Naturliebhaber. Der nahegelegene Dorotheer Wald ist nur wenige Gehminuten entfernt.

Die Innenstadt ist in nur 20 Minuten mit dem Auto erreichbar. Die Liegenschaft befindet sich zudem unweit der Bushaltestelle Salmannsdorf (Linie 35A).

Die Vermietung erfolgt befristet auf zehn Jahre mit Option auf Verlängerung.

Der Immobilienmakler erklärt, dass er – entgegen dem in der Immobilienwirtschaft üblichen Geschäftsgebrauch des Doppelmaklers – einseitig nur für den Vermieter tätig ist.


Infrastruktur / Entfernungen

Gesundheit
Arzt <1.500m
Apotheke <1.500m
Klinik <3.000m
Krankenhaus <3.000m

Kinder & Schulen
Schule <500m
Kindergarten <1.000m
Universität <3.500m
Höhere Schule <4.000m

Nahversorgung
Supermarkt <1.500m
Bäckerei <2.000m
Einkaufszentrum <4.000m

Sonstige
Geldautomat <3.000m
Bank <3.000m
Post <1.500m
Polizei <3.000m

Verkehr
Bus <500m
Straßenbahn <2.000m
U-Bahn <4.000m
Bahnhof <4.000m
Autobahnanschluss <6.000m

Angaben Entfernung Luftlinie / Quelle: OpenStreetMap

Kontaktieren

GewerblichCoricon ImmobilienHerr Kilian Burns
Nachricht
Anrede
Vorname
Nachname
E-Mail
Telefon
GewerblichCoricon ImmobilienHerr Kilian Burns
 Verifiziert von ImmoScout24
Silber Partner