{"obj_regio1":"009","obj_regio2":"009001","obj_regio3":"009001023","obj_ityp":"0","obj_zipCode":"1230","obj_title":"DACHGESCHOSSMAISONETTE MIT TRAUMHAFTER WEITSICHT","obj_picture":"https://pictures.immobilienscout24.de/prod.www.immobilienscout24.at/pictureserver/loadPicture?q=70&id=012.0012000001E84EM-1566335768-e215d33964984750b2f5790f80153ecb","obj_exclusiveExpose":"true","obj_cwId":"ADS0017894540","obj_purchasePrice":null,"obj_purchasePriceRange":null,"obj_baseRentRange":"8"}
  • Provisionsfrei
  • Parkplatz
  • Terrassenwohnung
  • Terrasse

DACHGESCHOSSMAISONETTE MIT TRAUMHAFTER WEITSICHT

1.551
 
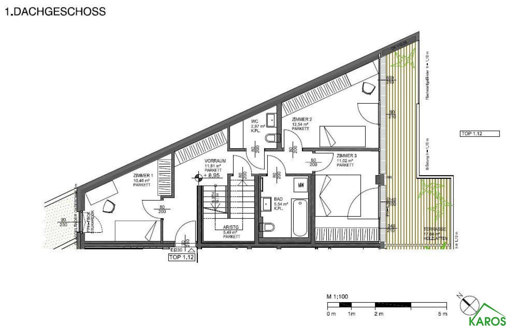
86 m²4 ZimmerTerrasse 45 m²
Etage-
Befristung5 Jahre
Kaution6.300 €
Karos Immobilien GmbH & Co KGFrau Doris Kastl
Breitenfurter Straße 320, 1230 Wien
Breitenfurter Straße 320

Laufende Kosten

Monatliche Kosten1.550,93 €
Preis pro m²18,02 €
Kalkuliert von ImmoScout24
Gesamtbelastung Netto1.409,94 €
USt. Gesamtbelastung140,99 €
Miete1.204,98 €
USt. Miete120,5 €
Betriebskosten204,23 €
USt. Betriebskosten20,42 €
Sonstige Kosten Netto0,73 €
USt. Sonstige Kosten0,07 €

Einmalige Kosten

Provision: Gemäß Erstauftraggeberprinzip bezahlt der Abgeber die Provision.
ImmoScout24 Tipp: Seit dem 01.07.2023 gilt das Bestellerprinzip. Die Vermittlung von Wohnungen und Häusern zur Miete über Inserate ist seitdem für Suchende provisionsfrei.
Kaution: 6.300,00 €

Hallo neues Zuhause!

Kenne deine Chance mit Plus

Online seit120Gesehen80Kontaktiert40Gemerkt63
Plus locked

Merkmale

Verfügbar ab sofort
befristet auf 5 Jahre
Terrassenwohnung
Baujahr 2018, Neubau, Massivbauweise, Schlüsselfertig mit Keller, Unterkellert, Grundstück voll erschlossen, Parkett, Fliesen, Insgesamt 2 Etagen
Wohnfläche 86,07 m²
3 Terrassen 45,13 m² nordseitig, ostseitig, südseitig, westseitig, nordostseitig, nordwestseitig, südostseitig, südwestseitig
nordseitig, ostseitig, südseitig, westseitig, nordostseitig, nordwestseitig, südostseitig, südwestseitig
4 Zimmer
Kellerfläche 2,5 m², 1 Badezimmer, 2 Toiletten, Abstellraum
Tiefgarage
Fahrradabstellraum, 1 Parkmöglichkeit

Ausstattung

Einbauküche, Badewanne, Rolläden
Personenaufzug

Heizung

ZentralheizungFußbodenheizungGasSolar
Heizwärmebedarf (HWB)
41.75 kWh/(m²a)
B
Gesamtenergieeffizienzfaktor (fGEE)
0.78
A

Beschreibung

Zur Vermietung gelangt eine wunderschöne Dachgeschossmaissonette Wohnung mit gleich drei einladenden Freiflächen zum Genießen der Sonnenstunden.

Ihre Vorteile im Überblick:

  • Moderne Einbauküche mit hochwertigen Geräten
  • Terrasse 17,84 m², Terrasse 12,18 m² & Terrasse 15,13 m²
  • intelligente Raumaufteilung und zeitlose Ausstattung 
  • luxuriöse Ausstattung für höchste Ansprüche
  • raumhohe Fenster für ein großzügiges Wohngefühl 
  • Fußbodenheizung in den Wohnräumen und Sanitärbereichen (Direktverrechnung Fa. ISTA)
  • Parkett, Feinsteinzeug 
  • Sicherheit: einbruchssichere Türe + Gegensprechanlage
  • Keller, Fahrrad- & Kinderwagenraum
  • optional Tiefgaragenstellplatz 
  • im Atrium des Wohnhauses befindet sich ein begrünter Innenhof
  • begrünte Dächer für ein optimales Mikroklima
  • Sonnenkollektoren auf dem Dach zur Unterstützung der Warmwasseraufbereitung
  • kulinarische Vielfalt + exzellente Nahversorgung 
  • optimale Anbindung an Nah- und Fernverkehr 
  • sehr günstige Infrastruktur (Ärzte, private & öffentliche Schulen)
  • Erholungs- und Freizeitgebiet Liesingbach

Bei Interesse, weiteren Fragen oder dem Wunsch nach einer Besichtigung, stehe ich Ihnen gerne zur Verfügung.

Wir weisen darauf hin, dass zwischen dem Vermittler und dem zu vermittelnden Dritten ein familiäres oder wirtschaftliches Naheverhältnis besteht.

Der Immobilienmakler erklärt, dass er – entgegen dem in der Immobilienwirtschaft üblichen Geschäftsgebrauch des Doppelmaklers – einseitig nur für den Vermieter tätig ist.

Kontaktieren

GewerblichKaros Immobilien GmbH & Co KGFrau Doris Kastl
Nachricht
Anrede
Vorname
Nachname
E-Mail
Telefon
GewerblichKaros Immobilien GmbH & Co KGFrau Doris Kastl
 Verifiziert von ImmoScout24
Silber Partner