{"obj_regio1":"003","obj_regio2":"003020","obj_regio3":"003020003","obj_ityp":"0","obj_zipCode":"3264","obj_title":"Neu sanierte Wohnung in ruhiger Siedlungslage","obj_picture":"https://pictures.immobilienscout24.de/prod.www.immobilienscout24.at/pictureserver/loadPicture?q=70&id=012.0012000001E84Ec-1759480028-96efdb956e234b1abad6bede01aee93e","obj_exclusiveExpose":"true","obj_cwId":"ADS0017894556","obj_purchasePrice":null,"obj_purchasePriceRange":null,"obj_baseRentRange":"5"}
  • Provisionsfrei
  • Etagenwohnung
  • Teilmöbliert

Neu sanierte Wohnung in ruhiger Siedlungslage

793
 
70 m²3 ZimmerLoggia 21 m²
Etage-
Befristung-
Kaution2.400 €
Immobilien Mörtl - Anton Mörtl OGHerr Harald Bittermann
3264 Gresten

Laufende Kosten

Monatliche Kosten793 €
Preis pro m²11,33 €
Kalkuliert von ImmoScout24
Monatliche Kosten213 €
Miete580 €

Einmalige Kosten

Kaution2.400 €

Hallo neues Zuhause!

Kenne deine Chance mit Plus

Online seit120Gesehen80Kontaktiert40Gemerkt63
Plus locked

Merkmale

Verfügbar ab nach Vereinbarung
Etagenwohnung
Gepflegt, Parkett, Kunststoff, Fliesen
Wohnfläche 70 m²
1 Loggia 21 m²
Wintergarten
3 Zimmer
1 Badezimmer, 1 Toilette, Abstellraum

Ausstattung

Teilmöbliert

Heizung

ZentralheizungFußbodenheizungFernwärme
Heizwärmebedarf (HWB)
119. kWh/(m²a)
D
Gesamtenergieeffizienzfaktor (fGEE)
1.960
D

Beschreibung

Neu sanierte Wohnung in ruhiger Siedlungslage zu vermieten

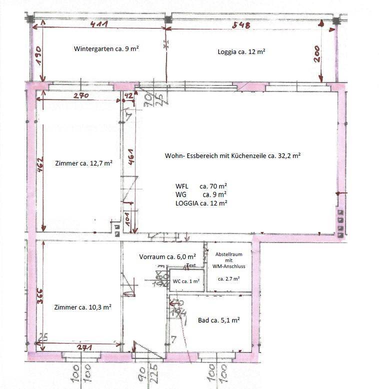
Mit ca. 70 m² Wohnraum plus ca. 9 m² Wintergarten und einer ca. 12 m² nach Süden ausgerichteter Loggia hat die Wohnung alles um sich wohl zu fühlen.

Das zentral gelegene Wohn-/Esszimmer mit Küchenzeile ist wie die beiden zusätzlichen Zimmer mit einem Holzboden ausgestattet. Das neu errichtetet Bad besticht mit seiner Fußbodenheizung, Handtuchheizkörper und modernen Fliesen sowie Spanndecke. Vorraum sowie Abstellraum sind mit einem pflegeleichten Vinylboden belegt worden, wobei im Abstellraum auch ein Waschmaschinenanschluss vorhanden ist.

Raumkonzept:
2 Zimmer, Wohn-/ Esszimmer mit Küchenzeile, Bad, WC, Vorraum, Abstellraum, Wintergarten, Loggia

Monatsmiete € 580,- und Vorauszahlung Betriebskosten € 213,- / Gesamt inkl. BK-Vorauszahlung € 793,-
Kaution € 2.400,-

Öffentliche Parkplätze für KFZ sind in unmittelbarer Umgebung ausreichend vorhanden.

Besichtigung nach Vereinbarung

Provisionsfrei für die Mieterseite! Wir sind ausschließlich für den Vermieter als Erstauftraggeber tätig, daher ist der/die Mietinteressent:in nicht provisionspflichtig.

Für weitere Informationen und Besichtigungen steht Ihnen Herr Mag.(FH) Harald Bittermann gerne unter Anbieter kontaktieren zur Verfügung.

Wünschen Sie die Zusendung detaillierter Unterlagen zu dieser Immobilie benötigen wir bitte Ihre vollständigen Kontaktdaten. Ihre Daten werden nicht an Dritte weitergegeben und nach den Bestimmungen des Datenschutzgesetzes streng vertraulich behandelt.

Finden Sie uns unter: www.immobilien-moertl.at,
https://www.facebook.com/ImmobilienMoertl/ und
https://www.instagram.com/immobilien.moertl/
IMMOBILIEN MÖRTL - Wir verkaufen Ihre Immobilie in Wien und NÖ!
https://www.immobilien-moertl.at/1182743/Immobilienverkauf
Angaben gemäß gesetzlichem Erfordernis:

Heizwärmebedarf: 119.2 kWh/(m²a)
Klasse Heizwärmebedarf: D
Faktor Gesamtenergieeffizienz: 1.96
Klasse Faktor Gesamtenergieeffizienz: D

Kontaktieren

GewerblichImmobilien Mörtl - Anton Mörtl OGHerr Harald Bittermann
Nachricht
Anrede
Vorname
Nachname
E-Mail
Telefon
GewerblichImmobilien Mörtl - Anton Mörtl OGHerr Harald Bittermann
 Verifiziert von ImmoScout24
Gold Partner