{"obj_regio1":"006","obj_regio2":"006003","obj_regio3":"006003050","obj_ityp":"0","obj_zipCode":"8510","obj_title":"PROVISIONSFREI - Lichtdurchflutete 2-Zimmer-Wohnung mit Balkon - geförderte Miete ODER geförderte Miete mit Kaufoption - 2 Zimmer ","obj_picture":"https://pictures.immobilienscout24.de/prod.www.immobilienscout24.at/pictureserver/loadPicture?q=70&id=012.0012000001E83jk-11d61a8b2f83470abf88db5dde089ed6","obj_exclusiveExpose":"true","obj_cwId":"ADS0017893584","obj_purchasePrice":null,"obj_purchasePriceRange":null,"obj_baseRentRange":"3"}
  • Provisionsfrei
  • Parkplatz
  • Balkon

PROVISIONSFREI - Lichtdurchflutete 2-Zimmer-Wohnung mit Balkon - geförderte Miete ODER geförderte Miete mit Kaufoption - 2 Zimmer

481
 
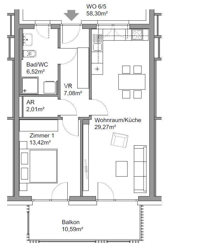
58 m²2 ZimmerBalkon 11 m²
Etage1
Befristung-
Kaution2000 Eur
ÖWG WohnbauMichaela Fuchs
Hubert-Hölzl-Gasse 6/5, 8510 Stainz

Laufende Kosten

Miete481 €
Preis pro m²8,25 €
Kalkuliert von ImmoScout24

Einmalige Kosten

Kaution: 2000 Eur

Hallo neues Zuhause!

Kenne deine Chance mit Plus

Online seit120Gesehen80Kontaktiert40Gemerkt63
Plus locked

Merkmale

Verfügbar ab 01.01.2026
Wohnung
Baujahr 2019, 1. Etage
Wohnfläche 58,3 m²
1 Balkon 10,5 m²
2 Zimmer
1 Parkmöglichkeit

Heizung

FernwärmeFernwärme
Heizwärmebedarf (HWB)
29,1 kWh/(m²a)
B

Beschreibung

Diese wunderschöne 2-Zimmer Wohnung befindet sich im 1. Obergeschoss und verfügt über einen Wohn-/Ess-/Kochbereich, 1 Schlafzimmer, Badezimmer mit WC mit Fenster sowie über einen Abstellraum und einen Vorraum. Zusätzlich bietet ein Balkon (10,5 m²) viel Platz für Ihren individuellen Freiraum und lädt zum Verweilen ein. Weiters verfügt die Wohnung über ein Kellerabteil, welches zusätzlichen Stauraum bietet, und auch ein überdachter Pkw-Abstellplatz ist bereits in der Miete inkludiert.

Bei dieser Wohnung haben Sie die Wahl zwischen reiner Miete (ohne Kaufoption) oder Miete mit Kaufoption.

Bei der Variante "Reine Miete" fallen die folgenden Kosten an:

• Monatliche Miete in EUR: 524,00

• Kaution in EUR: 2.000,00

Bei der Variante "Miete mit Kaufoption" fallen die folgenden Kosten an:

• Monatliche Miete in EUR: 481,00

• Grundstückskosten in EUR: 13.377,00
 (Rückerstattung bei Auszug! -> siehe Detailbeschreibung unten)

Hier gerne nähere Informationen zum Modell "Miete mit Kaufoption":
Aufgrund der Landesförderung bei der Variante Miete mit Kaufoption ist es möglich, eine geminderte Miete anzubieten. Diese Reduktion ist durch die Zahlung einer höheren Kaution (=Grundstückskosten bei Fixierung des Vertrages) möglich. Bei Bezug der Wohnung wird kostenlos ein unbefristeter Mietvertrag ausgestellt. Unter Einhaltung einer dreimonatigen Frist kann das Mietverhältnis Ihrerseits jederzeit gekündigt werden.
Nach ordnungsgemäßer Rückgabe der Wohnung wird die geleistete Kaution bzw. die geleisteten Grundstückskosten - unter Abzug einer derzeit 1%igen Verwohnung jährlich - vollständig refundiert!
Nach 5 Jahren haben Sie die Möglichkeit, die Wohnung zu kaufen. Sollten Sie dies nicht wünschen, können Sie weiterhin wie gewohnt zur (reduzierten) Miete in Ihrer Wohnung wohnen bleiben.

Es handelt sich um eine geförderte Wohnung. Das bedeutet, dass der Mieter/die Mieterin bestimmte Voraussetzungen erfüllen muss:

1) Österreichische Staatsbürgerschaft, EU-Bürger oder diesen gleichgestellte Personen bzw. Aufenthalt länger als 5 Jahre in Österreich mit aufrechter Arbeitsbewilligung.

2) Einkommensgrenzen: (JahresNETTOeinkommen)
1 Person: EUR 49.600
2 Personen: EUR 74.400
Jede weitere Person: + EUR 6.570

3) Die geförderte Wohnung muss als Hauptwohnsitz bewohnt werden.

Beschreibung der monatlichen Kosten
481,00 Euro
Miete (zinssatzabhängig), inkl. befristetem Wohnbonus, inkl. Betriebskosten, Lift, aconto Heizung, Pkw-Abstellplatz überdacht, exkl. Wohnungsstrom (Zinssatzänderungen sowie Veränderungen der Zuschuss-Leistung des Landes Steiermark beeinflussen den monatlichen Mietzins)

Tierhaltung
Wir weisen darauf hin, dass pro Wohnung ein Hund erlaubt ist (keine Listenhunde).

Einfach mehr für Sie - Exklusive Kooperationen
Ganz nach unserem Motto „Einfach mehr vom Leben“ haben wir für Sie exklusive Kooperationen mit IKEA Graz und XXXLutz, die Ihnen den Start in Ihrer Wohnung noch schöner machen: Rabatt-, Liefer- und Restaurant-Gutscheine beider Möbelhäuser zur Einrichtung Ihrer neuen Wohnung.
Die Gutscheine erhalten Sie im Zuge der Wohnungsübergabe von uns.

Unser vollständiges Wohnungsangebot finden Sie unter www.oewg.at/immobiliensuche.

Dokumente

Kontaktieren

GewerblichÖWG WohnbauMichaela Fuchs
Nachricht
Anrede
Vorname
Nachname
E-Mail
Telefon
GewerblichÖWG WohnbauMichaela Fuchs
 Verifiziert von ImmoScout24
Silber Partner