{"obj_regio1":"006","obj_regio2":"006001","obj_regio3":"006001003","obj_ityp":"0","obj_zipCode":"8020","obj_title":"Garconniere mit Terrasse in modernem Neubau in den Reininghausgründen ","obj_picture":"https://pictures.immobilienscout24.de/prod.www.immobilienscout24.at/pictureserver/loadPicture?q=70&id=012.0012000001E83jV-1759406995-539f922d10be4d3786ad70a1c5b516af","obj_exclusiveExpose":"false","obj_cwId":null,"obj_purchasePrice":null,"obj_purchasePriceRange":null,"obj_baseRentRange":"3"}
  • Provisionsfrei
  • Parkplatz
  • Etagenwohnung
  • Terrasse

Garconniere mit Terrasse in modernem Neubau in den Reininghausgründen

461
 
33 m²1 ZimmerTerrasse
Etage1
Befristung-
Kaution-
BE-WO Wohnbau und Grundstücksverwertungsgesellschaft mbHMarkus Lackner
Immobilie hat viele AnfragenMit Plus stichst du positiv hervor!
Unesco Esplanade 4, 8020 Graz

Laufende Kosten

Monatliche Kosten461,19 €
Preis pro m²14,12 €
Kalkuliert von ImmoScout24
Miete419,26 €
Hauptmietzins Netto360,45 €
Betriebskosten Netto58,81 €
Alle Steuern41,93 €

Einmalige Kosten

Provision1.383,57 €

Hallo neues Zuhause!

Kenne deine Chance mit Plus

Online seit120Gesehen80Kontaktiert40Gemerkt63
Plus locked

Merkmale

In Bau
Etagenwohnung
Neubau, Unterkellert, Parkett, 1. Etage
Wohnfläche 32,67 m²
Nutzfläche 32,67 m²
1 Terrasse
Terrasse
1 Zimmer
Kellerfläche 3,05 m², 1 Badezimmer

Ausstattung

Dusche
Personenaufzug

Heizung

FußbodenheizungFernwärmeFernwärme
Heizwärmebedarf (HWB)
20 kWh/(m²a)
A
Gesamtenergieeffizienzfaktor (fGEE)
0
A++

Beschreibung

WOHNEN AN DEN ARKADEN: modernes, leistbares Wohnen mitten in den Reininghaus-Gründen!

Das moderne Wohngebäude "An den Arkaden" liegt direkt an der Esplanade, der zentralen Fußgängerzone in den Reininghaus-Gründen. Das 4- bis 9-stöckige Wohngebäude zeichnet sich durch moderne Architektur mit begrünten Dächern und großzügigen allgemeinen Freiflächen aus. Dem Wohngebäude steht eine Tiefgarage zur Verfügung, in der nach Bedarf Stellplätze angemietet werden können.

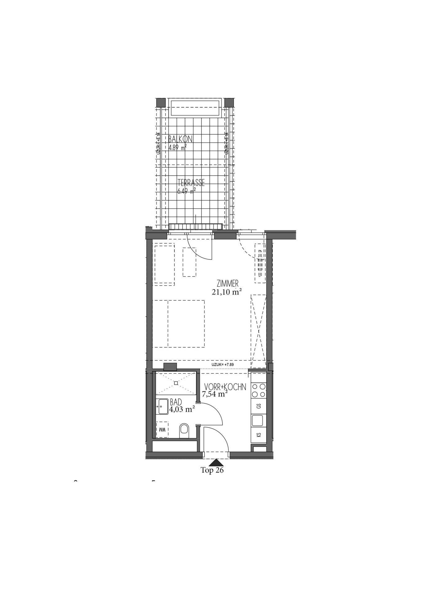
Die Neubau Wohnung Top 26 liegt im 1. Obergeschoss und ist bequem per Lift erreichbar. Sie verfügt über ein ca. 21 m2 großes Zimmer, einen Vorraum inkl. voll eingerichteter Küchenzeile (mit AEG Küchengeräten) sowie ein Bad mit Walk-In Dusche, Sprossenheizkörper, Waschmaschinenanschluss und WC. Zur Wohnung gehört eine ca. 12 m2 großer östliche Terrasse die vom Zimmer aus begehbar ist.

Die Wohnung wird mittels Fernwärme über eine Fußbodenheizung beheizt.

Ein Kellerabteil, das für zusätzlichen Stauraum sorgt, ist der Wohnung zugeordnet und im Mietpreis inbegriffen, ein Tiefgaragen-Stellplatz in der hauseigenen Tiefgarage kann optional angemietet werden. Des weiteren stehen den Bewohnern eine Vielzahl an Fahrrad-Abstellplätzen zur Verfügung.

Die Gesamtmiete setzt sich zusammen aus Hauptmietzins, Akontierung für Betriebskosten und Umsatzsteuer.

Die Kaution beträgt 3 Brutto-Monatsmieten.

Bezug ab 01.01.2026

DAS BESONDERE AUF EINEN BLICK:

  • qualitativ hochwertige Neubauwohnung
  • inkl. mit AEG Marken Geräten ausgestattete Küchenzeile
  • hochwertige Sanitärausstattung: Marken Laufen, Geberit, Hans-Grohe
  • Parkettböden
  • 3-fach verglaste Fenster-Elemente
  • Fußbodenheizung (Fernwärme)
  • großzügige allgemeine Freiflächen
  • Balkone und Terrassen mit eigenen Wasseranschlüssen
  • optimale Infrastruktur
  • inkl. Kellerabteilen, Lift, Fahrradabstellplätzen
  • Tiefgarage, in der TG-Plätze optional angemietet werden können
  • Straßenbahnhaltestelle der Linie 4 in unmittelbarer Nähe
  • Bushaltestelle der Linien 65, 66 in unmittelbarer Nähe
  • provisionsfreie Vermietung

Kontaktieren

GewerblichBE-WO Wohnbau und Grundstücksverwertungsgesellschaft mbHMarkus Lackner
Nachricht
Anrede
Vorname
Nachname
E-Mail
Telefon
GewerblichBE-WO Wohnbau und Grundstücksverwertungsgesellschaft mbHMarkus Lackner
 Verifiziert von ImmoScout24
Bronze Partner