{"obj_regio1":"009","obj_regio2":"009001","obj_regio3":"009001021","obj_ityp":"","obj_zipCode":"1210","obj_title":"Terrassentraum als Investment bei der Alten Donau","obj_picture":"https://pictures.immobilienscout24.de/prod.www.immobilienscout24.at/pictureserver/loadPicture?q=70&id=012.0015I00000KmKci-08f2d312234a413f887c7a644b557832","obj_exclusiveExpose":"false","obj_cwId":null,"obj_purchasePrice":420427,"obj_purchasePriceRange":"8","obj_baseRentRange":null}
  • Terrasse

Terrassentraum als Investment bei der Alten Donau

420.427
 
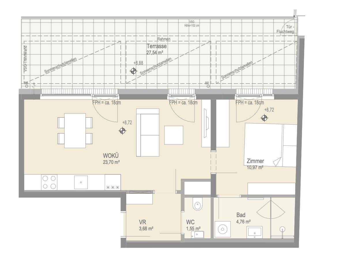
45 m²2 ZimmerTerrasse
Michael Leber Immobilien GmbH & Co. KGHerr Michael Leber
1210 Wien, Floridsdorf
FLOW ist der optimale Ort für Bewohner, welche die Nähe zur Natur, zum Wasser und zu zahlreichen Freizeitmöglichkeiten vor der Haustüre schätzen, ohne dabei auf die Annehmlichkeiten einer Großstadt verzichten zu wollen.

Egal ob Laufen, Radfahren, Schwimmen, Baden oder gemütliches Flanieren - die unmittelbare Nähe zur Alten Donau bietet vielfältige Möglichkeiten zur aktiven Erholung.
Raus aus dem Alltag, hinein ins Urlaubsfeeling, das für Sie zum Alltag werden kann.

Geschäfte des täglichen Bedarfs sind fußläufig zu erreichen.

Einmalige Kosten

Kaufpreis420.427 €
Kaufpreis pro m²9.413,95 €
Kalkuliert von ImmoScout24
Provision inkl. USt.: 3% vom Kaufpreis zzgl. 20% USt

Hallo neues Zuhause!

Kenne deine Chance mit Plus

Online seit120Gesehen80Kontaktiert40Gemerkt63
Plus locked

Merkmale

Verfügbar ab sofort
Wohnhaus
Baujahr 2024, Erstbezug, Parkett, 3. Etage, Insgesamt 4 Etagen
Wohnfläche 44,66 m²
1 Terrasse
Terrasse
2 Zimmer
1 Schlafzimmer, 1 Badezimmer, 1 Toilette

Ausstattung

Personenaufzug
Die Ausstattung dieser bereits fertiggestellten Wohnungen entspricht sowohl optisch, als auch technisch den höchsten Ansprüchen. Die hohe Qualität zeigt sich schon beim Betreten des Stiegenhauses und zieht sich wie ein roter Faden durch die gesamte Wohnanlage.

Eine sehr energieeffiziente Wasser-Wärmepumpe, vielfältige Kühlmöglichkeiten in allen Geschoßen und eine Vorbereitung von E-Ladestationen bei sämtlichen Plätzen in der Tiefgarage sind nur einige der Highlights, welche dieses Projekt sehr positiv vom Mitbewerb hervorheben.

Eine detaillierte Einsicht in die hohe Qualität erhalten Sie durch die Bau- und Ausstattungsbeschreibung, oder im Rahmen einer Besichtigung der bereits fertiggestellten Wohnungen vor Ort.

Heizung

Luftwärmepumpe
Heizwärmebedarf (HWB)
27.00 kWh/(m²a)
B
Gesamtenergieeffizienzfaktor (fGEE)
0.71
A

Beschreibung

In unmittelbarer Nähe zum Naherholungsgebiet Alte Donau, gelangen beim Projekt FLOW bereits fertiggestellte Eigentumswohnungen und Townhouses in den Verkauf.

Gelegen in der Floridusgasse Nr. 35 und Nr. 37, ist bei den 1- bis 3-Zimmerwohnungen mit Größen zwischen ca. 34 qm und ca. 101 qm für jeden Interessenten das Passende dabei.

Abhängig von Ihren Bedürfnissen, Präferenzen und finanziellen Mitteln, können Sie bei FLOW zwischen Wohnungen auf Eigengrund (Flordiusgasse Nr. 35) und Wohnungen auf Baurechtsgrund (Floridusgasse Nr. 37) auswählen.

Die gegenständliche Terrassenwohnung Top 35-17 befindet sich auf Eigengrund.

Der angegebene Preis ist als Preis für Anleger zu verstehen und wird zzgl. 20% USt verrechnet.

Das Projekt wurde 2024 fertiggestellt und ist daher sofort beziehbar. Dadurch haben Sie als Investor das höchste Maß an Sicherheit und die Möglichkeit, sehr zeitnahe Mieteinnahmen zu erzielen.
Egal ob Eigentum oder Baurecht, egal ob Sonnenanbeter oder kühle Ruhelage, egal ob Gartenwohnung, Townhouse, Regelgeschoß oder Dachgeschoß - FLOW bietet für alle Bedürfnisse die passende Wohnung.

Garagenplätze in der hauseigenen Tiefgarage können für € 30.000,- erworben werden.

Der Ordnung halber wird festgehalten, dass bei einem Ankauf eine Provision in Höhe von 3% zzgl. 20% USt in Rechnung gestellt wird.

Machen Sie sich selbst ein Bild von diesem tollen Projekt und vereinbaren Sie einen Besichtigungstermin unter Anbieter kontaktieren bzw. Anbieter kontaktieren.

Kann ich mir diese Immobilie leisten?

  • % Nebenkosten
    0 €/ Monat
  • % Zinsen
    0 €/ Monat
  • % Kaufpreis
    0 €/ Monat
*
pro Monat
* errechnete monatliche Kreditrate bei einem angenommenen Effektivzins von 1.6% p.a. Die Berechnung stellt einen unverbindlichen Richtwert dar und ist von der Bonität, Kredithöhe, Laufzeit, Verwendungszweck und Besicherung abhängig.

Kontaktieren

GewerblichMichael Leber Immobilien GmbH & Co. KGHerr Michael Leber
Nachricht
Anrede
Vorname
Nachname
E-Mail
Telefon
Ich bin Eigentümer:in einer Immobilie
GewerblichMichael Leber Immobilien GmbH & Co. KGHerr Michael Leber
 Verifiziert von ImmoScout24
Silber Partner