{"obj_regio1":"004","obj_regio2":"004001","obj_regio3":"004001003","obj_ityp":"0","obj_zipCode":"4020","obj_title":"HOCHWERTIGE MAISONETTEWOHNUNG MIT TERRASSE","obj_picture":"https://pictures.immobilienscout24.de/prod.www.immobilienscout24.at/pictureserver/loadPicture?q=70&id=012.0012000001E83V8-d55fea1d11f2465f9dd953acac05bafd","obj_exclusiveExpose":"false","obj_cwId":null,"obj_purchasePrice":null,"obj_purchasePriceRange":null,"obj_baseRentRange":"6"}
  • Provisionsfrei
  • Terrasse
  • Video Live-Besichtigung

HOCHWERTIGE MAISONETTEWOHNUNG MIT TERRASSE

964
 
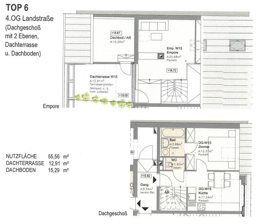
55 m²2 ZimmerTerrasse
Etage4
Befristung-
Kaution3.600 €
Just ImmobilienHerr Roman Affenzeller
4020 Linz

Laufende Kosten

Monatliche Kosten964,28 €
Preis pro m²13,36 €
Gesamtbelastung Netto876,62 €
USt. Gesamtbelastung87,66 €
Miete735,2 €
USt. Miete73,52 €
Miete808,72 €
Betriebskosten141,42 €
USt. Betriebskosten14,14 €
USt. nicht enthalten

Einmalige Kosten

Kaution3.600 €

Hallo neues Zuhause!

Kenne deine Chance mit Plus

Online seit120Gesehen80Kontaktiert40Gemerkt63
Plus locked

Merkmale

Verfügbar ab 01.11.2025
Wohnung
Baujahr 2018, Neubau, Neuwertig, Parkett, Fliesen, 4. Etage, Insgesamt 2 Etagen
Wohnfläche 55 m²
1 Terrasse
Terrasse
2 Zimmer
Abstellraum

Ausstattung

Dusche, Klimatisiert

Heizung

FußbodenheizungFernwärme
Heizwärmebedarf (HWB)
49.2 kWh/(m²a)
B

Beschreibung

Diese moderne, hochwertige Maisonettewohnung, befindet sich im absoluten Zentrum von Linz.Auf der ersten Ebene im Vorraum angekommen, gelangen Sie in die Essküche. Auf der selben Ebene befindet sich ein kompakter intimer Bereich mit Schlaf- und Badezimmer sowie ein extra WC. Über die interne Treppe im Vorraum gelangen Sie auf die sonnige Empore, welche sich ideal als Wohnzimmer einrichten lässt. Vom Wohnzimmer aus gelangen Sie auf die Dachterrasse, die einen Zugang zum Dachboden aufweist . Auf Anfrage übersenden wir Ihnen selbstverständlich den Grundrissplan der Wohnung.Die Ausstattung umfasst neben Parkett- und Fliesenböden, einer zentralen Fußbodenheizung mittels Fernwärme auch eine Klimaanlage für die Sommermonate. Die hochwertige DAN-Küche mit Miele Geräten sowie die Badezimmergrundausstattung wird von Eigentümerseite zur Verfügung gestellt.Ein eigenes Kellerabteil bietet genügend Stauraum. Die Allgemeinfläche bietet Platz für Fahrräder samt Aufladestation für E-Bikes sowie einen überdachten Müllraum.Weiters weisen wir darauf hin, dass die Wohnung mit Zuhilfenahme von öffentlichen Förderungen des Land OÖ erstellt wurde und somit nur Hauptwohnsitz unter Berücksichtigung der Einkommensgrenzen vergeben wird.

Dokumente

Kontaktieren

GewerblichJust ImmobilienHerr Roman Affenzeller
Nachricht
Anrede
Vorname
Nachname
E-Mail
Telefon
GewerblichJust ImmobilienHerr Roman Affenzeller
Video Live-Besichtigung
 Verifiziert von ImmoScout24
Premium Partner 2023 Award