{"obj_regio1":"009","obj_regio2":"009001","obj_regio3":"009001007","obj_ityp":"7","obj_zipCode":"1070","obj_title":"Belagsfertiges Ecklokal mit 4 Eingängen - gegenüber U6 Thaliastraße!","obj_picture":"https://pictures.immobilienscout24.de/prod.www.immobilienscout24.at/pictureserver/loadPicture?q=70&id=012.0012000001E83fD-1759164734-0700b0c5effa43c29241f7722e4b9ed8","obj_exclusiveExpose":"false","obj_cwId":null,"obj_purchasePrice":null,"obj_purchasePriceRange":null,"obj_baseRentRange":"8"}
  • Altbau

Belagsfertiges Ecklokal mit 4 Eingängen - gegenüber U6 Thaliastraße!

1.928
 
250 m²6 Zimmer
ADVANTA – Immobilienvermittlungs GmbHHerr Manuel Plachner
Lerchenfelder Gürtel 32, 1070 Wien

Laufende Kosten

Miete1.928,3 €
Preis pro m²7,71 €
Kalkuliert von ImmoScout24
Gesamtbelastung Netto2.500 €
USt. Gesamtbelastung500 €
USt. Miete385,66 €
Betriebskosten571,7 €
USt. Betriebskosten114,34 €

Einmalige Kosten

Provision: 3 Bruttomonatsmieten zzgl. 20% USt.
Kaution: 3 Bruttomonatsmieten

Hallo neues Zuhause!

Kenne deine Chance mit Plus

Online seit120Gesehen80Kontaktiert40Gemerkt63
Plus locked

Merkmale

Verfügbar ab Nach Absprache
unbefristet
Büro
Baujahr 1900, Altbau, Renovierungsbedürftig, Massivbauweise, Parkett, Estrich, Erdgeschoss
Nutzfläche 250 m²
6 Zimmer

Heizung

EtagenheizungGas
Heizwärmebedarf (HWB)
191 kWh/(m²a)
E
Gesamtenergieeffizienzfaktor (fGEE)
1.56
C

Beschreibung

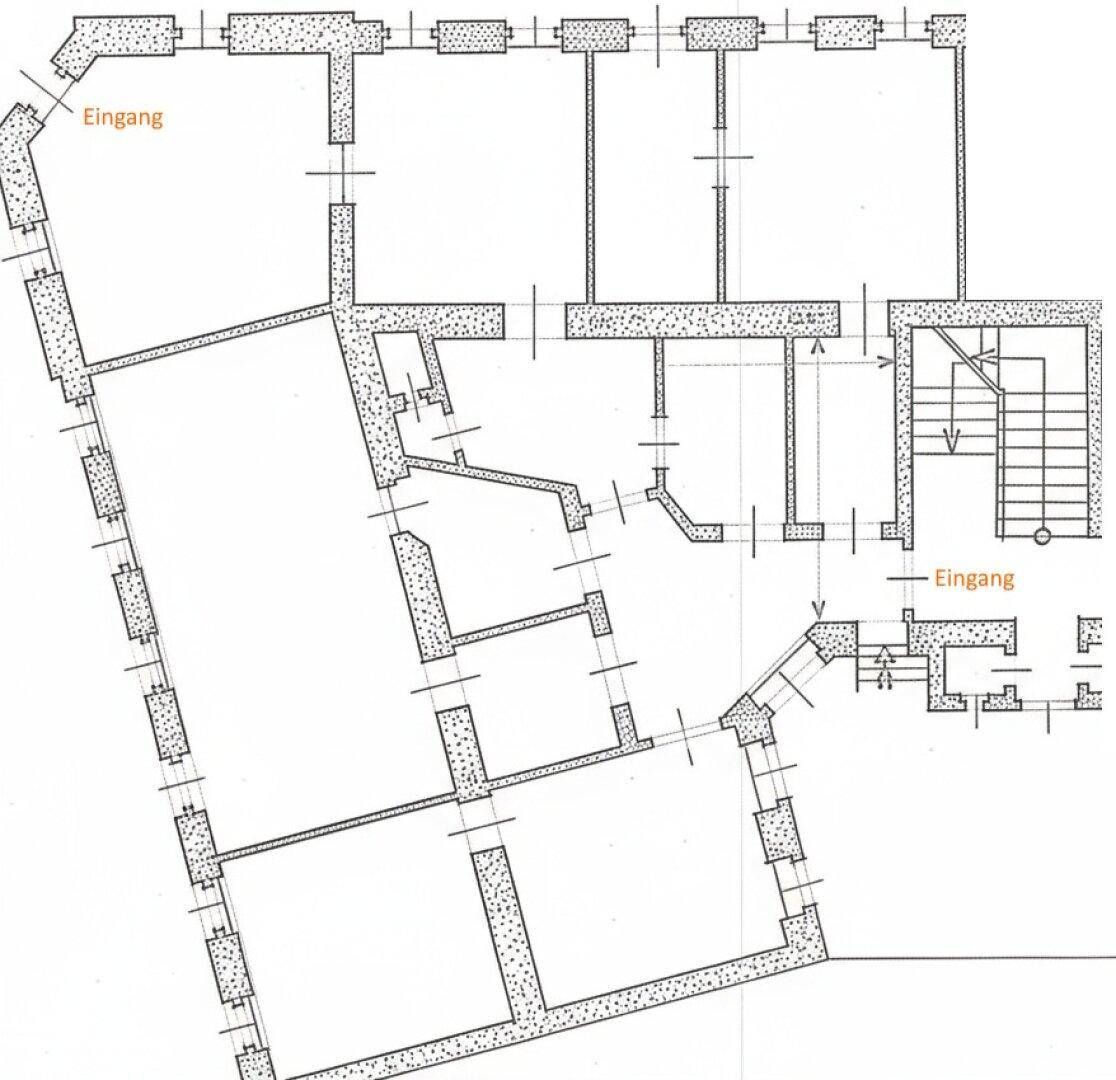
Gewerbefläche vis-à-vis U6 Thaliastraße – 250 m² EG  (branchenfrei)Key Facts
  • Erdgeschoß eines klassischen Bestandsgebäudes

  • ca. 250 m² zusammenhängende Nutzfläche (lt. Plan)

  • Zwei Haupt-Eingänge (Straße & Hausflur – siehe Grundriss // 4 Eingänge möglich)

  • Branchenfreie Miete – vielseitig nutzbar

  • Übergabe belagsfertig nach Absprache mit dem Eigentümer

  • Top-ÖV-Lage: direkt gegenüber U6 „Thaliastraße“

Nähere Details erhalten Sie gerne auf Anfrage.

Wir weisen darauf hin, dass zwischen dem Vermittler und dem zu vermittelnden Dritten ein familiäres oder wirtschaftliches Naheverhältnis besteht.

Herr Manuel Plachner, MSc MRICS, Mobil: , Mail: Anbieter kontaktieren, steht für ein persönliches Gespräch sowie für einen Besichtigungstermin gerne zur Verfügung.


Infrastruktur / Entfernungen

Gesundheit
Arzt <150m
Apotheke <125m
Klinik <450m
Krankenhaus <1.075m

Kinder & Schulen
Schule <275m
Kindergarten <375m
Universität <825m
Höhere Schule <450m

Nahversorgung
Supermarkt <175m
Bäckerei <100m
Einkaufszentrum <500m

Sonstige
Geldautomat <200m
Bank <350m
Post <475m
Polizei <350m

Verkehr
Bus <50m
U-Bahn <50m
Straßenbahn <100m
Bahnhof <50m
Autobahnanschluss <4.000m

Angaben Entfernung Luftlinie / Quelle: OpenStreetMap

Kontaktieren

GewerblichADVANTA – Immobilienvermittlungs GmbHHerr Manuel Plachner
Nachricht
Anrede
Vorname
Nachname
E-Mail
Telefon
GewerblichADVANTA – Immobilienvermittlungs GmbHHerr Manuel Plachner
 Verifiziert von ImmoScout24
Bronze Partner