{"obj_regio1":"005","obj_regio2":"005001","obj_regio3":"005001003","obj_ityp":"3","obj_zipCode":"5020","obj_title":"Exklusive Doppelhaushälfte in Leopoldskron","obj_picture":"https://pictures.immobilienscout24.de/prod.www.immobilienscout24.at/pictureserver/loadPicture?q=70&id=012.0012000001E83yc-1758528865-4f2a141d183947689b47a11e56c7b59f","obj_exclusiveExpose":"false","obj_cwId":null,"obj_purchasePrice":1249000,"obj_purchasePriceRange":"11","obj_baseRentRange":null}
  • Doppelhaus
  • Balkon
  • Terrasse
  • Garten

Exklusive Doppelhaushälfte in Leopoldskron

1.249.000
 
114 m²4 ZimmerBalkonGartenTerrasse 65 m²
Preis / m²10.956,14 €
Grundstücksfläche-
Baujahr2026
Raiffeisen Immobilien Salzburg eGenFrau Jacqueline Mörtl
5020 Salzburg

Der Stadtteil Leopoldskron zählt zu den besonders begehrten Wohnlagen in Salzburg und vereint naturnahe Lebensqualität mit städtischer Infrastruktur. Gelegen im Süden der Stadt, nahe dem Leopoldskroner Weiher und dem malerischen Schloss Leopoldskron, bietet der Stadtteil eine ruhige, grüne Umgebung mit hoher Lebensqualität.

Leopoldskron besticht durch seine weitläufigen Grünflächen, gepflegten Wohnsiedlungen und die unmittelbare Nähe zu einigen der schönsten Naherholungsgebiete Salzburgs. Spaziergänge, Joggingrouten entlang idyllischer Wege prägen das Freizeitbild der Bewohner.

Trotz dieser naturnahen Lage ist die historische Altstadt Salzburgs in wenigen Minuten mit dem Fahrrad oder öffentlichen Verkehrsmitteln erreichbar.

Das Wohngefühl in Leopoldskron ist geprägt von einer entspannten, ländlich wirkenden Atmosphäre. Architektonisch zeigt sich der Stadtteil vielfältig: von traditionellen Einfamilienhäusern über moderne Wohnanlagen bis hin zu stilvollen Villen. Zugleich ist für eine hervorragende Infrastruktur gesorgt – Schulen, Kindergärten, Einkaufsmöglichkeiten sowie medizinische Versorgung befinden sich in unmittelbarer Nähe.

Durch diese Kombination aus ruhigem, grünem Umfeld und der Nähe zur Stadt ist Leopoldskron eine der begehrtesten Wohnadressen in Salzburg – ideal für alle, die naturnah und dennoch stadtnah leben möchten.

Einmalige Kosten

Kaufpreis1.249.000 €
Kaufpreis pro m²10.956,14 €
Kalkuliert von ImmoScout24
Provision: 3% des Kaufpreises plus 20% USt.
Provision44.964 €
Provision Netto37.470 €
USt. Provision7.494 €

Hallo neues Zuhause!

Kenne deine Chance mit Plus

Online seit120Gesehen80Kontaktiert40Gemerkt63
Plus locked

Merkmale

Verfügbar ab Nach Vereinbarung
Doppelhaushälfte
Baujahr 2026, Kabelkanäle, Unterkellert, Insgesamt 3 Etagen
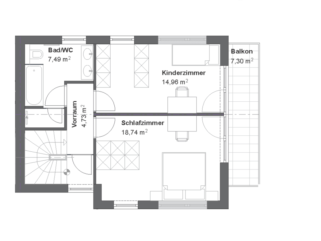
Wohnfläche 114 m²
Gartenfläche 179 m²
1 Terrasse 65 m²
1 Balkon 7 m², Garten
4 Zimmer
Kellerfläche 20 m², 3 Schlafzimmer, 2 Badezimmer, 3 Toiletten, Abstellraum

Ausstattung

Offene Küche, Badewanne, Dusche, Fenster, Gartennutzung

In bester Lage von Salzburg-Leopoldskron entstehen zwei exklusive Doppelhäuser, die modernes Wohnen mit hochwertiger Ausstattung und energieeffizienter Bauweise verbinden. Die Gebäude sind vollunterkellert und gliedern sich in Kellergeschoss mit Technikräumen, Kellerabteilen und Tiefgarage, ein Erdgeschoss mit direktem Zugang zu den privaten Gärten, ein Obergeschoss mit Balkonen sowie ein Dachgeschoss mit großzügigen Dachterrassen und herrlichem Ausblick. Der Energiekennwert liegt mit HWB B (ca. 30 kWh/m²a) und fGEE A+ (ca. 0,56) auf einem besonders guten Niveau.

Die Ausstattung der Häuser überzeugt durch hochwertige Materialien und moderne Technik. Großzügige Fensterflächen aus Kunststoff-Alu mit 3-fach-Verglasung sorgen für helle, lichtdurchflutete Räume; im Wohnbereich sind teilweise Schiebeelemente vorgesehen. Für angenehmen Wohnkomfort sorgt eine Fußbodenheizung, die über eine effiziente Wärmepumpe betrieben wird. Ergänzt wird die Haustechnik durch eine Photovoltaikanlage am Dach. Alle Wohn- und Schlafräume sind mit Eichenparkett ausgestattet, während in den Bädern und WCs großformatige, elegante Fliesen (ca. 60 x 60 cm) in verschiedenen Farbtönen verlegt werden. Die Sanitärausstattung stammt von namhaften Markenherstellern und wird modern und zeitlos ausgeführt.

Auch die Außenbereiche sind durchdacht gestaltet: zu jeder Einheit gehört ein eigener Garten, während die Terrassen und Balkone mit edlen Belägen und formschönen Geländern ausgeführt werden. Die Tiefgarage bietet Stellplätze mit vorbereiteten Anschlüssen für E-Ladestationen und sorgt so für nachhaltige Mobilität. Fahrflächen werden asphaltiert, Gehwege gepflastert und das Grundstück rundum eingefriedet.

Das Projekt besticht durch zeitgemäße Architektur, großzügige Freiflächen und eine nachhaltige Bauweise. Mit ihrer ruhigen, aber stadtnahen Lage in Leopoldskron und dem traumhaften Ausblick bieten die Doppelhäuser ein exklusives Zuhause für anspruchsvolle Bewohner.

Heizung

ZentralheizungWasser-Elektro
Heizwärmebedarf (HWB)
30 kWh/(m²a)
B
Gesamtenergieeffizienzfaktor (fGEE)
0.56
A+

Beschreibung

Vier Doppelhaushälften mit Wohnflächen zwischen 110m² und 114m² zzgl. Keller bieten ein großzügiges Raumangebot für individuelle Wohnträume.

Jede Doppelhaushälfte verzaubert mit einem privaten Garten von 103m² bis 178m², die perfekte Kulisse für unvergessliche Momente im Freien.

Ergänzt wird dies durch eine 18m² große Dachterrasse, die atemberaubende Blicke auf die umliegende Berge ermöglicht. Der große Wohn-Essbereich sorgt für ein offenes und einladendes Wohngefühl. Die exklusiven Doppelhaushälften spiegeln die perfekte Balance zwischen urbanen Lebensstil und idyllischer Ruhe wider. Hochwertige Ausstattung, modernes Design und eine durchdachte Planung machen sie zu einem harmonischen Wohngefühl.

In diesen exklusiven Doppelhaushälften, finden Sie Ihr neues Zuhause, das urbanes Flair mit dem Charme eines Rückzugsorts im Grünen verbindet.

Erleben Sie den Luxus einer privaten Oase in Leopoldskron, wo die Schönheit der Natur auf exklusives Wohnen trifft.

Optional besteht die Möglichkeit, zwei Tiefgaragenstellplätze zu je € 32.500 zu erwerben.

Wir verweisen auf unsere Funktion als Doppelmakler und das wirtschaftliche Naheverhältnis zum Abgeber.

Kann ich mir diese Immobilie leisten?

  • % Nebenkosten
    0 €/ Monat
  • % Zinsen
    0 €/ Monat
  • % Kaufpreis
    0 €/ Monat
*
pro Monat
* errechnete monatliche Kreditrate bei einem angenommenen Effektivzins von 1.6% p.a. Die Berechnung stellt einen unverbindlichen Richtwert dar und ist von der Bonität, Kredithöhe, Laufzeit, Verwendungszweck und Besicherung abhängig.

Kontaktieren

GewerblichRaiffeisen Immobilien Salzburg eGenFrau Jacqueline Mörtl
Nachricht
Anrede
Vorname
Nachname
E-Mail
Telefon
Ich bin Eigentümer:in einer Immobilie
GewerblichRaiffeisen Immobilien Salzburg eGenFrau Jacqueline Mörtl
 Verifiziert von ImmoScout24
Premium Partner 2023 Award