{"obj_regio1":"006","obj_regio2":"006001","obj_regio3":"006001003","obj_ityp":"","obj_zipCode":"8020","obj_title":"Altstadtjuwel in der Josefigasse 10 – Graz in unmittelbarer Nähe zum Lendplatz","obj_picture":"https://pictures.immobilienscout24.de/prod.www.immobilienscout24.at/pictureserver/loadPicture?q=70&id=012.0012000001E3qye-1759259023-fac6bb4a6fc9481b897cbe3a8c79e2d1","obj_exclusiveExpose":"false","obj_cwId":null,"obj_purchasePrice":1200000,"obj_purchasePriceRange":"11","obj_baseRentRange":null}
  • Mehrfamilienhaus
  • Garten
  • Video Live-Besichtigung

Altstadtjuwel in der Josefigasse 10 – Graz in unmittelbarer Nähe zum Lendplatz

1.200.000
 
292 m²Garten
IMMOXXHerr Florian Kulterer
8020 Graz

Einmalige Kosten

Kaufpreis1.200.000 €
Kaufpreis pro m²4.116,5 €
Kalkuliert von ImmoScout24
Preisinformation: Verhandlungsbasis
Provision zzgl. 20% USt.: 3.00 % zuzüglich USt.

Laufende Kosten

Steuersatz20 %

Hallo neues Zuhause!

Kenne deine Chance mit Plus

Online seit120Gesehen80Kontaktiert40Gemerkt63
Plus locked

Merkmale

Mehrfamilienhaus
Baujahr ca. 1880, Gepflegt
Nutzfläche 291,51 m²
Garten

Ausstattung

Gartennutzung

Heizung

Heizwärmebedarf (HWB)
75.0 kWh/(m²a)
C

Beschreibung

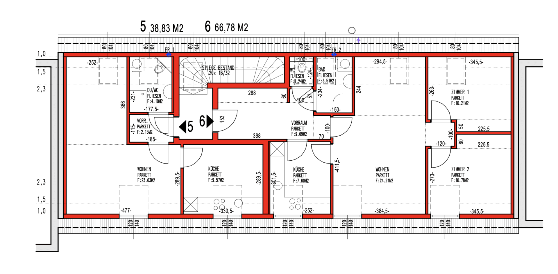
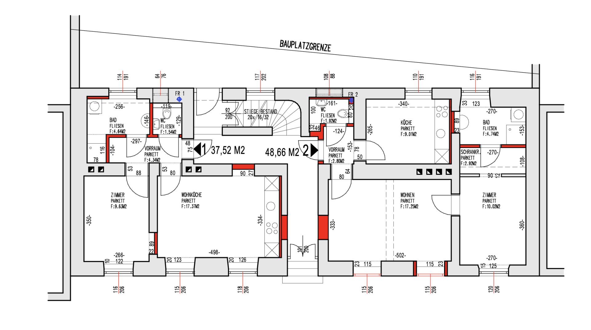
In unmittelbarer Nähe zum traditionsreichen Lendplatz befindet sich dieses historisch wertvolle Zinshaus in der Josefigasse 10. Das Gebäude wurde 2006 umfassend saniert und verbindet den Charme eines Altstadthauses mit zeitgemäßem Wohnkomfort. Auf insgesamt rund 291 m² Wohnnutzfläche verteilen sich fünf Wohnungen zwischen ca. 38 m² und 67 m². Zwei Einheiten sind unbefristet, jedoch indexgesichert vermietet, die übrigen Wohnungen auf Basis befristeter Verträge.

Das Haus ist vollständig vermietet und erwirtschaftet derzeit einen Nettomietzins von € 2.146,22 monatlich. Inklusive Betriebskosten von € 696,94 und Fernwärmebedarf von € 439,57 ergibt sich ein Gesamtmietzins von € 3.367,23. Damit bietet die Liegenschaft eine attraktive und stabile Einnahmequelle.

Die Lage unmittelbar beim Lendplatz zählt zu den gefragtesten Wohn- und Investitionslagen in Graz. Der traditionsreiche Markt mit seinen Bauernständen, Cafés und Lokalen bildet seit Jahrhunderten einen zentralen Treffpunkt und hat sich in den letzten Jahren zu einem kreativen, urbanen Zentrum entwickelt. Hier treffen historisches Flair und moderne Lebensqualität aufeinander – ein Garant für nachhaltige Wertentwicklung.

Der Kaufpreis von € 1.200.000,– wird durch die außergewöhnliche Lage, die nachhaltige Vermietungssituation und den guten Bauzustand mehr als gerechtfertigt. Dieses Altstadtjuwel vereint stabile Rendite, historisches Ambiente und begehrte Innenstadtlage – eine seltene Gelegenheit für Investoren, die Substanz und Lagequalität suchen.
Angaben gemäß gesetzlichem Erfordernis:

Heizwärmebedarf: 75.0 kWh/(m²a)

Dokumente

Kann ich mir diese Immobilie leisten?

  • % Nebenkosten
    0 €/ Monat
  • % Zinsen
    0 €/ Monat
  • % Kaufpreis
    0 €/ Monat
*
pro Monat
* errechnete monatliche Kreditrate bei einem angenommenen Effektivzins von 1.6% p.a. Die Berechnung stellt einen unverbindlichen Richtwert dar und ist von der Bonität, Kredithöhe, Laufzeit, Verwendungszweck und Besicherung abhängig.

Kontaktieren

GewerblichIMMOXXHerr Florian Kulterer
Nachricht
Anrede
Vorname
Nachname
E-Mail
Telefon
Ich bin Eigentümer:in einer Immobilie
GewerblichIMMOXXHerr Florian Kulterer
Video Live-Besichtigung
 Verifiziert von ImmoScout24
Premium Partner 2023 Award