{"obj_regio1":"009","obj_regio2":"009001","obj_regio3":"009001018","obj_ityp":"1","obj_zipCode":"1180","obj_title":"modernes Reihenhaus in Grünruhelage/ nahe Naaffgasse - befristet","obj_picture":"https://pictures.immobilienscout24.de/prod.www.immobilienscout24.at/pictureserver/loadPicture?q=70&id=012.0012000001E3rCX-2ed7cfb4b1aa4bd7b2a45b04054fbc47","obj_exclusiveExpose":"false","obj_cwId":null,"obj_purchasePrice":null,"obj_purchasePriceRange":null,"obj_baseRentRange":"9"}
  • Provisionsfrei
  • Balkon
  • Terrasse

modernes Reihenhaus in Grünruhelage/ nahe Naaffgasse - befristet

3.759
 
140 m²5 ZimmerBalkonTerrasse
Preis / m²26,85 €
Grundstücksfläche-
Baujahr1974
homefinding.at - Mag Janauer & Göllner GmbHSebastian Laßmann
Herbeckstraße, Naaffgasse, 1180 Wien
sehr gut

Laufende Kosten

Miete3.758,62 €
Preis pro m²26,85 €
Kalkuliert von ImmoScout24
Betriebskosten238,62 €

Hallo neues Zuhause!

Kenne deine Chance mit Plus

Online seit120Gesehen80Kontaktiert40Gemerkt63
Plus locked

Merkmale

Sonstige
Baujahr 1974, Neubau, Unterkellert, Parkett
Wohnfläche 140 m²
1 Balkon
Terrasse
5 Zimmer
2 Badezimmer, 3 Toiletten

Heizung

Etagenheizung
Heizwärmebedarf (HWB)
161.60 kWh/(m²a)
E

Beschreibung

Modernes, saniertes Reihenhaus im Gersthofer Cottage

VIDEO: https://youtu.be/fYSuc36B7zc

LAGE
Supermärkte, Restaurants, Apotheken, Bäckereien sind nur wenige Minuten entfernt. Der Pötzleinsdorfer Schlosspark ist ebenfalls rasch erreichbar und lädt zu gemütlichen Spaziergängen ein. Öffentliche Verkehrsmittel befinden sich in Gehdistanz und verbinden rasch mit dem Stadtzentrum

ÖFFIS
40,41

OBJEKT
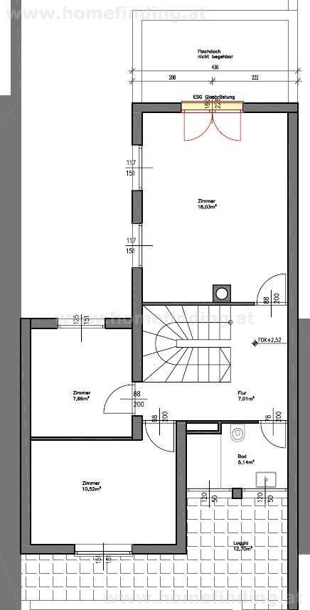
Das Objekt bietet auf 3 Ebenen folgende Räume:

>EG:
.Vorzimmer
.Wohn-Esszimmer mit Kamin und Terrasse/Ausgang in den Garten
.moderne Küche mit einem Essplatz und Terrasse
.Gäste WC
.Abstellraum
.Stiegenaufgang

>OG:
.Vorzimmer
.3 Schlafzimmer - eines mit Balkon
.Bad (Wanne, WC)

>KG:
.Vorzimmer
.großer Hobbyraum als 2. Wohnraum geeignet
.2 Abstellräume
.Duschbad mit WC
.direkter Zugang zu der Garage

AUSSTATTUNG
.Parkett- und Fliesenböden
.Zentralheizung
.Rollläden
.große Panoramafenster

KOSTEN
Miete: inkl BK, inkl MWSt
zusätzliche monatliche Kosten: € 187,11 für Heizung/ Warmwasser
Kaution: € 12.000,00
Der Makler vertritt ausschließlich den Vermieter, es besteht ein wirtschaftliches Naheverhältnis.

Aufgrund einer neuen EU-Richtlinie können wir Ihnen erst dann Unterlagen zu unseren Objekten zusenden, wenn Sie uns bestätigen, dass Sie über Ihr Rücktrittsrecht aufgeklärt wurden und unser sofortiges Tätigwerden wünschen. Sie bekommen nach Ihrer Anfrage ein Infomail, in dem Sie diese Punkte bestätigen müssen. Wir bitten um Verständnis.

This nice detached house is very well located in the cottage area of Gersthof.

LOCATION
Shops, restaurants, supermarkets, pharmacies etc. are only a view minutes away. Public lines are within walking distance and offer a good connections to other districts.

PUBLIC TRANSPORT
40, 41

PROPERTY
THe house itself has following rooms on 3 levels:

>ground floor:
.entrance
.nice living dining room with open fireplace and terrace with access to the garden
.modern eat in kitchen with terrace
.guest toilet
.storage space
.staircase

>first floor:
.hallway
.3 bedrooms - one with balcony
.bathroom (tub, toilet)

>basement:
.hallway
.large hobby room
.2 storage rooms
.sauna with shower
.access to the garage

EQUIPMENT
.wooden and tiled floors
.sat-tv
.in house garage

COSTS
rent: general maintenance costs and VAT included
additional monthly costs: € 187,11 for heating/ warm water
deposit: Euro 12000.00

Kontaktieren

Gewerblichhomefinding.at - Mag Janauer & Göllner GmbHSebastian Laßmann
Nachricht
Anrede
Vorname
Nachname
E-Mail
Telefon
Gewerblichhomefinding.at - Mag Janauer & Göllner GmbHSebastian Laßmann
 Verifiziert von ImmoScout24
Bronze Partner